Version: 8.24.0Navigation überspringen
CBRE GmbH
13,50 €
177,8 m² Bürofläche  •  teilbar ab 177,8 m²

Bürofläche zur Miete • provisionsfrei
13,50 €
/m²
177,8 m² Bürofläche  •  teilbar ab 177,8 m²

Schickes Büro zu fairen Konditionen

Merkmale

  • Bezug: kurzfristig
  • Erdgeschoss
  • Barrierefrei
BELÜFTUNG/KLIMATISIERUNG
öffenbare Fenster, Teilklimatisierung

BELEUCHTUNG
BAP-gerechte Beleuchtung, Deckenleuchten

DECKE
abgehängte Decken

BODENBELAG
Teppichboden/-fliesen

AUFZUG
Personenaufzug

GEBÄUDESERVICES
großzügiger Eingangsbereich

SICHERHEIT
Gegensprechanlage

GASTRONOMIE
Gastronomie in der näheren Umgebung

TEEKÜCHE
ausgestattete Teeküche(n)

Erschließung
barrierefreier Zugang

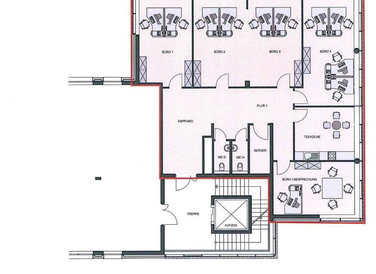
Grundrisse

Grundrisse
1 / 1

Realisiere Dein Projekt

Bausubstanz und Energie

Der Anbieter hat keine Informationen zum Energieverbrauch bereit gestellt.
  • Baujahr2006
  • Zustand der ImmobilieGepflegt
MediumRectangleTop

Mietkosten

Monatliche Miete
13,50 €/m²
Nebenkosten
2,45 €
Provision für Mieter
provisionsfrei
Kaution
keine Angabe

Lage

address-icon
Humboldt-GrembergKöln (51105)
Der Anbieter hat die genaue Adresse nicht freigegeben
Kalk befindet sich im rechtsrheinischen Köln. Der Teilmarkt umschließt die Zone Deutz bis hin zum südlichen Poll an der A 4 gelegen. Die Autobahn-anbindungen an die A 3, A 4, A 59 und A 559 sind hier überall schnell und gut erreichbar. Die Innenstadt ist über die Rheinbrücken in kurzer Zeit zu erreichen. Sieben Straßenbahnlinien und zwei S-Bahn-Linien durchkreuzen diese Büro-marktzone und gewährleisten eine sehr gute ÖPNV-Anbindung in alle Richtungen. Die Attraktivität dieses Teilmarktes hat unlängst zahlreiche Unternehmen zur Ansiedelung überzeugt: Köln Arkaden, Bauhaus, Musicstore, Polizeipräsidium, ADAC, GAG, Keer Gruppe, Fachhochschule für Verwaltung NRW, und viele mehr. Sodass die jahrelang erhoffte Entwicklung dieses Stadt-teiles bald abgeschlossen sein wird.

Weitere Informationen

Sonstiges
CBRE Immobiliensuche Büro - https://www.cbre.de/immobiliensuche/buero

AGB - https://www.cbre.de/agb Stichworte Sonstiges: EDV-Verkabelung

Weitere Services

Lust auf eine Besichtigung?
Eine Frage zur Immobilie?
Nachricht hinzufügen
Mit der Nutzung der oben angegebenen Telefonnummer oder durch Klicken auf „Kontaktieren“ akzeptierst Du die Allgemeinen Nutzungsbedingungen, denen Du jederzeit widersprechen kannst. Weitere Informationen zum Datenschutz

Über den Anbieter

CBRE GmbH
CBRE GmbHMaklerbüro
Hohenzollernring 72, 50672 Köln
Herr Timo SteinbachDein Kontakt
Online-ID: 2nkdh5k
Referenznummer: 129088@13@0
CBRE GmbH
CBRE GmbH
Nachricht hinzufügen
Mit der Nutzung der oben angegebenen Telefonnummer oder durch Klicken auf „Kontaktieren“ akzeptierst Du die Allgemeinen Nutzungsbedingungen, denen Du jederzeit widersprechen kannst. Weitere Informationen zum Datenschutz
MediumRectangleTop
MediumRectangleBottom
MediumRectangleTop
Wie zufrieden bist du mit dieser Seite (nicht mit der Immobilie selbst)?