Version: 8.24.0Navigation überspringen
ohne-makler.net - Immobilien selbst vermarkten
750 €
4 Zimmer  •  112,1 m²  •  2. Geschoss

Wohnung zur Miete
750 €
4 Zimmer  •  112,1 m²  •  2. Geschoss

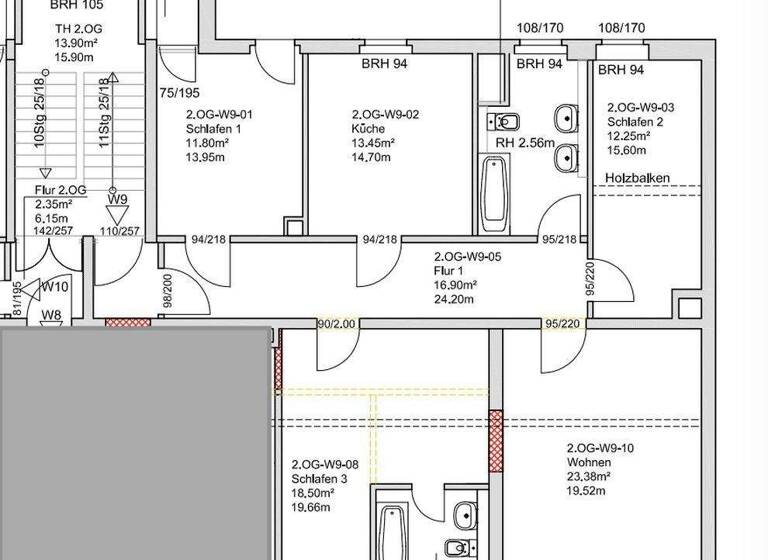
helle 4-Zimmer-Wohnung im 2. OG

Zur Vermietung steht eine helle 4-Zimmerwohnung für Sie bereit. Die Wohnung ist frisch renoviert, verfügt über ein saniertes, modernes Badezimmer und ein großes Wohnzimmer. Der offene Schnitt bietet jede Menge Platz. Die Wohnung kann sofort bezogen werden.

Merkmale

  • Bezug: sofort
  • 2. Geschoss
  • Bodenbelag: Fliesen, Laminat
  • Denkmalschutz-Afa
Laminat, Fliesen

Grundrisse

Grundrisse
1 / 1

Realisiere Dein Projekt

Bausubstanz und Energie

Energieausweis

Ein Energieausweis ist für diesen Gebäudetyp nicht notwendig.
  • Zustand der Immobilierenoviert / saniert
  • HeizungsartZentralheizung
  • EnergieträgerGas
MediumRectangleTop

Mietkosten

Kaltmiete
6,69 €/m²
750 €
Nebenkosten
130 €
Zusätzliche Kosten
Heizkosten
200 €
Kaution
2250 €
Weitere Preisinformationen
Nettokaltmiete: 750,00 EUR

Lage

address-icon
Franz-Ludwig-Rasch-Straße 12Naumburg (06618)
Die Wohnung befindet sich in einem von Grund auf sanierten Wohnhaus in der Franz-Ludwig-Straße 12, zentral in Naumburg gelegen. Geschäfte des täglichen Bedarfs sind fußläufig erreichbar und zahlreiche Gastronomieangebote in der Umgebung.
Infrastruktur (im Umkreis von 5 km):
Apotheke, Lebensmittel-Discount, Allgemeinmediziner, Kindergarten, Grundschule, Hauptschule, Realschule, Gymnasium, Gesamtschule, Öffentliche Verkehrsmittel

Weitere Informationen

Sonstiges Heizungsart: Zentralheizung
Energieträger: Gas

RIRE Assets Zentral GmbH
Bötzowstraße 26
10407 Berlin

Handelsregister: HRB222320B
Registergericht: Amtsgericht Charlottenburg

Vertreten durch:
Benedikt Richter

Makleranfragen nicht erwünscht. Nach § 7 UWG sind unaufgeforderte Kontaktaufnahmen durch Makler ohne ausdrückliche Einwilligung des Empfängers verboten!

ohne-makler (OM) ist weder Anbieter noch Vermittler der Immobilie. OM betreibt eine Plattform für Immobilieneigentümer, die unter anderem die gleichzeitige Veröffentlichung einzelner Inserate auf mehreren Immobilienportalen ermöglicht. Die Inhalte dieser Inserate werden ausschließlich von Dritten verantwortet. Für die Richtigkeit, Vollständigkeit oder Rechtmäßigkeit der Angaben übernimmt OM keine Haftung. Hinweise auf mögliche Rechtsverstöße können jederzeit gemeldet werden und werden nach Prüfung umgehend bearbeitet. Stichworte Bundesland: Sachsen-Anhalt

Weitere Services

Lust auf eine Besichtigung?
Eine Frage zur Immobilie?
Nachricht hinzufügen
Mit der Nutzung der oben angegebenen Telefonnummer oder durch Klicken auf „Kontaktieren“ akzeptierst Du die Allgemeinen Nutzungsbedingungen, denen Du jederzeit widersprechen kannst. Weitere Informationen zum Datenschutz

Über den Anbieter

Humboldtstr. 25 A, 21509 Glinde
partner badge
Partnerschaft
Angebot vom EigentümerDein Kontakt
Online-ID: 2nv3d5h
Referenznummer: 384294
ohne-makler.net - Immobilien selbst vermarkten
ohne-makler.net - Immobilien selbst vermarkten
Nachricht hinzufügen
Mit der Nutzung der oben angegebenen Telefonnummer oder durch Klicken auf „Kontaktieren“ akzeptierst Du die Allgemeinen Nutzungsbedingungen, denen Du jederzeit widersprechen kannst. Weitere Informationen zum Datenschutz
MediumRectangleTop
MediumRectangleBottom
MediumRectangleTop
Wie zufrieden bist du mit dieser Seite (nicht mit der Immobilie selbst)?