Version: 8.26.0Navigation überspringen
3.200.000 €
3.131 m² Lagerfläche
Immowelt logo

Lagerhalle zum Kauf • provisionsfrei
3200000 €
3.131 m² Lagerfläche

Produktionsstätte mit Bürobereichen

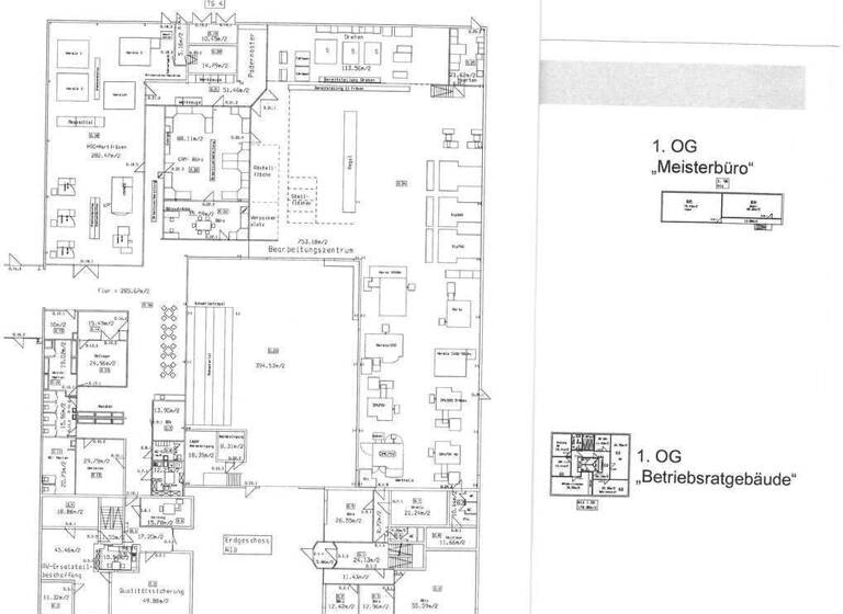
Solitärgebäude Baujahr 1979, mit Erweiterungen in den Jahren 1982, 1985 und 1989. Es verfügt über eine Gesamtfläche von ca. 3.131 m². Davon frei werdend ca. 1.740 m² ebenerdig andienbare Produktionsfläche und ca. 200 m² freie Büro- /Verwaltungsflächen. Die lichte Hallenhöhe beträgt ca. 6,8 m. Eine 5to & 3to Kranbahn ist vorhanden. Die Grundstücksgröße beträgt 4.138 m². 20 Stellplätze sind auf dem Areal ausgewiesen. Ein separater Büroteilbereich mit ca. 520 m² ist für € 6.270,00/mtl. vermietet, bis 14.01.2029. Ein weiterer Büro-/ Produktionsbereich mit ca.670 m² ist für € 4.200,00/mtl. vermietet, bis 31.12.2027. Die Mietverträge haben eine Laufzeit mit einer mieterseitigen Verlängerungsoption.

Merkmale

  • 4.138 m² Grundstück

Grundrisse

Grundrisse
1 / 3
Immowelt logo

Preisdetails

Kaufpreis
3200000 €
Provision für Käufer
provisionsfrei
Geschätzte Gesamtkosten
3.200.000 €1
Kaufpreis
3.200.000 €
1Der angezeigte Wert ist eine automatisch berechnete Schätzung von immowelt.

Lage

address-icon
SteinKönigsbach-Stein (75203)
Der Anbieter hat die genaue Adresse nicht freigegeben
Die Mietfläche befindet sich in Königsbach.Stein im Gewerbegebiet "Mitteltal" des Ortsteil Stein. Die L611 bzw. L570 sind schnell und bequem erreichbar. Pforzheim ist ca. 10km Luflinie entfernt, Karlsruhe ca. 15km.

Weitere Informationen

Sonstiges Ein neuer Energieausweis wird gerade erstellt. Wir reichen diesen nach sobald er uns vorliegt Energiepass Energieausweis wird bei Besichtigung vorgelegt. Stichworte Lagerfläche: 3.131,00 m², Nutzfläche: 57,97 m², Gesamtfläche: 3.131,00 m²

Weitere Services

Lust auf eine Besichtigung?
Eine Frage zur Immobilie?
Nachricht hinzufügen
Mit der Nutzung der oben angegebenen Telefonnummer oder durch Klicken auf „Kontaktieren“ akzeptierst Du die Allgemeinen Nutzungsbedingungen, denen Du jederzeit widersprechen kannst. Weitere Informationen zum Datenschutz

Über den Anbieter

An der Tagweide 2, 76139 Karlsruhe
Herr Arno StreckerDein Kontakt
Online-ID: 25NRHJIPQYHZ
Referenznummer: 2025032
Wie zufrieden bist du mit dieser Seite (nicht mit der Immobilie selbst)?