Version: 8.25.1Navigation überspringen
McMakler GmbH
196.000 €
6 Zimmer  •  140 m²  •  3.700 m² Grundstück

Sonstiges zum Kauf • als Kapitalanlage geeignet
196000 €
1.400 €/m²
6 Zimmer  •  140 m²  •  3.700 m² Grundstück

Haus in Pollhagen mit Solar & Ausbaureserve - mit Solar auf dem Dach

Objektnr: 1069612

Dieses charmante und liebevoll gepflegte Wohnhaus aus dem Baujahr 1900 überzeugt durch seine ruhige Feldrandlage in Pollhagen und eignet sich ideal sowohl zur Eigennutzung als auch als Investment. Auf rund 140 m² Wohnfläche erwarten Sie sechs gut geschnittene Zimmer, ein Tageslichtbad mit Dusche und Badewanne sowie eine moderne Einbauküche aus 2022.

Das Haus präsentiert sich in einem einladenden und laufend modernisierten Zustand. Zu den aktuellen Modernisierungen zählen unter anderem neue elektrische Leitungen, ein erneuerter Laminatboden, ein neuer Durchlauferhitzer sowie drei Infrarot-Heizkörper. Eine 2022 installierte Solaranlage mit 40 Modulen rundet das energetische Konzept ab.

Besonders hervorzuheben ist das große Grundstück mit ca. 3.700 m², das für Naturliebhaber, Tierhaltung oder Hobbys vielfältige Möglichkeiten eröffnet. Neben einem Wintergarten stehen mehrere Abstellräume, eine Werkstatt, ein Teich sowie Garage und zwei Freistellplätze zur Verfügung. Die Ausstattung mit Kaminofen, Alarmanlage und Video-Gegensprechanlage macht das Angebot zusätzlich attraktiv.

Das Dachgeschoss ist bereits im Rohbau und bietet weiteres Ausbaupotenzial.

Merkmale

  • Bezug: nach Absprache
  • 3.700 m² Grundstück
  • Einbauküche
  • Badezimmer: Badewanne, Bad mit Dusche
  • Kein Keller
+ Großes Grundstück mit ca. 3.700 m² - ideal für Naturfreunde, Hobbyprojekte oder Tierhaltung
+ Umfangreiche Modernisierungen in 2022 - u. a. neue Elektrik, neuer Laminatboden, IR-Heizkörper,
+ Energiekonzept mit Solaranlage (40 Module, 2022) - niedrige Stromkosten und teils Rückerstattung
+ Wintergarten, Kaminofen, Alarmanlage und komplett ausgestatteter Werkstatt
+ Ausbaufähiges Dachgeschoss im Rohbau - zusätzliches Wohnpotenzial nach Bedarf

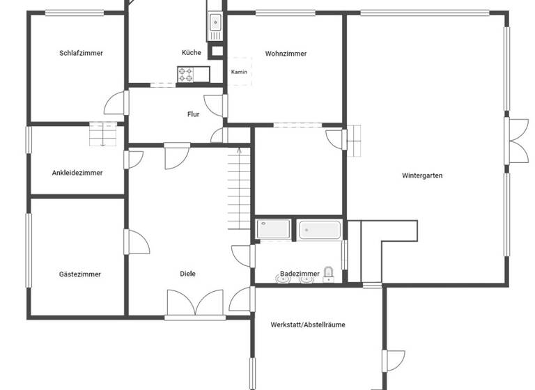
Grundrisse

Grundrisse
1 / 3

Virtueller Rundgang

3D tour

Realisiere Dein Projekt

Bausubstanz und Energie

Energieausweis

G
  • Baujahr1900
  • Zustand der ImmobilieGepflegt
  • EnergieträgerElektro
MediumRectangleTop

Preisdetails

Kaufpreis
196000 €
1.400 €/m²
Provision für Käufer
Die Provision i.H.v. 3,57 % inkl. MwSt. ist mit Kaufvertragsbeurkundung fällig, sofern der Verkaufspreis über 83.000,00 € liegt.

Liegt der Verkaufspreis dagegen bei/unter 83. Weitere Informationen siehe Provisionshinweis.
Geschätzte Gesamtkosten
202.997 €1
Kaufpreis
196.000 €
Provision für Käufer (3,57%)
6.997 €
1Der angezeigte Wert ist eine automatisch berechnete Schätzung von immowelt.
2Bei den Angaben handelt es sich um ortsübliche Werte. Individuelle Kosten können abweichen.

Lage

address-icon
Pollhagen (31718)
Der Anbieter hat die genaue Adresse nicht freigegeben
Lage: Erhöhte Privatsphäre dank Feldrandlage - ideal für Ruhesuchende
Bildung und Betreuung: Nahegelenes Bildungs- und Betreuungsangebot umfasst einen Kindergarten (max 6 km)
Nahversorgung: Rund 6 km zu wichtigen Anlaufstellen wie Supermärkten, Apotheken, Postfilialen und Bankfilialen
Anbindung: Gut erreichbar: Bushaltestelle, Bahnhof und Autobahn

Weitere Informationen

Provisionshinweis Die Provision i.H.v. 3,57 % inkl. MwSt. ist mit Kaufvertragsbeurkundung fällig, sofern der Verkaufspreis über 83.000,00 € liegt.

Liegt der Verkaufspreis dagegen bei/unter 83.000,00 €, ist die fest vereinbarte Mindestprovision i.H.v. mind. 5.950,00 € inkl. MwSt. mit Kaufvertragsbeurkundung fällig. Die Mindestprovision fällt insg. nur einmal an, wodurch Verkäufer und Käufer die Mindestprovision dann jeweils mit 2.975,00 € inkl. MwSt. tragen. Sonstiges Vereinbaren Sie noch heute einen Besichtigungstermin!
_____________________________________________________

Alle Angaben sind ohne Gewähr und basieren ausschließlich auf Informationen, die uns von unserem Auftraggeber zur Verfügung gestellt wurden. Wir übernehmen keine Gewähr für die Vollständigkeit, Richtigkeit und Aktualität der Angaben. Stichworte Wohnfläche: 140,00 m², Gesamtfläche: 140,00 m², Anzahl der Schlafzimmer: 6, Anzahl der Badezimmer: 1, 2 Etagen

Weitere Services

Lust auf eine Besichtigung?
Eine Frage zur Immobilie?
Nachricht hinzufügen
Mit der Nutzung der oben angegebenen Telefonnummer oder durch Klicken auf „Kontaktieren“ akzeptierst Du die Allgemeinen Nutzungsbedingungen, denen Du jederzeit widersprechen kannst. Weitere Informationen zum Datenschutz

Über den Anbieter

Am Postbahnhof 17, 10243 Berlin
Ihr McMakler TeamDein Kontakt
Online-ID: 26T22YP8KIYI
Referenznummer: 3b59370db7
McMakler GmbH
McMakler GmbH
Nachricht hinzufügen
Mit der Nutzung der oben angegebenen Telefonnummer oder durch Klicken auf „Kontaktieren“ akzeptierst Du die Allgemeinen Nutzungsbedingungen, denen Du jederzeit widersprechen kannst. Weitere Informationen zum Datenschutz
MediumRectangleTop
MediumRectangleBottom
MediumRectangleTop
Wie zufrieden bist du mit dieser Seite (nicht mit der Immobilie selbst)?