Version: 8.24.0Navigation ĂĽberspringen
8,45 €
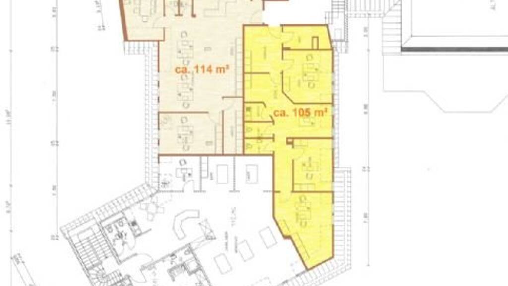
114 m² Bürofläche
Immowelt logo

Bürofläche zur Miete
8,45 €
/m²
114 m² Bürofläche

Büroflächen im Herzen Roths nähe Schloss

In der Nähe des Rother Schloss am Altstadtring werden Büroflächen in verschiedenen Größen vermietet.
Im 2.OG befindet sich eine Büroeinheit mit 114 m² sowie Alternativ mit 105 m² frei zur Anmietung. Weitere Flächen im 1. Obergeschoss mit 390 m² und mit 217 m² sind vorhanden.
Die Flächen können je nach Absprache mit dem Eigentümer getrennt bzw. zusammengelegt werden.
Die BĂĽroeinheit wird nach MieterwĂĽnschen neu ausgebaut; Bezug kann ca. 3 Monate nach Mietvertragsabschluss erfolgen.
Als Grundausstattung sind Teppichboden, abgehängte Rasterdecken, sowie Anschlüsse für eine Teeküche kalkuliert.
Die Mietdauer beträgt 10 Jahre - bei einem Mietverhältnis mit einer Laufzeit von lediglich 5 Jahren ist dem Vermieter ein Baukostenzuschuss zu bezahlen. Die Miete beträgt 8,45 € / m² zzgl. Betriebskosten-Vorauszahlung zzgl. MwSt. Im Untergeschoss liegt eine Tiefgarage mit insgesamt 33 Kfz-Stellplätzen.
Keine zusätzliche Mieterprovision!

Merkmale

  • Bezug: kurzfristig möglich
  • 2. Geschoss
- flexible Flächen möglich
- 33 Tiefgaragen-Stellplätze
- zentrale Lage

Realisiere Dein Projekt

Bausubstanz und Energie

Energieausweis

Endenergieverbrauch (Wärme)

Endenergieverbrauch (Strom)

  • Baujahr1989
  • Zustand der ImmobilieMassivhaus, Gepflegt
Immowelt logo

Mietkosten

Nettomiete zzgl. Nebenkosten
8,45 €/m²
963 €
Provision fĂĽr Mieter
Bitte beachte, das Angebot kann bei Vertragsabschluss die Zahlung einer Provision beinhalten. Weitere Informationen erhältst Du vom Anbieter.
Kaution
3 Monatsmieten
Weitere Preisinformationen
Nettokaltmiete: 963,00 EUR

Lage

address-icon
Roth (91154)
Der Anbieter hat die genaue Adresse nicht freigegeben

Weitere Informationen

Sonstiges Es liegt ein Energieverbrauchsausweis vor.
Dieser ist gĂĽltig bis 3.2.2030.
Endenergieverbrauch beträgt kwh/(m²*a).
Wesentlicher Energieträger der Heizung ist Gas.

Ihr Ansprechpartner:
Stefan Wartzack

wartzack@ri-immobilien.de Stichworte Distanz zur nächsten Einkaufsmöglichkeit: 0.50, Distanz zur Autobahn: 1.00, Distanz vom Zentrum: 1.00

Weitere Services

Lust auf eine Besichtigung?
Eine Frage zur Immobilie?
Nachricht hinzufĂĽgen
Mit der Nutzung der oben angegebenen Telefonnummer oder durch Klicken auf „Kontaktieren“ akzeptierst Du die Allgemeinen Nutzungsbedingungen, denen Du jederzeit widersprechen kannst. Weitere Informationen zum Datenschutz

Ăśber den Anbieter

O'Brien-Str. 3, 91126 Schwabach
partner badge
Partnerschaft
Herr Stefan Wartzack
Herr Stefan WartzackDein Kontakt
Online-ID: 27qdd5h
Referenznummer: 4027_1
Wartzack & Kollegen GmbH
title
Wartzack & Kollegen GmbH
Bewertung: 4,7 von 5 Sternen
Nachricht hinzufĂĽgen
Mit der Nutzung der oben angegebenen Telefonnummer oder durch Klicken auf „Kontaktieren“ akzeptierst Du die Allgemeinen Nutzungsbedingungen, denen Du jederzeit widersprechen kannst. Weitere Informationen zum Datenschutz
Wie zufrieden bist du mit dieser Seite (nicht mit der Immobilie selbst)?