Version: 8.25.1Navigation überspringen
260.000 €
3 Zimmer  •  63 m²  •  1. Geschoss
Immowelt logo

Wohnung zum Kauf
260000 €
4.127 €/m²
3 Zimmer  •  63 m²  •  1. Geschoss

Silo, Wohnung in einem Neubau im 1. Stock

Wir bieten ein sehr hochwertiges Apartment für einen touristischen Aufenthalt an der nördlichen Adria in der sonst begehrten Kvarner-Destination Insel Krk. Diese Wohnung befindet sich in einer hochwertigen und urbanisierten Lage nahe dem Meer und dem Zentrum von Silo. Je nach Objekttyp handelt es sich um eine mittelgroße, ebenerdige Wohnung. In einem sehr guten und hochwertigen Gebäude befindet sich die Wohnung im 1. Stock. Die Wohnung umfasst eine Gesamtfläche von ca. 64 m2. Es besteht aus einem Badezimmer, zwei Schlafzimmern, Küche und Esszimmer, Wohnzimmer mit Balkon und Abstellraum von 24m2. Dem Eigentümer der Wohnung wird ein Parkplatz zur Verfügung gestellt. Zusätzlich zu den oben genannten Merkmalen ist diese Wohnung sehr gut ausgerichtet und bietet einen schönen Blick auf das Meer und die Küste. Diese Wohnung befindet sich im Mehrwertsteuersystem und unterliegt bei der Eigentumsübertragung nicht der Grunderwerbsteuer. Der Verkäufer garantiert die Ordnungsmäßigkeit der relevanten technischen und Eigentumsdokumentation sowie die Möglichkeit einer schnellen und reibungslosen Eigentumsübertragung der Wohnung auf den Käufer. Wir erwarten Sie in Kvarner, an der Büroadresse auf der Insel Krk. Neben dem Finden, Besichtigen und Präsentieren der Wohnung hilft das kompetente Team unserer Agentur dem Käufer der Immobilie gerne bei der Eintragung des Eigentums im Grundbuch sowie bei der Übertragung von Nebenkostenabrechnungen in Ihrem Namen.
Das Gebäude befindet sich derzeit im Bau und die Fertigstellung der Arbeiten für Ende des Jahres 2022.

ID CODE: 102410

Merkmale

  • 1. Geschoss

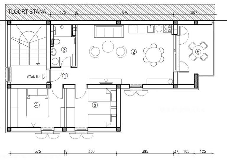
Grundrisse

Grundrisse
1 / 1

Realisiere Dein Projekt

Bausubstanz und Energie

Möchtest du Details zum Energieverbrauch?info_energy_calculation-icon
  • Baujahr2022
Immowelt logo

Preisdetails

Kaufpreis
260000 €
4.126,98 €/m²
Provision für Käufer
Bitte beachte, das Angebot beinhaltet bei Vertragsabschluss die Zahlung einer Provision. Weitere Informationen erhältst Du vom Anbieter.

Lage

address-icon
Dobrinj (51514)
Der Anbieter hat die genaue Adresse nicht freigegeben

Weitere Informationen

Stichworte Anzahl der Schlafzimmer: 2, Anzahl der Badezimmer: 1, Anzahl der Wohn-Schlafzimmer: 1, Nebenzentrumslage

Weitere Services

Lust auf eine Besichtigung?
Eine Frage zur Immobilie?
Nachricht hinzufügen
Mit der Nutzung der oben angegebenen Telefonnummer oder durch Klicken auf „Kontaktieren“ akzeptierst Du die Allgemeinen Nutzungsbedingungen, denen Du jederzeit widersprechen kannst. Weitere Informationen zum Datenschutz

Über den Anbieter

Ksavera Sandora Dalskog 29, 10410 VELIKA GORICA
Ivan Radman
Ivan RadmanDein Kontakt
Online-ID: 23Y2SS6N55KQ
Referenznummer: 102410
STAN GRAD d.o.o.
title
STAN GRAD d.o.o.
Nachricht hinzufügen
Mit der Nutzung der oben angegebenen Telefonnummer oder durch Klicken auf „Kontaktieren“ akzeptierst Du die Allgemeinen Nutzungsbedingungen, denen Du jederzeit widersprechen kannst. Weitere Informationen zum Datenschutz
Wie zufrieden bist du mit dieser Seite (nicht mit der Immobilie selbst)?