Version: 8.24.0Navigation überspringen
1.400 €
4 Zimmer  •  163 m²  •  2. Geschoss  •  frei ab sofort
Immowelt logo

Maisonette zur Miete
1.400 €
4 Zimmer  •  163 m²  •  2. Geschoss  •  frei ab sofort

Außergewöhnliche 4-Zimmer-Maisonettewohnung am Allersberger Marktplatz *Erstbezug nach Komplettsanierung*

Objektbeschreibung *Ein wahrer Traum für Individualisten und Altbauliebhaber*

Der Einzugstermin wäre nach Vereinbarung. Voraussichtlich wird die Sanierung der Wohnung zum 31.03.2026 abgeschlossen. Ein Bezug wäre dann also ab 01.04.2026 möglich.

Traumhafte 4-Zimmer-Maisoenttewohnung mit Liebe zum Detail, verlegtem Echtholzparkettboden und zwei Badezimmern.
2025/2026 wurde/wird die Wohnung aufwändig saniert.

Die toll-geschnittene Wohnung befindet sich im 2. Obergesschoss und Spitzboden eines denkmalgeschützten Wohn- und Geschäftshaus direkt am Allersberger Marktplatz. Dieses Objekt ist definitiv nichts von der Stange und zählt zu den älteren Häusern Allersbergs.

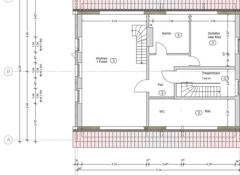
Großzügige 163 qm Wohnfläche verteilen sich auf 4 Zimmer, 2 Bäder und die Küche.
Ein Balkon ist leider nicht vorhanden.

Im Zuge der Renovierung, bzw. Komplettsanierung wurden nur die besten Materialien verwendet. Eine wahre Wohlfühlatmosphäre strahlt diese Wohnung aus!

+ komplette Erneuerung der Elektrik
+ neuer Parkettboden wurde verlegt
+ Aufwändige Sanierung der Wände - keine Tapeten!
+ neue Dachflächenfenster mit elektrischen Rollos
+ neue Dachdämmung
+ 2 neue Badezimmer (auf jeder Etage befindet sich jeweils 1 Bad)
+ Bad im DG mit Fenster, WC, WM-Anschluss, LED-Spiegel und WHIRLPOOLWANNE
+ Bad im Spitzboden mit Fenster, WC, bodengleiche Dusche und Sternenhimmel
+ neue Innentüren
+ Restauration des rustikalen Fachwerks/Holzbalken aus dem Baujahr
+ indirekte Beleuchtungen
+ teilweise integrierte Strahler

Die Wohnung wird ohne Einbauküche vermietet.
Sollte der zukünfitge Mieter jedoch eine Einbauküche wünschen, so wären die Vermieter bereit für eine zusätzliche monatliche Miete in Höhe von 150€ eine Einbauküche inkl. E-Geräte einzubauen.

Ein Keller ist leider nicht vorhanden.

Heizung:
Beheizt wird die Wohnung mittels Gas. Eine neue Gas-Zentralheizung wurde erst vor ein paar Jahren installiert.

Strom muss vom Mieter selbst angemeldet und mit dem Energieversorger direkt abgerechnet werden.

PKW:
Zu der Wohnung kann ein PKW-Stellplatz vor der Hauseingangstür für monatlich 30€ mitangemietet werden. Die ist aber kein Muss.

Mindestmietdauer: 2,5 Jahre, gerne auch länger.
Ein langfristiges Mietverhältnis wird gewünscht - keine Zwischenlösung!

Augen sagen mehr als Worte! Dieses Schmuckstück wird Sie begeistern!
Wir freuen uns auf Ihre Kontaktaufnahme. Raumaufteilung Dachgeschoss:

+ Diele
+ Schlafzimmer oder Kind/Büro
+ Wohnen und Essen
+ Küche
+ Badezimmer mit luxuriöser Whirlpoolwanne, Waschtisch, WC und Waschmaschine

Spitzboden:

+ Schlafzimmer oder Kinderzimmer
+ Büro oder Ankleide (1 Zimmer ist offen / ohne Wand vom Treppenhaus aus zu erreichen)
+ Badezimmer:mit Waschtisch, WC, bodengelicher Dusche mit Ablaufrinne und Regenbrause. Highlight: Belichtungssystem - stimmungsvolle indirekte LED-Beleuchtung (Farbwechsel möglich), sowie LED-Sternenhimmel

+ PKW-Stellplatz

Merkmale

  • Bezug: nach Vereinbarung
  • 2. Geschoss
  • Außen-Stellplatz
  • Gäste-WC
  • Badezimmer: Badewanne, Bad mit Dusche, Bad mit Fenster
  • Bodenbelag: Fliesen, Holzdielen
  • Fenster: Holz

Grundrisse

Grundrisse
1 / 2

Realisiere Dein Projekt

Bausubstanz und Energie

Energieausweis

Ein Energieausweis ist für diesen Gebäudetyp nicht notwendig.
  • Zustand der ImmobilieAltbau (bis 1945)
  • HeizungsartZentralheizung
  • EnergieträgerGas
Immowelt logo

Mietkosten

Warmmiete
1.700 €
Kaltmiete
8,59 €/m²
1.400 €
Nebenkosten
300 €
Heizkosten
in Nebenkosten enthalten
Zusätzliche Kosten
Miete pro Stellplatz
30 €
Kaution
2 Kaltmieten

Lage

address-icon
Marktplatz 6Allersberg (90584)
Absolut ZENTRAL ist dieses Objekt gelegen!!!
Der Allersberger Marktplatz bietet sämtliche Einrichtungen des täglichen Bedarfes.

+ Apotheke, Banken, Restaurants, Metzgerei, Supermärkte, Ärzte u.v.m fußläufig erreichbar
+ Busanbindung
+ Entfernung nach Neumarkt: 20km
+ Entfernung nach Nürnberg-Zentrum: 30km
+ Entfernung Autobahnauffahrt A9: 1km
+ Entfernung Rothsee: 5km
+ Kindergärten und Schulen vor Ort
+ zahlreiche Freizeitgestaltungsmöglichkeiten: diverse Vereine vor Ort, traumhaftes Wanderwegnetz, Triathlonregion Rothsee

Weitere Informationen

Besichtigungstermine können gerne mit uns vereinbart werden!

Es wäre prima, wenn Sie uns in Ihrer Kontaktanfrage ein paar Informationen zu Ihrer Person nennen könnten (bspw. Beruf, Anzahl der Personen, die einziehen würden, etc.). Vielen Dank.

Wir freuen uns auf Ihre Anfrage. Bitte vergessen Sie nicht Ihre VOLLSTÄNDIGEN Angaben zu hinterlassen:
+ Name
+ Telefonnummer
+ E-mail-Adresse
+ Postanschrift

HINWEIS:
Sollte nach Besichtigung der Wohnung Interesse an einer Anmietung bestehen, so müssten folgende Unterlagen vorgelegt werden:

+ Mieterselbstauskunft
+ Einkommensnachweise der letzten 3 Monate
+ Schufa-Auskunft (nicht älter als 3 Monate)

Weitere Services

Lust auf eine Besichtigung?
Eine Frage zur Immobilie?
Nachricht hinzufügen
Mit der Nutzung der oben angegebenen Telefonnummer oder durch Klicken auf „Kontaktieren“ akzeptierst Du die Allgemeinen Nutzungsbedingungen, denen Du jederzeit widersprechen kannst. Weitere Informationen zum Datenschutz

Über den Anbieter

LP ImmobilienMaklerbüro
Glockengasse 1, 90559 Burgthann
partner badge
Partnerschaft
Herr Philipp DistelDein Kontakt
Online-ID: 2n4mq5d
LP Immobilien
Nachricht hinzufügen
Mit der Nutzung der oben angegebenen Telefonnummer oder durch Klicken auf „Kontaktieren“ akzeptierst Du die Allgemeinen Nutzungsbedingungen, denen Du jederzeit widersprechen kannst. Weitere Informationen zum Datenschutz
Wie zufrieden bist du mit dieser Seite (nicht mit der Immobilie selbst)?