




Bürofläche zur Miete12 €/m²286 m² Bürofläche
12 €
/m²
286 m² Bürofläche
Objekt 040/30-c Moderne Büro-/Praxisflächen Ferdinand-Braun-Straße in 74074 Heilbronn
Merkmale
- Bezug: Nach Absprache
- Teeküche
- Personenaufzug
- 48 Stellplätze: Außen-Stellplatz, Tiefgarage
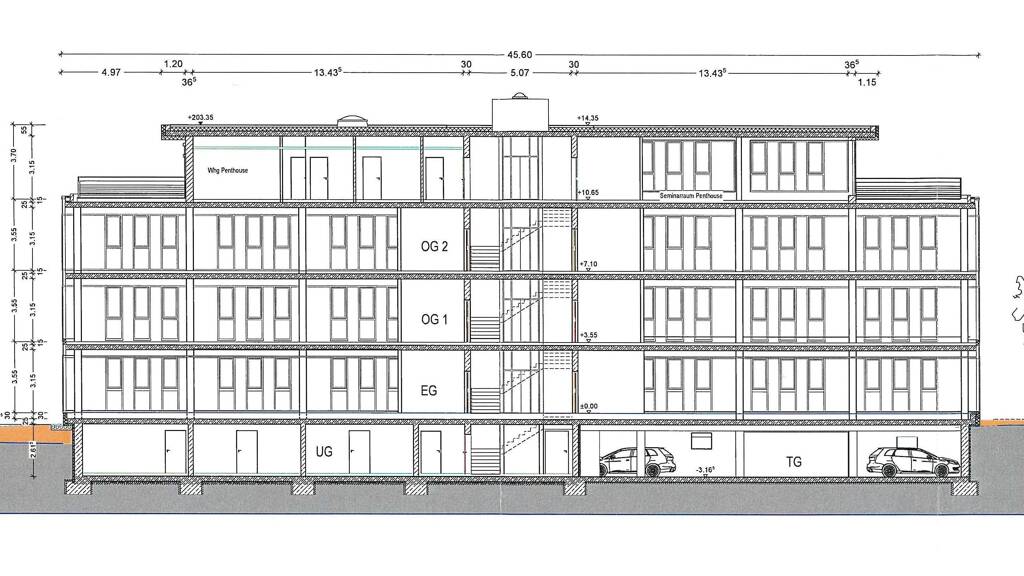
Grundrisse
Verschaffe dir einen genauen Überblick über die Raumaufteilung.

Realisiere Dein Projekt
Bausubstanz und Energie
Möchtest du Details zum Energieverbrauch?

Mietkosten
Monatliche Miete
12 €/m²
Zusätzliche Kosten
Miete pro Stellplatz
40 €
Provision für Mieter
4 Monatsmieten zuzüglich der gesetzlichen Mehrwertsteuer
Kaution
keine Angabe
Lage

Heilbronn (74074)
Der Anbieter hat die genaue Adresse nicht freigegeben
Weitere Informationen
Weitere Services
Lust auf eine Besichtigung?
Eine Frage zur Immobilie?
Über den Anbieter
Moltkestr 10, 74072 Heilbronn
Partnerschaft
Herr Thomas BucherDein Kontakt
Weitere Unterlagen
Online-ID: 24H9CWYXD13L
Referenznummer: 040/30-c
Wie zufrieden bist du mit dieser Seite (nicht mit der Immobilie selbst)?




