Version: 8.25.1Navigation überspringen
13,50 €
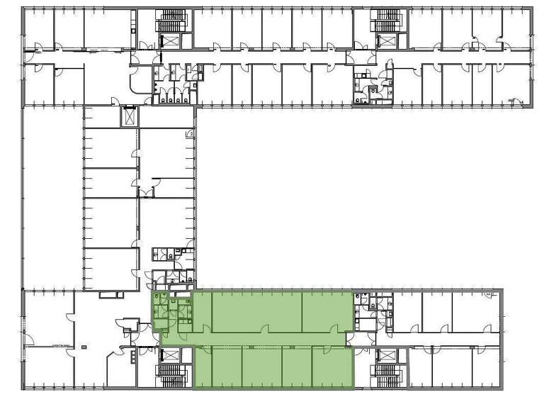
396,7 m² Bürofläche  •  teilbar ab 396,7 m²
Immowelt logo

Bürofläche zur Miete • provisionsfrei
13,50 €
/m²
396,7 m² Bürofläche  •  teilbar ab 396,7 m²

Repräsentative Bürofläche im Office-Park Rheinlanddamm!

Dieses aus dem Jahre 2005 stammende Bürogebäude bietet auf 6 Etagen sehr repräsentative und hochwertig ausgestattete Büroflächen.

Folgende Flächen stehen zur Verfügung:

1. Obergeschoss: ca. 333 m²
4. Obergeschoss: ca. 276 m²
4. Obergeschoss: ca. 397 m²

Summe: ca. 1.006 m²

Ausreichend Stellplätze können in der objekteigenen Tiefgarage oder im Außenbereich angemietet werden.

Merkmale

  • Personenaufzug
  • Teeküche
  • Bodenbelag: Kunststoff
  • Außen-Stellplatz, Tiefgarage
  • Fenster: Sonnenschutz
  • teilweise klimatisiert
Bodenbelag: Vinylboden in Holzoptik
EDV-Verkabelung: CAT-7
Kabelführung: Hohlraumboden
Kühlung: teilweise gekühlt
Sonnenschutz: außenliegend, elektrisch
Teeküche: wird gestellt
Beleuchtung: Bandrasterleuchten
Restaurant im Erdgeschoss der Immobilie

Sowohl beim Bodenbelag als auch bei der Beleuchtung können nach Absprache mit dem Eigentümer die Mieterwünsche berücksichtigt werden.

Grundrisse

Grundrisse
1 / 3

Realisiere Dein Projekt

Bausubstanz und Energie

Energieausweis

Endenergiebedarf (Wärme)

Endenergiebedarf (Strom)

  • Baujahr2006
  • HeizungsartZentralheizung
  • EnergieträgerGas
Immowelt logo

Mietkosten

Monatliche Miete
13,50 €/m²
Nebenkosten
3,90 €
Zusätzliche Kosten
Heizkosten
Provision für Mieter
provisionsfrei
Kaution
keine Angabe

Lage

address-icon
MitteDortmund (44139)
Der Anbieter hat die genaue Adresse nicht freigegeben
Der Büroboulevard B1 ist eine der renommiertesten Businessadressen Dortmunds - Heimat zahlreicher namhafter Unternehmen und Synonym für modernes Arbeiten. Neben einer perfekten Verkehrsanbindung und unmittelbarem Zugang zu A40, A45, B54 und B234 profitieren Unternehmen von einer erstklassigen Nahversorgung, vielfältiger Gastronomie und der Nähe zum Westfalenpark als Ort der Erholung. Hier vereinen sich Business-Dynamik und Lebensqualität auf ideale Weise.

Weitere Informationen

Sonstiges GEG 2020: Ein Energieausweis liegt zur Zeit nicht vor.

Dieses Angebot ist provisionsfrei für den Mieter.

Alle Informationen in diesem Exposé beruhen auf Angaben, die wir vom Vermieter erhalten haben. Für Richtigkeit und Vollständigkeit übernehmen wir keine Gewähr. Zwischenvermietung vorbehalten. Die Grundrisse müssen nicht mit der aktuellen Raumaufteilung übereinstimmen und sind unmaßstäblich. Für Flächenangaben übernehmen wir keine Gewähr. In Planunterlagen eventuell abgebildete Möblierungen sind nicht Inhalt des Mietgegenstands.

Es gelten ausschließlich unsere AGB (www.cubion.de/agb). Stichworte Sonstiges: EDV-Verkabelung

Weitere Services

Lust auf eine Besichtigung?
Eine Frage zur Immobilie?
Mit einer persönlichen Nachricht hast du bessere Chancen auf eine Antwort.
Mit der Nutzung der oben angegebenen Telefonnummer oder durch Klicken auf „Kontaktieren“ akzeptierst Du die Allgemeinen Nutzungsbedingungen, denen Du jederzeit widersprechen kannst. Weitere Informationen zum Datenschutz

Über den Anbieter

Akazienallee 65, 45478 Mülheim
partner badge
3 Jahre Partnerschaft
Herr Niklas Klein
Herr Niklas KleinDein Kontakt
Online-ID: 26KJTWTSIV5V
Referenznummer: 1158/G1/E5/Eh3
CUBION Immobilien AG
title
CUBION Immobilien AG
Mit einer persönlichen Nachricht hast du bessere Chancen auf eine Antwort.
Mit der Nutzung der oben angegebenen Telefonnummer oder durch Klicken auf „Kontaktieren“ akzeptierst Du die Allgemeinen Nutzungsbedingungen, denen Du jederzeit widersprechen kannst. Weitere Informationen zum Datenschutz
Wie zufrieden bist du mit dieser Seite (nicht mit der Immobilie selbst)?