Version: 8.24.0Navigation überspringen
Rosenhof Immobilien & Capital- vermittlung GmbH
8.000 €
1.081 m² Lagerfläche

Lagerhalle zur Miete
8.000 €
1.081 m² Lagerfläche

Gewerbepark in Toplage - Junkersstraße 12, Hannover

Willkommen am starken Wirtschaftsstandort Hannover!

Sie suchen einen Verkehrsgünstig gelegenen Standort?

Sie suchen einen Standort innerhalb einer äußerst prosperierenden Umgebung?

Sie suchen einen Standort wo Sie eine großzügige Büroflächemit einer ordentlichen Lager-/ Produktionsfläche kombiniert wissen?

Dann haben wir die perfekte Immobilie für Sie!

Standort "Alter Flughafen" - Junkersstraße 12, nur 5 Minuten südlich der BAB A2 Auffahrt Hannover Nord.

Zur Vermietung steht hier eine gut belichtete, große Lager- und Produktionshalle mit direkt angegliedertem Bürotrakt im Kopfgebäude. Das bietet Ihnen kurze interne Wege und damit eine Grundvoraussetzung für einen guten Workflow.

Die Produktion/ das Lager befindet sich in einer frostfreien, beheizbaren Halle. Die Hallenfläche ist ebenerdig und über eine große Toranlage befahrbar. So ist ein gutes Handling auch mit Gabelstaplern garantiert. Sollten Sie mal "hochstapeln" wollen, bietet Ihnen die großzügige Hallenhöhe dazu ausreichend Möglichkeiten, die u.a. für Hochregal Lagerplätze genutzt werden können.

Das Bürogebäude schließt sich dem Lager/der Produktion direkt an und erstreckt sich über Erd- und Obergeschoss. Im Erdgeschoss befinden sich 3 helle Büroräume und ein großer Konferenzraum mit Einbauküche. Im Obergeschoss befinden sich 5 große, ebenfalls freundliche Büroräume, eine Küche mit Einbauküche und ein Archiv für alle Ihre Unterlagen.

Für Sie, Ihre Mitarbeiter und Kunden stehen ausreichend Parkplätze zur Verfügung; teilweise mit Strom-Ladestationen. Für die Anfahrt mit dem öffentlichen Nahverkehr bietet die fußläufig gut zu erreichende Straßenbahnverbindung eine direkte Anbindung zum Hauptbahnhof Hannover.

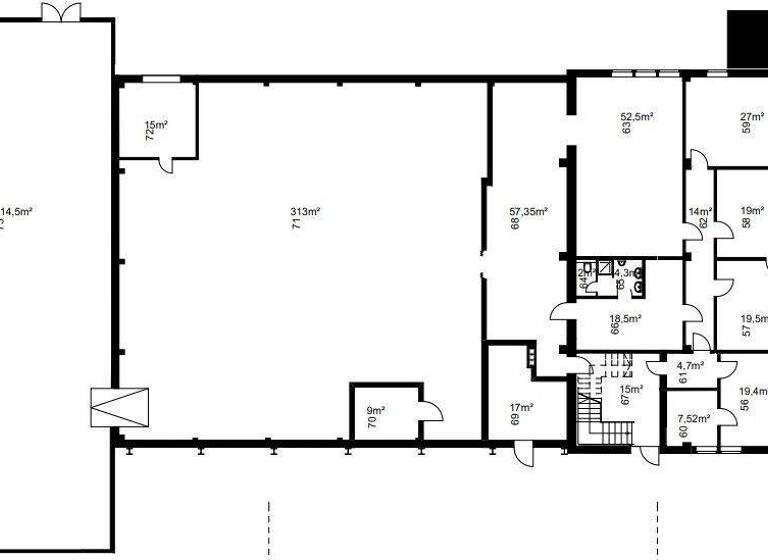
Die Vorhandenen Innenflächen teilen sich wie folgt auf:

Kopfgebäude EG: 209 m²
Kopfgebäude OG: 202 m²
Halle 1: 461 m²
Halle 2: 209 m²

Gesamt: 1081 m²

Merkmale

  • Bezug: Sofort

Grundrisse

Grundrisse
1 / 4

Realisiere Dein Projekt

Bausubstanz und Energie

Energieausweis

Endenergieverbrauch (Wärme)

Endenergieverbrauch (Strom)

  • Baujahr1965
  • Zustand der ImmobilieGepflegt
  • EnergieträgerFernwärme
MediumRectangleTop

Mietkosten

Nettomiete
8.000 €
Nebenkosten
1.600 €
Heizkosten
in Warmmiete enthalten
Provision für Mieter
2,38% inkl. 19% MwSt.
Kaution
24.000,00 EUR

Lage

address-icon
Junkersstraße 12VahrenheideHannover (30179)
Makro Lage:
Hannover - Stadt an der Leine - hat ca. 545.000 Einwohner und bildet seit 1946 die Landeshauptstadt von Niedersachsen. Zuvor gab es eine enge Historie zu Großbritannien. Von 1714 bis 1837 bestand die Personalunion zwischen Großbritannien und Hannover, wonach Hannovers Monarchen auch gleichzeitig die Könige Britanniens waren, was 1866 durch die Annexion der Preußen endete mit stärkerer Ausrichtung an die neuen Herrscher aus Berlin-Brandenburg. Hannover zählt zu den 15 einwohnerreichsten Städten Deutschlands. In Hannover kreuzen sich wichtige Schienen- und Straßenwege der Nord/Süd Achse wie auch der West/Ost Achse. Der Flughafen Hannover-Langenhagen sichert den Zugang zum Luftraum; der Mittellandkanal fördert die Binnenschifffahrt. Hannover ist ein zentraler Bildungsstandort mit 15 Hochschulen und ausgeprägter Kulturstandort mit vielen Museen, Oper, GOP Varieté und Schauspielhäusern. Hannover hat das weltweit zweitgrößte Messegelände und richtet das weltweit größte Schützenfest aus. Zu den Schönheiten der Stadt zählen die Herrenhäuser Gärten, der Maschsee und die zahlreichen innerstädtischen bewaldeten Grünzüge wie z.B. die Eilenriede mit 650 ha Ausdehnung. Dadurch trägt Hannover auch die Bezeichnung "Großstadt im Grünen". Am südlichen Punkt der norddeutschen Tiefebene gelegen, verfügt Hannover mit dem "Kronsberg" lediglich über den höchsten Punkt mit 118 Metern und dem tiefsten Punkt im Stadtgebiet in der Klosterforst Marienwerder mit 44 m über NN.

Mikro Lage:

Mitten drin!
Der "Alte Flughafen" lag früher weit außerhalb der Kernstadt Hannover und war in den beiden Weltkriegen vorrangig militärisch genutzt. Heute wird das Gelände im Norden begrenzt durch die BAB 2 (Achse Ruhrgebiet-Berlin) und im Westen durch die Vahrenwalder Straße, die eine der wichtigsten Nord-Süd Achsen in Hannover darstellt. Auf ehemaligen Ackerflächen wurden - insbesondere nach Aufgabe des "Alten Flughafens" zahlreiche Gewerbegebiete zwischen Mittellandkanal und BAB 2 ausgewiesen, die das Stadtgebiet Hannovers Richtung Norden erweiterten. Stammen die Gewerbeansiedlungen in der Junkersstraße und auch all den benachbarten Straßen hauptsächlich aus der Nachkriegszeit der 50 iger, 60 iger und 70 iger Jahre, so sind in jüngster Zeit hochmoderne Industrie- und Dienstleistungsansiedlungen entlang der Vahrenwalder Straße hinzugekommen, die wiederum verbesserte Infrastruktur nach sich ziehen.

Das Alleinstellungsmerkmal neben der Tatsache eines "Eigentumsgrundstückes" ist die hervorragende Anbindung dieser Liegenschaft. Die Straßenbahn sichert ein gutes Erreichen
der Junkersstraße 12 & 14 durch die Arbeitnehmerschaft; die nahegelegenen Autobahnauffahrten hervorragenden Zugang des Lieferverkehrs über alle Verkehrsachsen. Man befindet sich sozusagen am Knotenpunkt der West/Ost Achse und Nord/Südachse in Norddeutschland, was den Standort Hannover ja auch generell so attraktiv für Gewerbeansiedlungen macht.

Auf dem Grundstück befinden sich in separaten Gebäuden noch weitere Gewerbemieter, die ein gutes Nebeneinander und auch Miteinander pflegen. So verbringen die Mitarbeiter bei schönem Wetter gerne einmal die Pause mit Kollegen aus anderen Betrieben auf dem Gewerbepark Innenhof.

Weitere Informationen

Stichworte Stellplatz vorhanden, Lagerfläche: 1.081,00 m², Gesamtfläche: 1.081,00 m²

Weitere Services

Lust auf eine Besichtigung?
Eine Frage zur Immobilie?
Nachricht hinzufügen
Mit der Nutzung der oben angegebenen Telefonnummer oder durch Klicken auf „Kontaktieren“ akzeptierst Du die Allgemeinen Nutzungsbedingungen, denen Du jederzeit widersprechen kannst. Weitere Informationen zum Datenschutz

Über den Anbieter

Schloßgartenallee 10, 19061 Schwerin
partner badge
Partnerschaft
Herr Jens HenckeDein Kontakt
Keine Telefonnummer hinterlegt
Keine Telefonnummer hinterlegt
Online-ID: 2nw3d5a
Referenznummer: 129944267
Rosenhof Immobilien & Capital- vermittlung GmbH
Rosenhof Immobilien & Capital- vermittlung GmbH
Bewertung: 4 von 5 Sternen
Nachricht hinzufügen
Mit der Nutzung der oben angegebenen Telefonnummer oder durch Klicken auf „Kontaktieren“ akzeptierst Du die Allgemeinen Nutzungsbedingungen, denen Du jederzeit widersprechen kannst. Weitere Informationen zum Datenschutz
MediumRectangleTop
MediumRectangleBottom
MediumRectangleTop
Wie zufrieden bist du mit dieser Seite (nicht mit der Immobilie selbst)?