Ihr Rückzugsort im Grünen: Modernes Wohnen in der Klugargasse
Im Herzen des aufstrebenden Wiener Bezirks Liesing entsteht ein modernes und stilvolles Neubauprojekt, unweit der charmanten Heurigen-Gegend von Perchtoldsdorf! Hier vereinen sich naturnahe Entspannung und moderner Wohnkomfort. Leben, wo man aufatmen kann: Genießen Sie die vielfältigen Freizeitmöglichkeiten in Liesing und erfreuen sich gleichzeitig über eine perfekte Anbindung an die Innenstadt. KLUGARTOWN - ein Ort, der begeistert.
Das Projekt
Ein Wohnraum im Einklang mit besonderen Werten - Das Projekt ist umweltbewusst, hochwertig und verfolgt moderne nachhaltige Ansätze. Als Basis diente ein langfristig durchdachtes Konzept, gefolgt von einer tiefgehenden Planung bis hin zur qualitativ hochwertigen Bauausführung. Highlights für die Bewohner und die Natur sind die Luft-Wärmepumpe sowie der Fokus auf Niedrigenergiestandards.
Einziehen und wohlfühlen - die Wohneinheiten werden schlüsselfertig übergeben und bieten Lebensraum für Singles, Paare und Familien. Für ein rundum schönes und gemütliches Zuhause sorgen hochwertige Materialen, abgerundet durch großzügige, hofseitige Freiflächen. Dadurch wird die Wohnanlage zu einem privaten, ruhigen Rückzugsort.
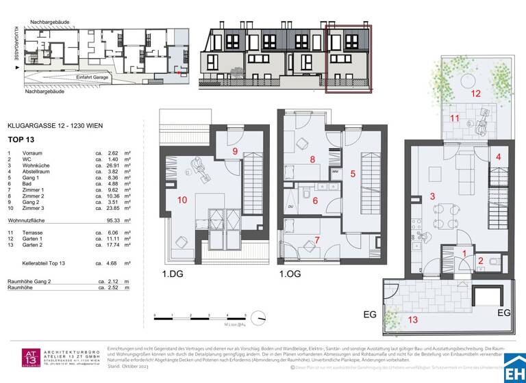
* 4 Townhouses
* 10 Wohnungen
* 2 - 4 Zimmer-Wohnungen
* Wohnungsgrößen zwischen 40 und 101 m²
* Freiflächen wie Eigengärten, Terrassen, Loggias oder Balkone
* Hauseigene Tiefgarage
* Kinderwagen- und Fahrradabstellraum
* Energieeffizienz:
* HWB ab 23,10 kWh/m²a (Klasse B)
* fGEE ab 0,68 (Klasse A+)
Die Ausstattung
* Fußbodenheizung mittels Luft-Wärmepumpe zuzüglich PV-Module
* 3-fach isolierte Kunststoff-Alufenster
* Außenliegender, elektrischer Sonnenschutz
* Parkettböden in Eiche
* Feinsteinzeug im Format 30x60 in den Nassbereichen
* Klimaanlagen auf Sonderwunsch möglich
Verschaffen Sie sich einen ersten Eindruck bei unserem Video-Rundgang! [https://youtu.be/pkRMUwrc1X8]
Die Lage
Die Klugargasse im 23. Wiener Gemeindebezirk zeichnet sich durch ihre attraktive Lage in einer ruhigen, aber dennoch hervorragend erschlossenen Wohngegend aus. Gepflegte Wohn- und Einfamilienhäuser und grüne Oasen prägen das Straßenbild und schaffen eine angenehme, entspannte Atmosphäre. Die Lage besticht zudem durch ihre exzellente Verkehrsanbindung.
Der nahegelegene Kaufpark Alterlaa und Wienerberg City bieten zahlreiche Einkaufsmöglichkeiten sowie vielfältige Unterhaltungsangebote. Darüber hinaus ist die Shopping City Süd, das größte Einkaufszentrum Österreichs, in nur etwa 20 Minuten mit dem Auto zu erreichen. Ein Supermarkt ist fußläufig erreichbar.
* Bus: 60A, 66A
* U-Bahn Station Alterlaa
* Autobahn A2
3% Kundenprovision
Fertigstellung: Herbst 2024
Wir weisen darauf hin, dass zwischen dem Vermittler und dem zu vermittelnden Dritten ein familiäres oder wirtschaftliches Naheverhältnis besteht.
Der Vermittler ist als Doppelmakler tätig.
Infrastruktur / Entfernungen
Gesundheit
Arzt <1.000m
Apotheke <500m
Klinik <250m
Krankenhaus <1.750m
Kinder & Schulen
Schule <500m
Kindergarten <500m
Universität <5.000m
Höhere Schule <4.500m
Nahversorgung
Supermarkt <250m
Bäckerei <500m
Einkaufszentrum <1.500m
Sonstige
Geldautomat <500m
Bank <500m
Post <1.500m
Polizei <1.250m
Verkehr
Bus <250m
U-Bahn <1.500m
Straßenbahn <2.250m
Bahnhof <1.000m
Autobahnanschluss <2.250m
Angaben Entfernung Luftlinie / Quelle: OpenStreetMap