Neuwertige Doppelhaushälfte in Oberndorf - Ihr Traumhaus wartet auf Sie!
Das Wohnhaus ist modern, funktional und lichtdurchflutet geplant. Große Fensterflächen, offene Wohnbereiche und ein vollwertig nutzbares Dachgeschoss sorgen für ein helles und freundliches Raumgefühl. Die Architektur zeigt klar gezeichnete Linien, eine ästhetische Fassadengliederung und hochwertige Fensterformate.
*Energieausweis in Bearbeitung, liegt bei Besichtigung vor.
Merkmale
228 m² Grundstück
AuĂźen-Stellplatz
Gäste-WC
Terrasse
WG-geeignet
Bodenbelag: Estrich
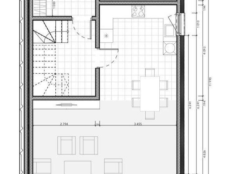
Der großzügige, offen gestaltete Grundriss umfasst: . Einen sehr großen Wohnbereich mit breiter Fensterfront (Fensterpositionen u. a. W-04t 3000×2250 mm) . Offenen Koch-/Essbereich . Funktional angelegte Eingangszone mit Treppenhaus . Praktische Nebenflächen . Großzügige Raumwirkung durch klare Linien und helle Fassadenelemente
Der große raumbreite Fensterausschnitt schafft eine direkte Verbindung zum Garten und sorgt für maximale Lichtqualität.
Der großzügige, offen gestaltete Grundriss umfasst: . Einen sehr großen Wohnbereich mit breiter Fensterfront (Fensterpositionen u. a. W-04t 3000×2250 mm) . Offenen Koch-/Essbereich . Funktional angelegte Eingangszone mit Treppenhaus . Praktische Nebenflächen . Großzügige Raumwirkung durch klare Linien und helle Fassadenelemente
Der große raumbreite Fensterausschnitt schafft eine direkte Verbindung zum Garten und sorgt für maximale Lichtqualität.
Auffällige Merkmale: . Vier Dachflächenfenster WR-01 (660×1400 mm), die viel Licht einbringen . Flexible Raumaufteilung . Großzügige Nutzfläche trotz Dachschräge
Grundrisse
Grundrisse
1 / 3
Realisiere Dein Projekt
Bausubstanz und Energie
Der Anbieter hat keine Informationen zum Energieverbrauch bereit gestellt.
Baujahr2025
Zustand der Immobilieneuwertig
Preisdetails
Kaufpreis
565000 €565.000 €
3.138,89 €/m²
Provision für Käufer
3,57 % Käuferprovision inkl. 19 % MwSt. Die Provision errechnet sich aus dem Kaufpreis. Weitere Informationen siehe Provisionshinweis.
Weitere Preisinformationen
1 Stellplatz
Geschätzte Gesamtkosten
616.245 €1
Kaufpreis
565.000 €
Kaufnebenkosten
51.245 €
2
Notarkosten (1,5%)
8.475 €
Grunderwerbsteuer (3,5%)
19.775 €
Provision für Käufer (3,57%)
20.170 €
Grundbucheintrag (0,5%)
2.825 €
1Der angezeigte Wert ist eine automatisch berechnete Schätzung von immowelt.
2Bei den Angaben handelt es sich um ortsübliche Werte. Individuelle Kosten können abweichen.
Lage
Oberndorf, Oberndorf am Lech (86698)
Der Anbieter hat die genaue Adresse nicht freigegeben
Die Lage in Oberndorf am Lech bietet optimale Anbindung an B2 und B16 sowie kurze Wege zu Kindergarten, Schulen, Einkaufen und Ärzten. Die Bahnhöfe Mertingen und Assbach-Bäumenheim sind in wenigen Minuten erreichbar.