Version: 8.24.0Navigation überspringen
ohne-makler.net - Immobilien selbst vermarkten
209.000 €
7 Zimmer  •  121,1 m²  •  116 m² Grundstück

Einfamilienhaus zum Kauf • provisionsfrei
209000 €
1.725 €/m²
7 Zimmer  •  121,1 m²  •  116 m² Grundstück

Stabile Kapitalanlage mit 6,0 % Rendite - Einfamilienhaus bei Coburg

Bei dem angebotenen Objekt handelt es sich um ein umfangreich saniertes und vermietetes Einfamilienhaus in zentraler Lage von Ebersdorf bei Coburg, Hauptstraße 21.
Die Immobilie stellt eine attraktive Kapitalanlage mit stabilen und indexierten Mieteinnahmen dar und überzeugt durch ihren sehr guten baulichen Zustand nach umfassender Modernisierung.
Das ursprünglich ca. 1930 errichtete Haus verfügt über eine Wohnfläche von ca. 121 m², verteilt auf 7 Zimmer, davon 6 Schlafzimmer, sowie zwei neue Bäder.
Die Immobilie ist teilunterkellert und bietet eine funktionale, gut vermietbare Raumaufteilung.
Im Rahmen einer umfassenden energetischen und technischen Sanierung wurden nahezu alle relevanten Gewerke modernisiert, darunter:
- neue Fenster
- Dämmung der oberen Geschossdecke
- Gastherme Baujahr 2024
- Elektrik überholt
- zwei neue Bäder
- neue Innenausstattung (Wände, Böden und Oberflächen)

Die Außendämmung ist vorbereitet, jedoch noch nicht vollständig abgeschlossen, da der ursprünglich beauftragte Handwerksbetrieb die Arbeiten aufgrund eines Todesfalls nicht finalisieren konnte.
Dies eröffnet dem Käufer zusätzliches Wertsteigerungspotenzial.
Zur Immobilie gehört eine Terrasse. Auf Garage, Stellplätze und Garten wurde bewusst verzichtet, wodurch kein Pflege- oder Außenanlagenaufwand entsteht - ein klarer Vorteil für Kapitalanleger.
Das Objekt ist seit Dezember 2025 vermietet. Der Mietvertrag ist indexiert, was eine langfristige Anpassung der Miete an die Inflation ermöglicht. Die monatliche Kaltmiete beträgt 1.050 €, entsprechend einer Jahreskaltmiete von 12.600 €.
Bei einem Kaufpreis von 209.000 € ergibt sich eine Bruttorendite von ca. 6,03 %.
Ein neuer Energieausweis wird aktuell erstellt, da die durchgeführten energetischen Maßnahmen noch nicht vollständig berücksichtigt sind.
Insgesamt handelt es sich um eine pflegeleichte, modernisierte Bestandsimmobilie mit solider Rendite, indexierter Vermietung und zusätzlichem Entwicklungspotenzial - ideal für Kapitalanleger.

Objektzustand: Erstbezug nach Sanierung

Merkmale

  • Bezug: nach Absprache
  • vermietet
  • 116 m² Grundstück
  • Keller
  • Terrasse
  • Bodenbelag: Laminat, Kunststoff
Terrasse, Keller, Laminat

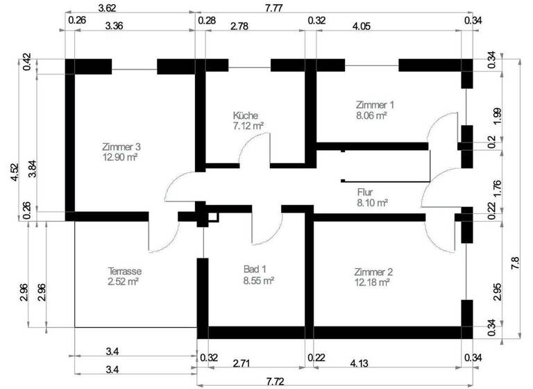
Grundrisse

Grundrisse
1 / 2

Realisiere Dein Projekt

Bausubstanz und Energie

Der Anbieter hat keine Informationen zum Energieverbrauch bereit gestellt.
  • Baujahr1927
  • Zustand der Immobilierenoviert / saniert
  • HeizungsartZentralheizung
  • EnergieträgerGas
MediumRectangleTop

Preisdetails

Kaufpreis
209000 €
1.725,28 €/m²
Provision für Käufer
provisionsfrei; keine Provision, courtagefrei
Geschätzte Gesamtkosten
220.495 €1
Kaufpreis
209.000 €
Notarkosten (1,5%)
3.135 €
Grunderwerbsteuer (3,5%)
7.315 €
Grundbucheintrag (0,5%)
1.045 €
1Der angezeigte Wert ist eine automatisch berechnete Schätzung von immowelt.
2Bei den Angaben handelt es sich um ortsübliche Werte. Individuelle Kosten können abweichen.

Lage

address-icon
Hauptstraße 21FrohnlachEberdorf bei Coburg (96237)
Die Immobilie befindet sich in zentraler Lage von Ebersdorf bei Coburg, einer gefragten Gemeinde im oberfränkischen Landkreis Coburg. Ebersdorf zeichnet sich durch eine sehr gute Infrastruktur, eine stabile Nachfrage nach Wohnraum sowie die Nähe zur Stadt Coburg aus, was den Standort insbesondere für Kapitalanleger attraktiv macht.
Die Hauptstraße bildet eine der zentralen Verkehrsachsen des Ortes. Einkaufsmöglichkeiten des täglichen Bedarfs, Bäcker, Ärzte, Apotheken, Schulen und Kindergärten sind in wenigen Minuten erreichbar. Auch gastronomische Angebote sowie weitere Dienstleister befinden sich im direkten Umfeld.
Die verkehrliche Anbindung ist hervorragend: Über die nahegelegene Bundesstraße B303 sowie die Autobahn A73 besteht eine schnelle Verbindung nach Coburg, Lichtenfels, Bamberg und Nürnberg. Der Bahnhof Ebersdorf bietet zudem eine gute Anbindung an den regionalen Schienenverkehr.
Durch die Kombination aus zentraler Lage, guter Erreichbarkeit, wirtschaftlich stabilem Umfeld und hoher Vermietbarkeit eignet sich die Lage ideal für eine dauerhafte und sichere Wohnraumnutzung. Die Nähe zu Coburg mit seinen Arbeitsplätzen, Kliniken, Bildungseinrichtungen und Industriebetrieben sorgt für eine konstant hohe Mietnachfrage.
Insgesamt handelt es sich um einen etablierten Wohnstandort mit nachhaltigem Entwicklungspotenzial, der sowohl für Eigennutzer als auch - insbesondere - für Kapitalanleger mit Fokus auf langfristige Vermietung überzeugt.
Infrastruktur (im Umkreis von 5 km):
Apotheke, Lebensmittel-Discount, Allgemeinmediziner, Kindergarten, Grundschule, Hauptschule, Realschule, Gesamtschule, Öffentliche Verkehrsmittel

Weitere Informationen

Sonstiges Heizungsart: Zentralheizung
Energieträger: Gas
Energieausweis nicht vorhanden

Impressum - HAMA Immobilien GmbH
Angaben gemäß § 5 TMG / §§ 55 RStV
HAMA Immobilien GmbH
Kirchstück 29
96472 Rödental-Waldsachsen
Deutschland
?? Telefon: 09563 5 49 55 33

?? E-Mail: info@hama-immobilien.com

Vertreten durch den Geschäftsführer:
Christian Röhrdanz

Registereintrag:
Eingetragen im Handelsregister beim Amtsgericht Coburg
Handelsregister Nr.: HRB 6644

Umsatzsteuer-Identifikationsnummer:
DE31026900

Inhaltlich Verantwortlicher gemäß § 55 Abs. 2 RStV:
Christian Röhrdanz, Anschrift wie oben

Makleranfragen nicht erwünscht. Nach § 7 UWG sind unaufgeforderte Kontaktaufnahmen durch Makler ohne ausdrückliche Einwilligung des Empfängers verboten!

ohne-makler (OM) ist weder Anbieter noch Vermittler der Immobilie. OM betreibt eine Plattform für Immobilieneigentümer, die unter anderem die gleichzeitige Veröffentlichung einzelner Inserate auf mehreren Immobilienportalen ermöglicht. Die Inhalte dieser Inserate werden ausschließlich von Dritten verantwortet. Für die Richtigkeit, Vollständigkeit oder Rechtmäßigkeit der Angaben übernimmt OM keine Haftung. Hinweise auf mögliche Rechtsverstöße können jederzeit gemeldet werden und werden nach Prüfung umgehend bearbeitet. Stichworte Anzahl der Schlafzimmer: 6, Anzahl der Badezimmer: 2, Anzahl Terrassen: 1, Bundesland: Bayern, 2 Etagen

Weitere Services

Lust auf eine Besichtigung?
Eine Frage zur Immobilie?
Nachricht hinzufügen
Mit der Nutzung der oben angegebenen Telefonnummer oder durch Klicken auf „Kontaktieren“ akzeptierst Du die Allgemeinen Nutzungsbedingungen, denen Du jederzeit widersprechen kannst. Weitere Informationen zum Datenschutz

Über den Anbieter

Humboldtstr. 25 A, 21509 Glinde
partner badge
Partnerschaft
Angebot von Christian RöhdanzDein Kontakt
Keine Telefonnummer hinterlegt
Keine Telefonnummer hinterlegt
Online-ID: 2ml9c5y
Referenznummer: 418519
ohne-makler.net - Immobilien selbst vermarkten
ohne-makler.net - Immobilien selbst vermarkten
Nachricht hinzufügen
Mit der Nutzung der oben angegebenen Telefonnummer oder durch Klicken auf „Kontaktieren“ akzeptierst Du die Allgemeinen Nutzungsbedingungen, denen Du jederzeit widersprechen kannst. Weitere Informationen zum Datenschutz
MediumRectangleTop
MediumRectangleBottom
MediumRectangleTop
Wie zufrieden bist du mit dieser Seite (nicht mit der Immobilie selbst)?