

Haus zum Kauf775000 €3.780 €/m²7 Zimmer • 205 m² • 1.149 m² Grundstück
775000 €
3.780 €/m²
7 Zimmer • 205 m² • 1.149 m² Grundstück
! Energieklasse A ! Einfamilienhaus mit großem Potential und vielfältigen Möglichkeiten im schönen Lütjensee
Merkmale
- 1.149 m² Grundstück
- Einbauküche, Speisekammer
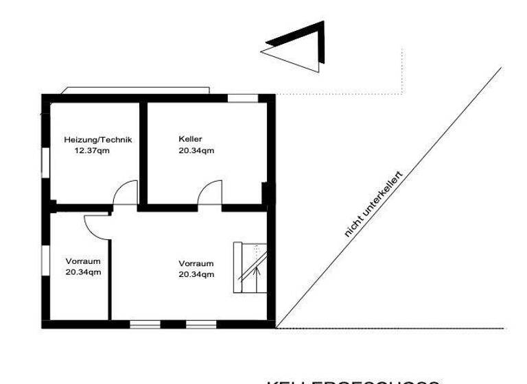
- Keller
- 4 Stellplätze: Carport, Außen-Stellplatz
- Garten
- Terrasse
- Bodenbelag: Fliesen
- Fenster: Kunststoff
Grundrisse
Grundrisse
1 / 3
Realisiere Dein Projekt
Bausubstanz und Energie
Energieausweis
A
- Baujahr1949
- Zustand der ImmobilieMassivhaus
- EnergieträgerElektro, Solar, Luft-/Wasser-Wärmepumpe
Preisdetails
Kaufpreis
775000 €
3.780,49 €/m²
Provision für Käufer
3,57 % inkl. MwSt
Geschätzte Gesamtkosten
868.542 €1
Kaufpreis
775.000 €
Kaufnebenkosten
93.542 €
2Notarkosten (1,5%)
11.625 €
Grunderwerbsteuer (6,5%)
50.375 €
Provision für Käufer (3,57%)
27.667 €
Grundbucheintrag (0,5%)
3.875 €
1Der angezeigte Wert ist eine automatisch berechnete Schätzung von immowelt.
2Bei den Angaben handelt es sich um ortsübliche Werte. Individuelle Kosten können abweichen.
Lage

Lütjensee (22952)
Der Anbieter hat die genaue Adresse nicht freigegeben
Weitere Informationen
Weitere Services
Lust auf eine Besichtigung?
Eine Frage zur Immobilie?
Über den Anbieter
Alte Landstr. 19, 22927 Großhansdorf
Frau Birte SchillingDein Kontakt
Weitere Unterlagen
Online-ID: 25CDN2G24QM1

Schilling und Faustmann Immobilien GbR
Bewertung: 5 von 5 Sternen
Wie zufrieden bist du mit dieser Seite (nicht mit der Immobilie selbst)?

