Version: 8.24.0Navigation überspringen
21.418 €
419,3 m² Verkaufsfläche
Immowelt logo

Verkaufsfläche zur Miete
21.418 €
419,3 m² Verkaufsfläche

Ihr nächstes Luxury-Statement? Flagship-Store auf der Friedrichstraße!

Diese außergewöhnliche Gewerbefläche in der Friedrichstraße 184 bietet ideale Voraussetzungen für ein hochwertiges Retail- oder Flagship-Store-Konzept im Herzen Berlins. Auf rund 420 m² präsentiert sich die Fläche in einem modernen, minimalistischen Design mit großzügigen Raumdimensionen, hochwertigem Steinboden sowie einer eleganten Beleuchtung, die perfekte Inszenierungsmöglichkeiten für Premium-Marken schafft.

Die großzügige Fensterfront sorgt für eine exzellente Sichtbarkeit und eine helle, einladende Atmosphäre. Die klare Architektur mit markanten Säulenstrukturen und flexiblen Grundrissoptionen ermöglicht eine vielseitige Nutzung - vom exklusiven Einzelhandel über Showroom-Konzepte bis hin zu repräsentativen Markenwelten.

Ein Standort, der höchste Ansprüche erfüllt und sich ideal für anspruchsvolle Konzepte im Luxury-Segment eignet.

Merkmale

  • frei ab 01.03.2026
  • Erdgeschoss
  • Barrierefrei
  • Bodenbelag: Fliesen
- Ca. 420 m² hochwertige Retailfläche
- Prime Location: Friedrichstraße 184, Berlin-Mitte
- Ideal für Flagship Store, Luxury Retail, Showroom oder Concept Store
- Großzügige, offene Verkaufsfläche mit flexibler Gestaltung
- Repräsentative Fensterfront für maximale Sichtbarkeit
- High-End Innenausbau mit modernem Steinboden
- Professionelles Lichtkonzept (Premium-Retail-Beleuchtung)

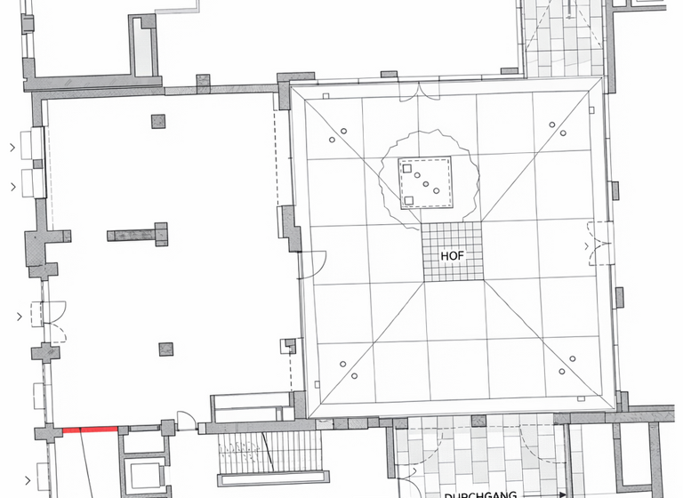
Grundrisse

Grundrisse
1 / 1

Realisiere Dein Projekt

Bausubstanz und Energie

Der Anbieter hat keine Informationen zum Energieverbrauch bereit gestellt.
  • Zustand der Immobilieneuwertig
  • HeizungsartZentralheizung
Immowelt logo

Mietkosten

Warmmiete
24.689,60 €
Nettomiete
21.418 €
Nebenkosten
3.271,60 €
Heizkosten
in Warmmiete enthalten
Provision für Mieter
3,57 Nettokaltmieten inklusive. 19?%MwSt.
Kaution
Drei Bruttowarmmieten

Lage

address-icon
Friedrichstraße 184MitteBerlin (10117)
Die angebotene Gewerbefläche befindet sich in erstklassiger Innenstadtlage im Herzen von Berlin-Mitte, direkt an der renommierten Friedrichstraße - einer der bekanntesten Geschäftsadressen der Hauptstadt.

Das Umfeld ist geprägt von hochwertigen Büro- und Geschäftshäusern, namhaften Unternehmen, Einzelhandel, Gastronomie sowie kulturellen Einrichtungen. Die zentrale Lage sorgt für eine hohe Passantenfrequenz und ein repräsentatives Umfeld.

Die Verkehrsanbindung ist ausgezeichnet: Der Bahnhof Friedrichstraße mit S-, U-Bahn-, Regional- und Fernverkehr befindet sich in unmittelbarer Nähe und gewährleistet eine optimale Erreichbarkeit für Mitarbeitende, Kundschaft und Geschäftspartner. Auch der Berliner Hauptbahnhof ist schnell erreichbar.

Der Standort bietet ideale Voraussetzungen für Unternehmen, die von einer zentralen, gut frequentierten und hervorragend angebundenen Lage profitieren möchten.

Weitere Informationen

Stichworte Bundesland: Berlin

Weitere Services

Lust auf eine Besichtigung?
Eine Frage zur Immobilie?
Nachricht hinzufügen
Mit der Nutzung der oben angegebenen Telefonnummer oder durch Klicken auf „Kontaktieren“ akzeptierst Du die Allgemeinen Nutzungsbedingungen, denen Du jederzeit widersprechen kannst. Weitere Informationen zum Datenschutz

Über den Anbieter

Kurfürstendamm 133, 10711 Berlin
Frau Andrea Riley
Frau Andrea RileyDein Kontakt
Online-ID: 2n44p5n
Referenznummer: 10117FS184-EG
Nudelmann & Friends Immobilien GmbH
title
Nudelmann & Friends Immobilien GmbH
Nachricht hinzufügen
Mit der Nutzung der oben angegebenen Telefonnummer oder durch Klicken auf „Kontaktieren“ akzeptierst Du die Allgemeinen Nutzungsbedingungen, denen Du jederzeit widersprechen kannst. Weitere Informationen zum Datenschutz
Wie zufrieden bist du mit dieser Seite (nicht mit der Immobilie selbst)?