
Immobilien Dohle
Herr/Frau Dohle
029 ···
Nr. anzeigenPreise & Kosten
Provision für Mieter
Der Mieter zahlt bei Abschluss eines Mietvertrages an die Firma Immobilien Dohle eine Vertragsprovision von 2,38 Netto – Monatsmieten incl. 19 % MwSt
Warum sehe ich diese Anzeige? – Du siehst diese Anzeige basierend auf Ihrer Navigation auf unserer Website und den Suchkriterien, die du verwendet hast.
Lage
Im Herzen der Kreisstadt Soest gelegen, besticht die Bürolage durch ihre zentrale Anziehungskraft. In unmittelbarer Nähe finden sich zahlreiche Geschäfte des täglichen Bedarfs, die den Alltag der Bewohner erleichtern und den Komfort eines urbanen Lebensstils fördern. Nur wenige Schritte entfernt lädt die einladende...
Büro-/Praxisfläche
Kategorie
Bürofläche
Bezug
01.04.2026
Mindestmietdauer
24 Monate
Energie & Heizung
Warum sehe ich diese Anzeige? – Du siehst diese Anzeige basierend auf Ihrer Navigation auf unserer Website und den Suchkriterien, die du verwendet hast.
Weitere Energiedaten
Energieträger
Gas
Details
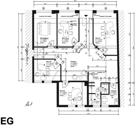
Objektbeschreibung
Diese großzügige und gepflegte Bürofläche von etwa 145 m² finden Sie in einem Mehrparteienhaus im Herzen von Soest. Die Räumlichkeiten sind intelligent aufgeteilt und bieten fünf separate Büros, einen Besprechungsraum, eine praktische Kleinküche sowie einen Sanitärbereich. Für Ihre Kunden stehen zahlreiche...
Weitere Informationen
Sonstiges
Info: Anzahl Etagen: 2
Anbieter der Immobilie
Immobilien Dohle
Am Schmielenpfad 9, 59505 Bad Sassendorf
Online-ID: 2md7m5h
Referenznummer: 939
Finde Angebote wie dieses
Hier geht es zu unserem Impressum, den Allgemeinen Geschäftsbedingungen, den Hinweisen zum Datenschutz und nutzungsbasierter Online-Werbung.