Version: 8.22.6Navigation überspringen
1.317 €
3 Zimmer  •  67,8 m²  •  4. Geschoss
Immowelt logo

Wohnung zur Miete - Erstbezug
1.317 €
3 Zimmer  •  67,8 m²  •  4. Geschoss

++FonteFlats++ High-Quality 3-room New-Build - First Occupancy with a Spacious Terrace!

Newly Built 3-Room Apartment with Balcony - First Occupancy on the 4th Floor of a Charming Period Building

The kitchens will still be installed at the landlord's expense!

For rent is a newly built approx. 68 m² 3-Room apartment with balcony in a well-maintained period building. The apartment is located on the 4th floor and is offered as a first occupancy. 

Viewing
To arrange a viewing appointment, we kindly ask you to send us a written inquiry. We reliably reply the same day!

Apartment Details
Location: 4th Floor
Layout:

* Entrance hall
* Bathroom with WC and bathtub
* Separate WC
* Living kitchen (kitchen will be installed by the landlord)
* 2 bedrooms
* Storage room
* Balcony
* (See floor plan and current photos)

Condition
The apartment was newly built and will be available for first occupancy.

Features

*
Underfloor heating

*
High-quality parquet flooring

*
Exclusively fitted sanitary facilities

The Building

The property is located in a beautiful period building that was recently modernised.

The attic conversion included the installation of a passenger elevator.

Location
The apartment is situated on Quellenstraße, a quiet residential area with excellent infrastructure:

*
Shopping: Daily necessities are within walking distance.

*
Medical care: General practitioners and specialists are nearby.

Public Transport Connections
Tram lines:

*
6: Burggasse/Stadthalle - Reumannplatz

*
11: Otto-Probst-Platz - Kaiserebersdorf

*
D: Nußdorf - Alfred-Adler-Straße

The tram stops are only a 2-minute walk away.

Price
The total monthly rent (including operating costs and VAT) is € 1,449.00.

The rental agreement is limited to 5 years.

The security deposit amounts to 3 gross monthly rents.

 

Sollten Sie Fragen haben oder einen Besichtigungstermin wünschen, zögern Sie bitte nicht mich zu kontaktieren. (am besten via E-Mail Anfrage)

Zur Vereinbarung eines Besichtigungstermins lassen Sie uns bitte jedenfalls eine E-Mailanfrage zukommen!

Der IMMY ist die renommierteste Auszeichnung für Wiener Makler- und Verwalterbetriebe im Bereich Wohnimmobilien. Wir sind stolz den goldenen IMMY für das Jahr 2019 gewonnen zu haben!

Vielen Dank vor allem an unsere Kunden! Unser Unternehmen wurde auch zum Besten Start Up und in den Jahren 2015, 2018, 2019 und 2020 als Qualitätsmakler ausgezeichnet!

Bitte achten Sie darauf, dass Sie diese Immobilie, nach Ihrer Anfrage bei Adonia Immobilien, nicht auch bei einem anderen Immobilienmaklerbüro anfragen! Vielen Dank!

Nicht alle unsere Immobilien finden Sie auf den gängigen Plattformen. Wir freuen uns auf Ihren Besuch auf unserer Homepage unter adonia.at 

Wir weisen ausdrücklich auf unser wirtschaftliches Naheverhältnis mit dem Abgeber/ der Abgeberin hin!  Unsere gesetzlichen Pflichten als Doppelmakler werden dadurch jedoch nicht beeinträchtigt. Irrtum und Änderungen vorbehalten. 

Alle hier veröffentlichen Informationen basieren auf den uns von dem Abgeber/ der Abgeberin zur Verfügung gestellten Informationen und wurden nicht selbst erhoben.

Unsere Allgemeinen Geschäftsbedingungen können Sie sowohl in dem Ihnen zugesandten Expose einsehen als auch auf unserer Homepage. Wir weisen ausdrücklich darauf hin, dass diese AGBs Vertragsinhalt werden.

Der Schutz von personenbezogenen Daten ist uns wichtig und auch gesetzlich gefordert. Die Verarbeitung Ihrer personenbezogenen Daten erfolgt nach den datenschutzrechtlichen Bestimmungen. Auf unserer Homepage (unter Datenschutzinformation) finden Sie eine Übersicht die Sie über die wichtigsten Aspekte der Verarbeitung personenbezogener Daten informieren soll.

Wir weisen darauf hin, dass zwischen dem Vermittler und dem zu vermittelnden Dritten ein familiäres oder wirtschaftliches Naheverhältnis besteht.

Der Immobilienmakler erklärt, dass er - entgegen dem in der Immobilienwirtschaft üblichen Geschäftsgebrauch des Doppelmaklers - einseitig nur für den Vermieter tätig ist.

Infrastruktur / Entfernungen

Gesundheit
Arzt <1.000m
Apotheke <500m
Klinik <1.000m
Krankenhaus <2.500m

Kinder & Schulen
Schule <500m
Kindergarten <500m
Universität <500m
Höhere Schule <2.000m

Nahversorgung
Supermarkt <500m
Bäckerei <500m
Einkaufszentrum <1.500m

Sonstige
Geldautomat <500m
Bank <500m
Post <500m
Polizei <1.500m

Verkehr
Bus <500m
U-Bahn <1.000m
Straßenbahn <500m
Bahnhof <500m
Autobahnanschluss <500m

Angaben Entfernung Luftlinie / Quelle: OpenStreetMap

Merkmale

  • 4. Geschoss
  • Einbauküche
  • Personenaufzug
  • Balkon
  • Badewanne
  • WG-geeignet
  • Bodenbelag: Fliesen, Parkett

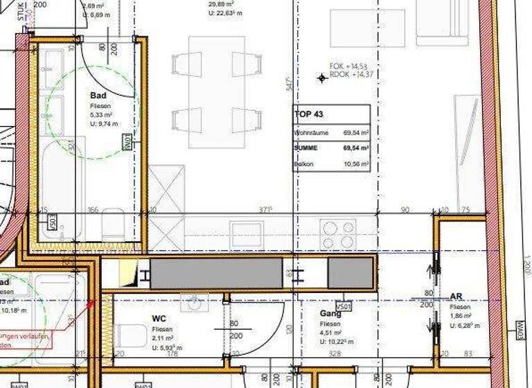
Grundrisse

Grundrisse
1 / 1

Realisiere Dein Projekt

Bausubstanz und Energie

Heizwärmebedarf (HWB)

B

Gesamtenergieeffizienz (fGEE)

  • Baujahr2024
  • Zustand der ImmobilieNeubau, Erstbezug
  • HeizungsartFußbodenheizung
  • EnergieträgerLuft-/Wasser-Wärmepumpe
Immowelt logo

Mietkosten

Gesamtmiete
1.448,99 €
Nettokaltmiete zzgl. Betriebskosten
19,43 €/m²
1.317,26 €
Kaution
3 Bruttomonatsmieten
Weitere Preisinformationen
Nettokaltmiete: 1.317,26 EUR

Lage

address-icon
Wien (1100)
Quellenstraße

Weitere Informationen

Stichworte Nord-Ost-Balkon/Terrasse, Anzahl der Badezimmer: 1, Anzahl der separaten WCs: 2, Anzahl Balkone: 1, Balkon-Terrassen-Fläche: 10,56 m², Bundesland: Wien

Weitere Services

Lust auf eine Besichtigung?
Eine Frage zur Immobilie?
Nachricht hinzufügen
Mit der Nutzung der oben angegebenen Telefonnummer oder durch Klicken auf „Kontaktieren“ akzeptierst Du die Allgemeinen Nutzungsbedingungen, denen Du jederzeit widersprechen kannst. Weitere Informationen zum Datenschutz

Über den Anbieter

Hohenstaufengasse 9/2, 1010 WIEN
partner badge
10 Jahre Partnerschaft
Herr Rene MotamediDein Kontakt
Online-ID: 2n8qg5a
Referenznummer: OBGC2026012814201542742a82f4d7f
Adonia Relaitätenvermittlung GmbH
Bewertung: 1,2 von 5 Sternen
Nachricht hinzufügen
Mit der Nutzung der oben angegebenen Telefonnummer oder durch Klicken auf „Kontaktieren“ akzeptierst Du die Allgemeinen Nutzungsbedingungen, denen Du jederzeit widersprechen kannst. Weitere Informationen zum Datenschutz
Wie zufrieden bist du mit dieser Seite (nicht mit der Immobilie selbst)?