Version: 8.24.0Navigation überspringen
701.400 €
4 Zimmer  •  107 m²  •  418 m² Grundstück
Immowelt logo

Doppelhaushälfte zum Kauf
701400 €
6.555 €/m²
4 Zimmer  •  107 m²  •  418 m² Grundstück

HH-Bramfeld, gepl. Neubau zwei charmanter DHH in idyllischer & zentraler Lage - KfW 40- inkl. Bauneben u. HA-Kosten - planen Sie mit www.pro-haus.de

Merkmale

  • Bezug: 2026/2027
  • 3 Geschosse
  • 418 m² Grundstück
  • offene Küche
  • Kein Keller
  • Garten
  • kontrollierte Be- und Entlüftungsanlage

Grundrisse

Grundrisse
1 / 4

Realisiere Dein Projekt

Bausubstanz und Energie

Der Anbieter hat keine Informationen zum Energieverbrauch bereit gestellt.
  • Baujahr2026
  • Zustand der ImmobilieNeubau, Massivhaus, Projektiert
  • HaustypKfW 40
  • HeizungsartFußbodenheizung
  • EnergieträgerLuft-/Wasser-Wärmepumpe
Immowelt logo

Preisdetails

Kaufpreis
701400 €
6.555,14 €/m²
Provision für Käufer
Der genannte Preis beinhaltet die Kosten für das Grundstück inkl. Courtage, die Herstellungskosten für das Haus gemäß Komfort-Baubeschreibung sowie der Bauneben- und Hausanschlusskosten.
Geschätzte Gesamtkosten
779.045 €1
Kaufpreis
701.400 €
Notarkosten (1,5%)
10.521 €
Grunderwerbsteuer (5,5%)
38.577 €
Provision für Käufer (3,57%)
25.040 €
Grundbucheintrag (0,5%)
3.507 €
1Der angezeigte Wert ist eine automatisch berechnete Schätzung von immowelt.
2Bei den Angaben handelt es sich um ortsübliche Werte. Individuelle Kosten können abweichen.

Lage

address-icon
BramfeldHamburg (22175)
Der Anbieter hat die genaue Adresse nicht freigegeben
Hamburg-Bramfeld zählt zu den vielseitigsten und lebendigsten Stadtteilen im Nordosten Hamburgs.
Charakteristisch sind die ruhigen Wohnstraßen, zahlreiche Grünbereiche wie z.B. die fußläufig erreichbare Grünanlage „Am Stühm Süd“ sowie eine sehr gute Nahversorgung.
Wer urbanes Leben mit einer angenehmen, entspannten Wohnatmosphäre verbinden möchte, findet hier ideale Voraussetzungen. Das Grundstück liegt angenehm zurückgezogen und dennoch zentral – perfekt für Familien, Paare und alle, die ein gut angebundenes Wohnumfeld schätzen.

Verkehrsanbindung
Vom Grundstück aus bestehen gute Anbindungen in alle Richtungen.
Mehrere Buslinien sind in fußläufiger Entfernung erreichbar und ermög-lichen die schnelle Verbindung zu den umliegenden Stadtteilen sowie zu den nächstgelegenen S- und U-Bahn-Stationen, wie z.B. S-Bahn-Station Wellingsbülttel (S1) oder U-Bahn-Station Farmsen (U1). Die in Realisierung befindliche neue U-Bahn-Linie U5 wird Bramfeld künftig direkt an das Hamburger Schnellbahnnetz anbinden und so die Erreichbarkeit der Innenstadt weiter verbessern.

Über die Bramfelder Chaussee, den Ring 3 sowie die City-Nord ergeben sich gute Anschlussmöglichkeiten für den Autoverkehr

Kitas und Schulen:
Für Familien bietet die Umgebung eine Vielzahl an Betreuungs- und Bildungseinrichtungen. In unmittelbarer Nähe befinden sich mehrere Kindertagesstätten unterschiedlicher Träger. Die Stadtteilschule Bramfeld sowie das Johannes-Brahms-Gymnasium sind gut erreichbar und decken die schulische Ausbildung bis zum Abitur ab. Weitere Grundschulen und weiterführende Schulen liegen in den angrenzenden Stadtteilen Steilshoop, Farmsen-Berne und Barmbek.
Damit sind kurze Wege für Kinder aller Altersgruppen gewährleistet.

Einkaufsmöglichkeiten:
Bramfeld ist für seine hervorragende Nahversorgung bekannt. Entlang der Bramfelder Chaussee finden sich zahlreiche Supermärkte, Drogerien, Bäcker, Ärztehäuser und Dienstleister. Das modernisierte Bramfelder Dorfzentrum bietet weitere Geschäfte, Gastronomie und Wochenmarktangebote. Größere Shoppingmöglichkeiten befinden sich in der Nahe gelegenen Marktplatz Galerie sowie im nur wenige Minuten entfernten Alstertal-Einkaufszentrum (AEZ).

Mitten in der Natur
Die Freizeitmöglichkeiten in Bramfeld und Umgebung sind vielfältig. Der Bramfelder SV bietet ein breites sportliches Angebot für alle Altersgruppen — von Fußball und Handball über Fitnessprogramme bis zu Rehasport. Für Naturliebhaber bieten der Bramfelder See, der Osterbekkanal und mehrere Parkanlagen zahlreiche Möglichkeiten zum Spazierengehen, Joggen oder Radfahren. Verschiedene Fitnessstudios, Sporthallen und Freizeitvereine runden das Angebot ab. Ob Sport, Natur oder Erholung – alles ist schnell erreichbar.


Weitere Informationen

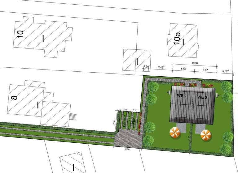
Das Grundstück Das Grundstück befindet sich in einer ruhigen Wohnstraße im beliebten Hamburger Stadtteil Bramfeld. Der Doppelhausbauplatz wird real aus dem Gesamtgrundstück abgeteilt. Durch die rückwärtige Lage (ca. 60 m) bietet sich ein besonders geschütztes Wohnambiente – fernab vom Straßenverkehr mit hoher Privatsphäre. Die geplante Bebauung fügt sich harmonisch in die bestehende Nachbarschaft ein. Die Terrassen und Gartenflächen sind optimal nach Süden ausgerichtet, sodass Sie den ganzen Tag von einer hervorragenden Sonneneinstrahlung profitieren. Der großzügige Garten bietet viel Raum für Erholung, Spiel und gemeinsames Familienleben im Grünen.

Das Haus - Besonderheiten Hauserstellung in Massivbauweise gemäß beigefügter Baubeschreibung

ca. 112 m² bis 145 m² Wohn-/Nutzfläche je nach Ausbauoption

4-5 Zimmer möglich

ca. 416 m² und 418 m² Grundstücksanteile (inkl. anteiliger Zufahrt)

KfW-Effizienzhaus 40 Ausführung
(*Förderprogramme 297, 298, 300 – ohne QNG)
Luftwasserwärmepumpe inkl. Außengerät (deutsches Markenfabrikat)
ca. 300 L Warmwasserspeicher für Brauchwasser
zentrale Lüftungsanlage mit ca. 90% Wärmerückgewinnung
Fußbodenheizung mit Einzelraumregelung im EG und OG
12 cm Untersohlendämmung

hochwertige Verblendfassade - Steinpreis 1.100 €/1000 Stück brutto – bietet eine große Auswahl an Verblendsteinen

45° Satteldach - Eindeckung mit Tondachpfannen, Dachunterschläge in Kunststoff weiß

1,20 m hoher Drempel (OK Fertigfußboden)

je DHH eine stehende Gaube mit bodentiefen Fenstern zum Garten und
1 stehende Gaube über beide Doppelhaushälften zum Eingang
gemauerte Terrassentrennwand aus Verblendstein

hochwertige Kunststoff-Fenster – außen anthrazit, innen weiß
3-fach Wärmeschutzverglasung Ug=0,5
abschließbare Fenstergriffe
einbruchhemmende Sicherheitsbeschläge (RC2) Pilzkopf

hochwertige Hauseingangstür – außen anthrazit – innen weiß
Vom EG zum OG wird eine Vollholztreppe mit Tritt- und Setzstufen, Seitenwange, inkl. Abstellraum unter der Treppe eingebaut, die Treppe erhält ein Treppengeländer mit Holzrundstäben, Holzart Buche parkettverleimt

2 Bäder mit hochwertiger Ausstattung, z.B.
1 Gäste Duschbad im EG mit einer Walk-In-Dusche, einem spülrandlosen WC sowie einem Waschbecken
1 Vollbad im OG mit einer 1,80 m großen Duo-Wanne, einer Walk-In-Dusche, einem Waschbecken sowie einem spülrandlosen WC

50 m² Fliesenfläche – Wert der Fliesen 40,-€ brutto/m²

10 % Vertragserfüllungsbürgschaft sowie 5 % Gewährleistungsbürgschaft über 5 Jahre - jeweils auf die Vertragssumme

5 Jahre Gewährleistung gemäß BGB plus Festpreisgarantie

individuelle Grundrissgestaltung – auf Wunsch ändern wir die Grundrisse – so wie Sie leben wollen

Sonstiges Zu dem genannten Preis müssten Sie die Kosten für Maler- und Bodenbelagsarbeiten, Einbauküche, Außenanlage wie Pflasterarbeiten sowie Gartengestaltung, Photovoltaikanlage, Notar- und Grunderwerbssteuer in Ihr Budget mit einkalkulieren.

Die Angebote für die Bauneben- und Hausanschlusskosten liegen bereits vor. Bei der Organisation der dieser Leistungen stehen wir Ihnen gern zur Seite. Die Aufträge werden von Ihnen als Bauherr/Grundstückseigentümer direkt mit den entsprechenden Behörden bzw. Versorgern abgerechnet.

Gerne erstellen wir Ihnen einen bankprüffähigen Budgetplan.

Die beigefügten Grundrisse sind Vorschläge und können individuell nach Ihren Wohnwünschen verändert werden. Sprechen Sie uns gerne an.

Die in diesem Exposé gemachten Angaben beruhen auf Aussagen von Grundstückseigentümern, Maklern, Bauhandwerkern, Architekten etc.
Hierfür kann keine Gewähr übernommen werden
Dies gilt ebenfalls für Eingabefehler.
Die gemachten Angaben können sich auch während der Vertriebszeit noch ändern.
Dieses Exposé ist kein Kaufangebot an einen Interessenten/Käufer und dient nur der Erstinformation. Der Interessent/ Käufer hat keinen Rechtsanspruch auf die hier gemachten Angaben.
KfW-Förderprogramme Die Ausführung des Bauvorhabens erfolgt als KfW-Effizienzhauses 40 und entspricht den technischen Anforderungen der Förderprogramme 297, 298 und 300 (ohne QNG).

Über die Konditionen und Ihre persönlichen Voraussetzungen informieren Sie sich gerne auf der Internetseite der KfW-Bank (klimafreundlicher Neubau).

Hinweis zur KfW-Förderung:
Das geplante Doppelhaus wird im energetischen Standard KfW 40 ausgeführt. Sollten Sie eine KfW-Förderung in Anspruch nehmen wollen, ist eine zusätzliche, kostenpflichtige Prüfung durch den Statiker erforderlich, einschließlich der Erstellung einer Lebenszyklusanalyse gemäß den Fördervorgaben. Diese Prüfung kann zu ergänzenden Leistungsanforderungen führen und gegebenenfalls Anpassungen am Gebäude nach sich ziehen, die mit zusätzlichen Kosten verbunden sein können.

Weitere Services

Lust auf eine Besichtigung?
Eine Frage zur Immobilie?
Nachricht hinzufügen
Mit der Nutzung der oben angegebenen Telefonnummer oder durch Klicken auf „Kontaktieren“ akzeptierst Du die Allgemeinen Nutzungsbedingungen, denen Du jederzeit widersprechen kannst. Weitere Informationen zum Datenschutz

Über den Anbieter

Bergstedter Chaussee 63, 22395 Hamburg
partner badge
Partnerschaft
Herr FeddersenDein Kontakt
Online-ID: 2nxjp5f
Referenznummer: DHH_WE1_oSt_2
PRO-HAUS GmbH Hamburg
PRO-HAUS GmbH Hamburg
Bewertung: 4,8 von 5 Sternen
Nachricht hinzufügen
Mit der Nutzung der oben angegebenen Telefonnummer oder durch Klicken auf „Kontaktieren“ akzeptierst Du die Allgemeinen Nutzungsbedingungen, denen Du jederzeit widersprechen kannst. Weitere Informationen zum Datenschutz
Wie zufrieden bist du mit dieser Seite (nicht mit der Immobilie selbst)?