

Wohnung zur Miete948 €2 Zimmer • 77,1 m²
948 €
2 Zimmer • 77,1 m²
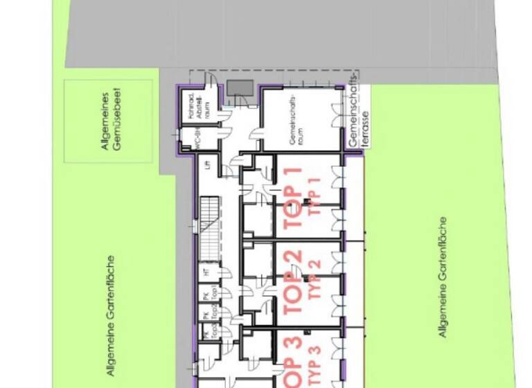
ST. OSWALD I/1, "Betreutes Wohnen" - geförderte Mietwohnung, EG TOP3, 1000/00010970/00001103
Merkmale
- Bezug: sofort
- Stellplatz
Grundrisse
Grundrisse
1 / 2
Realisiere Dein Projekt
Bausubstanz und Energie
Möchtest du Details zum Energieverbrauch?

- Baujahr2012
- Zustand der Immobilieneuwertig
Mietkosten
Gesamtmiete
947,73 €
Nettokaltmiete
nicht angegeben
Kaution
keine Angabe
Weitere Preisinformationen
Finanzierungsbeitrag: EUR 3,610.49
Lage

St. Oswald (3684)
Der Anbieter hat die genaue Adresse nicht freigegeben
Weitere Informationen
Weitere Services
Lust auf eine Besichtigung?
Eine Frage zur Immobilie?
Über den Anbieter
Siegfried Ludwig-Platz 1, 3100 ST. PÖLTEN

Herr RIEDMANN MarkusDein Kontakt
Online-ID: 232LMT52EWBH
Referenznummer: 1000/00010970/00001103


Alpenland Gemeinnützige Bau-, Wohn- und Siedlungsgenossenschaft reg.Gen. m.b.H
Wie zufrieden bist du mit dieser Seite (nicht mit der Immobilie selbst)?

