Version: 8.22.4Navigation ĂĽberspringen
J&P Immobilienmakler GmbH
22 €
15 Zimmer  â€˘  690,8 m² BĂĽrofläche

Bürofläche zur Miete
22 Euro pro Quadratmeter
15 Zimmer  â€˘  690,8 m² BĂĽrofläche

Repräsentanz mit Geschichte: Ihr neuer Unternehmenssitz Nähe Schwarzenbergplatz

Flächen- und Kostenübersicht
GeschoĂź/Top: 5.OG
Nutzfläche: ca. 690,81 m²
Miete netto/m²: € 22,00
BK netto/m²: € 3,27
HZ netto/m²: € 2,35

Allgemeine Objektbeschreibung
In einer der prestigeträchtigsten Lagen der Wiener Innenstadt, eingebettet zwischen dem imperialen Glanz des Schwarzenbergplatzes und der grünen Oase des Stadtparks, befindet sich dieses architektonische Juwel. Dieser generalsanierte Stilaltbau vereint die Beständigkeit der Gründerzeit mit dem Anspruch moderner Business-Exzellenz. Wer hier residiert, zeigt Präsenz diskret, elegant und am Puls der Stadt.

In diesem generalsanierten Bürogebäude gelangt eine außergewöhnliche Fläche von ca. 691 m² im 5. Stock zur Vermietung. Sie genießen hier die Ruhe und das besondere Licht hoch über dem Straßenniveau. Ein moderner Lift bringt Sie und Ihre Gäste komfortabel direkt in Ihr Refugium.
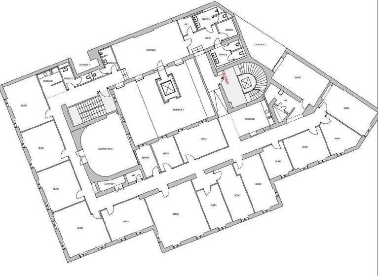
14 direkt und getrennt begehbare Büroräume, ein Empfangsbereich und ein repräsentatives Besprechungszimmer bieten den idealen Rahmen für Kanzleien, Consulter oder Headquarter.
Zwei moderne Teeküchen, getrennte Sanitärbereiche und zwei Abstellräume sorgen für einen reibungslosen und komfortablen Büroalltag.

Dank Fernwärme und einer modernen Kühlung über Fancoils bewahren Sie auch an heißen Sommertagen einen kühlen Kopf.

Ausstattung:
Der verlegte Doppelboden ermöglicht eine unsichtbare und flexible IT-Verkabelung (CAT 6 Verkabelung), die exakt auf Ihre Arbeitsplatzkonfiguration abgestimmt werden kann. Zwei dedizierte Serverräume bieten die nötige Sicherheit für Ihre Daten.

Befristung: 10 Jahre
KĂĽndigungsverzicht: 3 Jahre
Kaution: 6 BMM
Provision: 3 BMM
Bezug: ab sofort

Energieausweis
HWB: 92,9 kWh/m².a

Lage
Erstklassige City-Lage, unmittelbare Nähe zum Stadtpark
Diese Lage vereint imperiales Flair mit der Dynamik eines modernen Wirtschaftsstandorts.

Hochkarätige Nachbarschaft: Umgeben von Botschaften, dem Haus der Industrie und renommierten Anwaltskanzleien, positionieren Sie Ihr Unternehmen in einem Umfeld von höchster Bonität und Prestige.

Infrastruktur & Kulinarik: Ob ein Business-Lunch im Hotel Imperial, ein Espresso im Stadtpark oder ein exzellentes Dinner am Schubertring erstklassige Gastronomie und erstklassige Hotels (The Ritz-Carlton, Almanac) liegen direkt vor Ihrer TĂĽr.

Erholungsfaktor: Der Stadtpark bietet als "grĂĽne Lunge" Wiens den perfekten Raum fĂĽr produktive Pausen oder informelle Meetings im Freien.

Perfekte Erreichbarkeit: Durch die unmittelbare Nähe zum Verkehrsknotenpunkt Karlsplatz und der Station Stadtpark ist die Anbindung exzellent.

Ă–ffentliche Verkehrsanbindung
U-Bahn: U4 Stadtpark, Karlsplatz, U1 Karlsplatz, U2
StraĂźenbahn: 2, 71,D
Bus: 2A, 4A


Ansprechpartner:
Frau Kathrin Fercher
Tel.: +43 (1) 596 60 20 0

Mehr Objekte finden Sie unter:
www.jpi.at

Wir haben was fĂĽr Sie


Merkmale

  • Bezug: sofort
  • 5. Geschoss
  • Personenaufzug

Grundrisse

Grundrisse
1 / 1

Realisiere Dein Projekt

Bausubstanz und Energie

Heizwärmebedarf (HWB)

C

Gesamtenergieeffizienz (fGEE)

C
  • Baujahr1863
  • Zustand der ImmobilieAltbau (bis 1945)
  • HeizungsartZentralheizung
  • EnergieträgerFernwärme
MediumRectangleTop

Mietkosten

Gesamtmiete
22.896,20 €
Nettokaltmiete
22 €/m²
15.197,82 €
Betriebskosten
2.710,74 €
Heizkosten
1.948,08 €
Umsatzsteuer
3.816,03 €
Provision fĂĽr Mieter
3 BMM
Kaution
137.377,20 6 MM
Weitere Preisinformationen
Nettokaltmiete: 15.197,82 EUR

Lage

address-icon
Schubertring 14, Wien (1010)

Weitere Informationen

Stichworte Anzahl der separaten WCs: 5

Weitere Services

Lust auf eine Besichtigung?
Eine Frage zur Immobilie?
Nachricht hinzufĂĽgen
Mit der Nutzung der oben angegebenen Telefonnummer oder durch Klicken auf „Kontaktieren“ akzeptierst Du die Allgemeinen Nutzungsbedingungen, denen Du jederzeit widersprechen kannst. Weitere Informationen zum Datenschutz

Ăśber den Anbieter

Lehargasse 7, 1060 WIEN
partner badge
Partnerschaft
Frau Kathrin Fercher
Frau Kathrin FercherDein Kontakt
Online-ID: 2mdpa5z
Referenznummer: 101/06759
J&P Immobilienmakler GmbH
title
J&P Immobilienmakler GmbH
Nachricht hinzufĂĽgen
Mit der Nutzung der oben angegebenen Telefonnummer oder durch Klicken auf „Kontaktieren“ akzeptierst Du die Allgemeinen Nutzungsbedingungen, denen Du jederzeit widersprechen kannst. Weitere Informationen zum Datenschutz
MediumRectangleTop
MediumRectangleBottom
MediumRectangleTop
Wie zufrieden bist du mit dieser Seite (nicht mit der Immobilie selbst)?