Version: 8.25.1Navigation überspringen
McMakler GmbH
299.000 €
5 Zimmer  •  144,4 m²  •  1.010,1 m² Grundstück

Einfamilienhaus zum Kauf
299000 €
2.073 €/m²
5 Zimmer  •  144,4 m²  •  1.010,1 m² Grundstück

Optimal für Familien - mit Einliegerwohnung

Objektnr: 1067774

Eine großzügige Raumstruktur ermöglicht flexible Nutzungsmöglichkeiten und bietet so ideale Voraussetzungen für Mehrgenerationenwohnen oder die Aufteilung in zwei Wohneinheiten mit Vermietungspotenzial.
Das 1971 erbaute Haus befindet sich in einem gepflegten Zustand, mit Modernisierungen im Jahre 2009 (Neue Heizung 2008, Fenster und Rolladen inkl. Kellerfenster erneuert 2008, Dacherneuerung inkl. Regenrinnen 2009, Garagentor neu 2019).

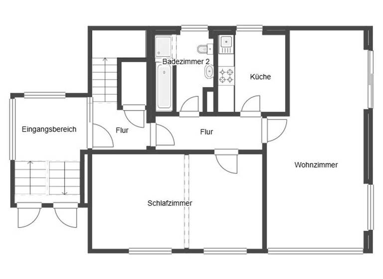
Die ca. 144,24 m² Wohnfläche sind mit 5 Zimmern auf 2 Etagen ideal aufgeteilt.
Der Außenbereich umfasst ein ca. 1.010 m² großes Grundstück und bietet Raum zur Erholung und Platz zum Spielen im großzügigem Garten.
Das haus ist voll unterkellert und bietet weitere Nutzfläche.
Zuletzt runden eine Garage und 2 Freistellplätze für Ihre Fahrzeuge die Immobilie ab. In einem Nebengebäude ist eine Werkstatt eingerichtet.

Merkmale

  • Bezug: ab sofort
  • 1.010,1 m² Grundstück
  • Einbauküche
  • Keller
  • Stellplatz
  • Gäste-WC
  • Garten
  • Terrasse

Grundrisse

Grundrisse
1 / 2

Virtueller Rundgang

3D tour

Realisiere Dein Projekt

Bausubstanz und Energie

Energieausweis

H
  • Baujahr1971
  • Zustand der ImmobilieGepflegt
  • HeizungsartZentralheizung
  • EnergieträgerGas
MediumRectangleTop

Preisdetails

Kaufpreis
299000 €
2.072,93 €/m²
Provision für Käufer
Die Provision i.H.v. 3,57 % inkl. MwSt. ist mit Kaufvertragsbeurkundung fällig, sofern der Verkaufspreis über 83.000,00 € liegt.

Liegt der Verkaufspreis dagegen bei/unter 83. Weitere Informationen siehe Provisionshinweis.
Geschätzte Gesamtkosten
320.020 €1
Kaufpreis
299.000 €
Notarkosten (1,5%)
4.485 €
Grunderwerbsteuer (5%)
14.950 €
Provision für Käufer (0,03%)
90 €
Grundbucheintrag (0,5%)
1.495 €
1Der angezeigte Wert ist eine automatisch berechnete Schätzung von immowelt.
2Bei den Angaben handelt es sich um ortsübliche Werte. Individuelle Kosten können abweichen.

Lage

address-icon
Dörverden (27313)
Der Anbieter hat die genaue Adresse nicht freigegeben
Lage: Attraktive Lage in Dörverden, fußläufig zum Bahnhof
Bildung und Betreuung: Optimal für Familien: Schule und Kindergarten in max. 3 km Entfernung
Nahversorgung: Anlaufstellen wie Supermarkt, Apotheke, Postfiliale und Bankfiliale in einem Radius von max. 6 km
Anbindung: Nächste Bushaltestelle, nächster Bahnhof und nächste Autobahn komfortabel erreichbar

Weitere Informationen

Provisionshinweis Die Provision i.H.v. 3,57 % inkl. MwSt. ist mit Kaufvertragsbeurkundung fällig, sofern der Verkaufspreis über 83.000,00 € liegt.

Liegt der Verkaufspreis dagegen bei/unter 83.000,00 €, ist die fest vereinbarte Mindestprovision i.H.v. mind. 5.950,00 € inkl. MwSt. mit Kaufvertragsbeurkundung fällig. Die Mindestprovision fällt insg. nur einmal an, wodurch Verkäufer und Käufer die Mindestprovision dann jeweils mit 2.975,00 € inkl. MwSt. tragen. Sonstiges Vereinbaren Sie noch heute einen Besichtigungstermin!
_____________________________________________________

Alle Angaben sind ohne Gewähr und basieren ausschließlich auf Informationen, die uns von unserem Auftraggeber zur Verfügung gestellt wurden. Wir übernehmen keine Gewähr für die Vollständigkeit, Richtigkeit und Aktualität der Angaben. Stichworte Gesamtfläche: 144,24 m², Anzahl der Schlafzimmer: 2, Anzahl der Badezimmer: 2, Anzahl Terrassen: 1, 2 Etagen, modernisiert: 2008

Weitere Services

Lust auf eine Besichtigung?
Eine Frage zur Immobilie?
Nachricht hinzufügen
Mit der Nutzung der oben angegebenen Telefonnummer oder durch Klicken auf „Kontaktieren“ akzeptierst Du die Allgemeinen Nutzungsbedingungen, denen Du jederzeit widersprechen kannst. Weitere Informationen zum Datenschutz

Über den Anbieter

Am Postbahnhof 17, 10243 Berlin
Ihr McMakler TeamDein Kontakt
Online-ID: 269PQVVWYW6F
Referenznummer: 2b5b79e9dc
McMakler GmbH
McMakler GmbH
Nachricht hinzufügen
Mit der Nutzung der oben angegebenen Telefonnummer oder durch Klicken auf „Kontaktieren“ akzeptierst Du die Allgemeinen Nutzungsbedingungen, denen Du jederzeit widersprechen kannst. Weitere Informationen zum Datenschutz
MediumRectangleTop
MediumRectangleBottom
MediumRectangleTop
Wie zufrieden bist du mit dieser Seite (nicht mit der Immobilie selbst)?