Version: 8.22.6Navigation überspringen
565.634 €
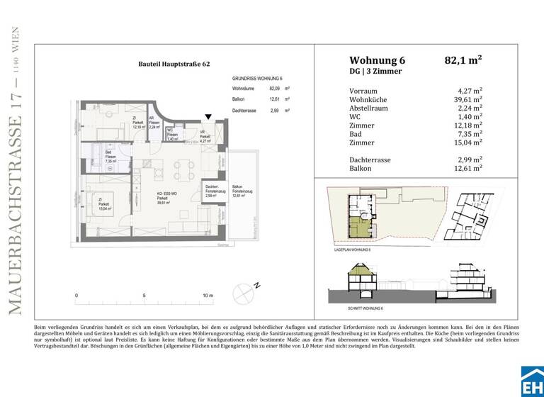
3 Zimmer  •  82,1 m²  •  3. Geschoss
Immowelt logo

Wohnung zum Kauf - Erstbezug
565634 €
6.890 €/m²
3 Zimmer  •  82,1 m²  •  3. Geschoss

Zukunftssicher investieren: Ihr Vorsorgeinvestment in Mauerbach

Zuhause in Hawei - Ihr exklusives Investment zwischen Natur und Stadtleben!

In Hadersdorf-Weidlingau, dem familienfreundlichen 14. Wiener Gemeindebezirk, entsteht in der Mauerbachstraße, 1140 Wien, ein einzigartiges Wohnbauprojekt mit 13 hochwertig ausgestatteten Eigentums- und Vorsorgewohnungen zwischen 81 m² und 137 m² Wohnfläche sowie einem wunderschönen Salettl, das als Geschäftsfläche genutzt werden kann. Die ideale Lage, gleich um die Ecke vom Auhofcenter und der S-Bahn-Station, sowie die Nähe zum Grünen, bietet den Bewohnern eine perfekte Infrastruktur mit allen Geschäften, Schulen und Arztpraxen, die das Herz begehrt. Die S-Bahn und die Buslinien sind fußläufig schnell erreichbar. Das Projekt überzeugt durch effiziente und praktische Grundrisse und bietet eine Auswahl an wunderschönen 3- bis 4-Zimmer-Wohnungen. Der Großteil der Wohneinheiten verfügt über großzügige Freiflächen in Form von Balkonen, Terrassen oder Eigengärten.

Zuhause in Hawei - Clever investieren, nachhaltig profitieren, entspannt vermieten!

Willkommen bei _Zuhause in Hawei_, einem außergewöhnlichen Wohnbauprojekt, das urbanen Komfort und naturnahe Ruhe vereint. Ideal gelegen, bietet dieses Projekt die perfekte Balance zwischen städtischer Anbindung und entspannter Atmosphäre im Grünen - ein Investment, das nicht nur Rendite, sondern auch Lebensqualität verspricht.

 

Das Projekt

Die hochwertigen Baumaterialien und die moderne Gebäudetechnik sorgen nicht nur für eine ansprechende Ästhetik, sondern auch für langfristige Energieeffizienz und niedrige Betriebskosten. 

* 14 freifinanzierte Vorsorgewohnungen
* 14 Tiefgaragenplätze
* 3 - 4 Zimmerwohnungen
* Wohnungsgrößen zwischen 81 und 137 m²
* Freiflächen wie Eigengarten, Terrasse, Loggia oder Balkon
* Kinderwagen- und Fahrradabstellraum 

 

Die Ausstattung

* Hochwertige Parkettböden
* Feinsteinzeug in den Nassbereichen (Format 30x60 sowie 60x60)
* Fußbodenheizung mit nachhaltiger Luft-Wärmepumpe
* Beschattung je bauphysikalischer Gegebenheiten
* Photovoltaikanlage
* Klimageräte in den Dachgeschoßwohnungen (DG 1 und DG 2)

 

Kaufpreise der Vorsorgewohnungen

von EUR 520.003,00,- bis EUR 1.061.619,- netto zzgl. 20% USt.

Kaufpreis des Vorsorge-Stellplatzes

EUR 25.000,00 netto zzgl. 20% USt.

Zu erwartender Mietertrag

von ca. EUR 14,50 bis EUR 16,75 netto/m²

Provisionsfrei für den Käufer!
Fertigstellung: 1. Quartal 2026

 

Bei diesem Angebot handelt es sich um eine Vorsorgewohnung, die zu Vermietungszwecken erworben wird. Der angegebene Kaufpreis versteht sich daher zzgl. 20% USt. Diese Daten sind vorbehaltlich möglicher Änderungen.

Einen detaillierten Überblick finden Sie auf unserer EHL-Projekthomepage [https://www.ehl.at/wohnen/wohnprojekte/mauerbachstrasse-17-1140-wien]. 

Wir weisen darauf hin, dass zwischen dem Vermittler und dem zu vermittelnden Dritten ein familiäres oder wirtschaftliches Naheverhältnis besteht.

Der Vermittler ist als Doppelmakler tätig.

Infrastruktur / Entfernungen

Gesundheit
Arzt <2.500m
Apotheke <500m
Klinik <4.500m
Krankenhaus <3.250m

Kinder & Schulen
Schule <250m
Kindergarten <500m
Universität <1.500m
Höhere Schule <7.000m

Nahversorgung
Supermarkt <250m
Bäckerei <500m
Einkaufszentrum <750m

Sonstige
Geldautomat <750m
Bank <750m
Post <750m
Polizei <500m

Verkehr
Bus <250m
Straßenbahn <2.500m
U-Bahn <2.750m
Bahnhof <250m
Autobahnanschluss <750m

Angaben Entfernung Luftlinie / Quelle: OpenStreetMap

Merkmale

  • Bezug: 1. Quartal 2026
  • 3. Geschoss
  • offene Küche
  • Personenaufzug
  • Balkon
  • Terrasse
  • Badezimmer: Badewanne, Bad mit Dusche
  • voll klimatisiert

Grundrisse

Grundrisse
1 / 1

Realisiere Dein Projekt

Bausubstanz und Energie

Heizwärmebedarf (HWB)

B

Gesamtenergieeffizienz (fGEE)

A
  • Baujahr2026
  • Zustand der ImmobilieNeubau, Massivhaus, Erstbezug
  • HeizungsartFußbodenheizung
  • EnergieträgerLuft-/Wasser-Wärmepumpe
Immowelt logo

Preisdetails

Kaufpreis
565634 €
6.889,57 €/m²
Provision für Käufer
Provisionsfrei für den Käufer

Lage

address-icon
HauptstraßeWien (1140)

Weitere Informationen

Stichworte Nord-Balkon/Terrasse, Rolladen, Anzahl der Badezimmer: 1, Anzahl der separaten WCs: 1, Anzahl Balkone: 1, Anzahl Terrassen: 1, Balkon-Terrassen-Fläche: 15,60 m², Bundesland: Wien, 5 Etagen, Wohnungsnr.: 6

Weitere Services

Lust auf eine Besichtigung?
Eine Frage zur Immobilie?
Nachricht hinzufügen
Mit der Nutzung der oben angegebenen Telefonnummer oder durch Klicken auf „Kontaktieren“ akzeptierst Du die Allgemeinen Nutzungsbedingungen, denen Du jederzeit widersprechen kannst. Weitere Informationen zum Datenschutz

Über den Anbieter

Prinz-Eugen-Straße 8-10, 1040 WIEN
partner badge
10 Jahre Partnerschaft
Frau Andrea PÖCHHACKER; MScDein Kontakt

Weitere Unterlagen

Online-ID: 2l6mr5f
Referenznummer: OBGC202410150957206189dd103d92f
EHL Immobilien GmbH
EHL Immobilien GmbH
Bewertung: 4,5 von 5 Sternen
Nachricht hinzufügen
Mit der Nutzung der oben angegebenen Telefonnummer oder durch Klicken auf „Kontaktieren“ akzeptierst Du die Allgemeinen Nutzungsbedingungen, denen Du jederzeit widersprechen kannst. Weitere Informationen zum Datenschutz
Wie zufrieden bist du mit dieser Seite (nicht mit der Immobilie selbst)?