
Fuhrmann Immobilien GmbH
Frau Heja Fuhrmann
004 ···
Nr. anzeigenPreise & Kosten
Provision für Käufer
3,57%
Lage
Die Immobilie befindet sich in einem lebendigen Stadtteil im Westen Saarbrückens, der durch eine gute Infrastruktur und eine gemischte Nutzungsstruktur überzeugt. Das direkte Umfeld ist geprägt von gepflegter Wohnbebauung, kleineren Einzelhandelsgeschäften sowie gastronomischen und handwerklichen Betrieben.
Diese...
Gastronomie/Hotel
Kategorie
Restaurant
Baujahr
1962
Energie & Heizung
Warum sehe ich diese Anzeige? – Du siehst diese Anzeige basierend auf Ihrer Navigation auf unserer Website und den Suchkriterien, die du verwendet hast.
Wärme
Energieausweistyp
Verbrauchsausweis
Gebäudetyp
Nicht-Wohngebäude
Baujahr laut Energieausweis
1962
Wesentliche Energieträger
OEL
Gültigkeit
bis 18.01.2028
Endenergieverbrauch (Wärme)
180,00 kWh/(m²·a)
Details
Objektbeschreibung
Diese frisch modernisierte Gastronomieeinheit präsentiert sich in neuem Glanz und bietet zahlreiche Möglichkeiten für Gastronomen, Veranstalter oder kreative Konzepte, die auf Authentizität, Nähe zum Gast und ein lebendiges Umfeld setzen. Der Innenraum wurde umfassend aufbereitet und verfügt über eine gepflegte, funktionale...
Ausstattung
. Vollmöblierte Gaststube
. Küche - hinter der Theke
. Lagerflächen
. Kühlhaus / Kühlgeräte
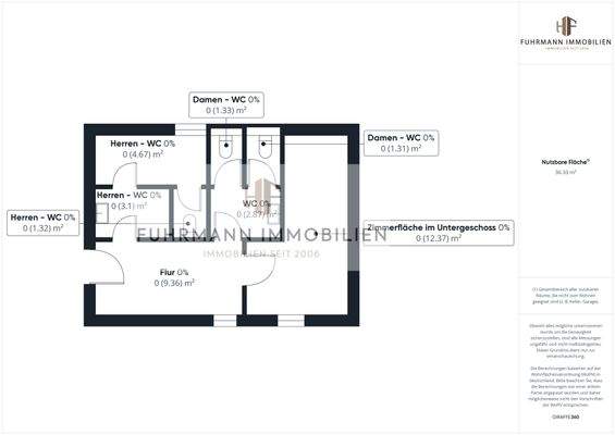
. Damen- und Herren - WC
. Ölzentralheizung
. Inventar inbegriffen
Zahlen.Daten.Fakten:
. Hausgeld mtl. 410,00 €, Zuführung Rücklage 51,13 € davon sind 363,52 € Umlagefähig
und 46,65 € nicht...
Weitere Informationen
Sonstiges
WICHTIG ZU WISSEN:
Bitte haben Sie Verständnis, dass wir nur Anfragen mit vollständig angegebener Adresse und Telefonnummer bearbeiten können.
Sämtliche Fotos, Texte und grafischen Darstellungen sind Eigentum der Fuhrmann Immobilien GmbH und dürfen nicht von Dritten verwendet oder weitergegeben...
Anbieter der Immobilie
Online-ID: 2jam95n
Referenznummer: 2025-186
Finde Angebote wie dieses
Hier geht es zu unserem Impressum, den Allgemeinen Geschäftsbedingungen, den Hinweisen zum Datenschutz und nutzungsbasierter Online-Werbung.