Version: 8.24.0Navigation überspringen
Wohnungsbörse Erzgebirge GmbH
453.000 €
21 Zimmer  •  1.709 m² Grundstück

Haus zum Kauf
453000 €
21 Zimmer  •  1.709 m² Grundstück

Gepflegtes Gewerbeobjekt in Neukirchen bei Chemnitz: 624 m² Fläche, Büroräume, Lager & Parkplatz

Zum Verkauf steht ein vielseitig nutzbares Gewerbeobjekt in zentraler Lage von 09221 Neukirchen/Erzgebirge. Die Immobilie wurde ursprünglich als Supermarkt errichtet und im Zuge einer umfassenden Umnutzung zu einem modernen, funktional strukturierten Gewerbestandort mit großzügigen Büro-, Werkstatt- und Lagerflächen entwickelt.

Die Gesamtfläche von ca. 624 m² bietet eine durchdachte Kombination aus repräsentativen Büroeinheiten, Besprechungsräumen, offenen Arbeitsbereichen sowie umfangreichen Lager- und Funktionsflächen. Ein separates Nebengebäude erweitert die Nutzungsmöglichkeiten zusätzlich.

Das Objekt befindet sich auf einem ca. 1.709 m² großen, eingefriedeten Grundstück mit großzügigem Parkplatzangebot direkt vor dem Gebäude. Der ansprechend gestaltete Eingangs- und Empfangsbereich vermittelt Kunden und Geschäftspartnern einen professionellen ersten Eindruck.

Im teilunterkellerten Bereich stehen ergänzende Funktionsflächen zur Verfügung, darunter Umkleiden, WC-Anlagen, Duschen, weitere Büro- bzw. Lagerbereiche sowie Technikräume. Diese Struktur ermöglicht flexible Nutzungskonzepte - ideal für Handwerksunternehmen, Dienstleister, Praxis- oder Schulungseinrichtungen sowie kombinierte Büro- und Lagerstandorte.

Die Immobilie präsentiert sich in einem modernen und gepflegten Gesamtzustand. Klare Raumaufteilungen, gute Funktionalität und vielfältige Nutzungsmöglichkeiten machen dieses Objekt zu einer attraktiven Investitions- oder Eigennutzungschance im wirtschaftlich stabilen Umfeld des Erzgebirges.

Merkmale

  • Bezug: nach Absprache
  • 1.709 m² Grundstück
  • Keller
  • 13 Stellplätze: 13 Außen-Stellplätze
  • Gäste-WC
Eckdaten
-Gewerbefläche: ca. 624 m²
-Grundstück: ca. 1.709 m²
-Teilunterkellert
-Separates Nebengebäude
-Eingefriedetes Grundstück
-Großzügiger Parkplatzbereich

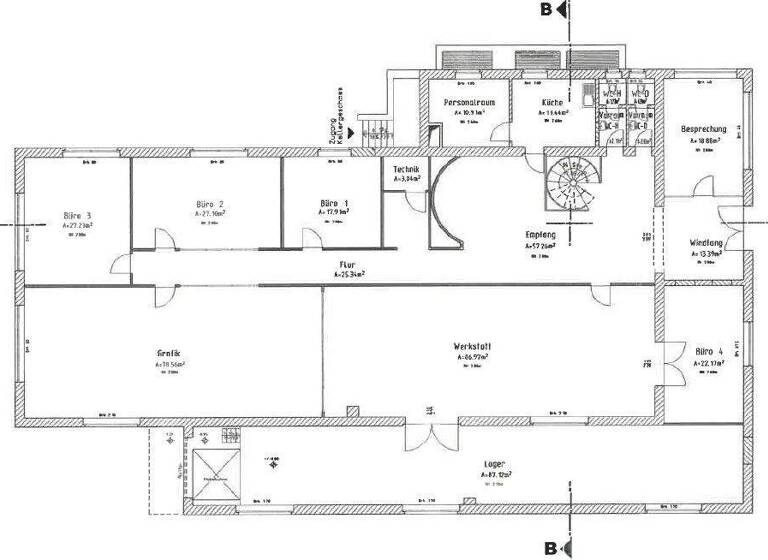
Erdgeschoss - ca. 451 m² Nutzfläche
-Repräsentativer Eingangs- und Empfangsbereich (57,26 m²)
-4 Büroräume (gesamt ca. 94,83 m²)
-Besprechungsraum (18,86 m²)
-Großzügige Werkstatt-/Produktionsfläche (165,53 m²)
-Lagerbereich (87,12 m²)
-Personalbereich inkl. Einbauküche und Sozialräume
-WC-Anlagen

Kellergeschoss - ca. 126 m² Nutzfläche
-Zwei großzügige Lagerbereiche bzw. Büroflächen (108,32 m²)
-Umkleideraum
-Waschraum mit Duschen, -WC
-Technik-, Heizungs- und Hausanschlussräume

Objektzustand & Nutzung
-Ehemaliger Supermarkt - funktional zu vielseitigem Gewerbeobjekt umgebaut
-Gepflegter, moderner Gesamtzustand
-Klare Raumstruktur mit guter Funktionalität
-Flexible Nutzungsmöglichkeiten für verschiedene Branchen
-Kombination aus Büro-, Werkstatt-, Lager- und Sozialflächen
-Gute Anbindung und Erreichbarkeit
-Vorhandene Ladestation für Elektrofahrzeuge
-Großzügige Dachfläche mit Potenzial zur Installation einer Photovoltaikanlage (vorbehaltl. stat. Prüfung)
-Ergänzende Zuheizung über Erdwärme (unterstützend, nicht als primäres Heizsystem)

Geeignet für
-Handwerksunternehmen
-Dienstleistungsbetriebe
-Büro- und Verwaltungsstandorte
-Therapie-, Praxis- oder Schulungseinrichtungen
-Produktions- und Lagerbetriebe
-Kapitalanleger mit Eigennutzungsoption

Grundrisse

Grundrisse
1 / 2

Realisiere Dein Projekt

Bausubstanz und Energie

Energieausweis

Endenergieverbrauch (Wärme)

Endenergieverbrauch (Strom)

  • Zustand der ImmobilieGepflegt
MediumRectangleTop

Preisdetails

Kaufpreis
453000 €
Provision für Käufer
3,57?% des Kaufpreises inkl. der gesetzlichen Mehrwertsteuer
Weitere Preisinformationen
13 Stellplätze
Geschätzte Gesamtkosten
503.147 €1
Kaufpreis
453.000 €
Notarkosten (1,5%)
6.795 €
Grunderwerbsteuer (5,5%)
24.915 €
Provision für Käufer (3,57%)
16.172 €
Grundbucheintrag (0,5%)
2.265 €
1Der angezeigte Wert ist eine automatisch berechnete Schätzung von immowelt.
2Bei den Angaben handelt es sich um ortsübliche Werte. Individuelle Kosten können abweichen.

Lage

address-icon
NeukirchenNeukirchen/Erzgebirge (09221)
Der Anbieter hat die genaue Adresse nicht freigegeben
Die Immobilie befindet sich in Neukirchen/Erzgebirge in verkehrsgünstiger Lage nahe Chemnitz. Die Region zeichnet sich durch eine stabile Wirtschaftsstruktur sowie eine gute Erreichbarkeit über die Bundesstraße B169 und die nahegelegene Anbindung an die A72 aus.

Chemnitz ist in wenigen Fahrminuten erreichbar und bietet als Oberzentrum umfangreiche wirtschaftliche Infrastruktur. Der Standort eignet sich daher ideal für Unternehmen, die eine gut angebundene Gewerbefläche mit ausreichend Parkmöglichkeiten im Einzugsgebiet einer Großstadt suchen.

Neukirchen selbst bietet eine solide Nahversorgung, gewachsene Strukturen sowie ein attraktives Umfeld für Mitarbeiter und Kunden.

Weitere Informationen

Sonstiges Provision:
3,57?% des Kaufpreises inkl. der gesetzlichen Mehrwertsteuer, fällig und verdient mit Abschluss des notariellen Kaufvertrags.

Hinweis zur Vermarktung:
Die Vermarktung dieser Immobilie erfolgt im Rahmen eines exklusiven Alleinauftrags. Besichtigungen sind daher ausschließlich über uns möglich. Ausführliche Objektunterlagen und weiterführende Informationen stellen wir Ihnen auf Anfrage gern zur Verfügung.

Finanzierungsservice:
Gerne begleiten wir Sie bei der Finanzierung Ihrer Wunschimmobilie. Dabei greifen wir auf unsere langjährige Erfahrung sowie ein bewährtes Netzwerk qualifizierter Finanzierungspartner zurück - für eine individuell abgestimmte Lösung, die zu Ihnen passt.

Ihr Immobilienpartner:
Sie suchen eine passende Immobilie oder möchten verkaufen? Kontaktieren Sie uns gern per E-Mail (https://www.wohnungsboerse-erzgebirge.de/kontakt) oder unter 03733?/?4289964.

Zusatzinfo|Haftungsausschluss:
Alle Angaben in diesem Exposé beruhen auf Informationen des Eigentümers bzw. Dritter. Die Wohnungsbörse Erzgebirge GmbH übernimmt für die Richtigkeit, Vollständigkeit und Aktualität dieser Angaben keine Gewähr. Wohnflächenangaben wurden nicht nachgemessen und können vom tatsächlichen Maß abweichen. Maßgeblich sind ausschließlich die Vereinbarungen im notariellen Kaufvertrag. Änderungen, Irrtümer und Zwischenverkauf bleiben vorbehalten. Hinweis: Einzelne Fotos können digital (KI-gestützt) nachbearbeitet sein, zur Optimierung von Schärfe/Belichtung sowie zur Neutralisierung/Entfernung persönlicher Gegenstände (z. B. von Mietern) oder zur Unschärfe/Neutralisierung von Nachbaransichten (z. B. Nachbargebäuden). Stichworte Nutzfläche: 35,58 m², Gesamtfläche: 659,20 m²

Weitere Services

Lust auf eine Besichtigung?
Eine Frage zur Immobilie?
Nachricht hinzufügen
Mit der Nutzung der oben angegebenen Telefonnummer oder durch Klicken auf „Kontaktieren“ akzeptierst Du die Allgemeinen Nutzungsbedingungen, denen Du jederzeit widersprechen kannst. Weitere Informationen zum Datenschutz

Über den Anbieter

Gewerbering 23, 09456 Annaberg-Buchholz
partner badge
6 Jahre Partnerschaft
Herr Mario BleyDein Kontakt
Online-ID: 2nazh5n
Referenznummer: 9756
Wohnungsbörse Erzgebirge GmbH
Wohnungsbörse Erzgebirge GmbH
Bewertung: 4,6 von 5 Sternen
Nachricht hinzufügen
Mit der Nutzung der oben angegebenen Telefonnummer oder durch Klicken auf „Kontaktieren“ akzeptierst Du die Allgemeinen Nutzungsbedingungen, denen Du jederzeit widersprechen kannst. Weitere Informationen zum Datenschutz
MediumRectangleTop
MediumRectangleBottom
MediumRectangleTop
Wie zufrieden bist du mit dieser Seite (nicht mit der Immobilie selbst)?