

Develo Immobilien GmbH
Herrn Paul Wagner
Kontaktiere den Anbieter schriftlich, es ist keine Telefonnummer hinterlegt.
Preise & Kosten
Provision für Käufer
3,57%
Berechnungsgrundlage der Provisionshöhe ist der notariell beurkundete Kaufpreis des Kaufgegenstandes. Die Vergütung ist verdient und fällig mit Abschluss des notariellen Kaufvertrages. Weitere Informationen siehe Provisionshinweis.
Lage
Wenn Geschichte Stil bekommt, entsteht Wohnkultur.
Dieses charmante Haus mit nur drei Wohnungen ist ein Stück Bad Homburger Baugeschichte - liebevoll erhalten, stilvoll modernisiert und geprägt von klassischer Architektur. Hier wohnt man mit Charakter, in einem Umfeld, das Ruhe, Stil und Lebensqualität perfekt...
Die Wohnung
Bezug
Sofort
Wohnanlage
Energie & Heizung
Warum sehe ich diese Anzeige? – Du siehst diese Anzeige basierend auf Ihrer Navigation auf unserer Website und den Suchkriterien, die du verwendet hast.
Energieausweistyp
Verbrauchsausweis
Gebäudetyp
Wohngebäude
Gültigkeit
16.10.2023 bis 01.06.2035
Effizienzklasse
F
Endenergieverbrauch
195,50 kWh/(m²·a)
Details
Objektbeschreibung
Ein Zuhause mit Geschichte, Charakter und Stil - Wohnen in einem Bad Homburger Gründerzeithaus.
Diese außergewöhnliche 4-Zimmer-Wohnung im Erdgeschoss eines eindrucksvollen Hauses aus dem Jahr 1904 vereint den Charme vergangener Zeiten mit der Qualität moderner Wohnkultur. Hier begegnen sich historische Substanz, feine...
Ausstattung
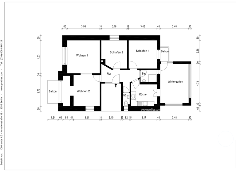
Großzügige Wohnfläche von ca. 93,00m² mit optimalem Grundriss
Sonniger Balkon mit schönem Ausblick ins Grüne
Großer Flur mit idealer Raumverteilung
2009: Erneuerung von Heizung und Warmwasserspeicher
2010: Anbau eines Wintergartens mit ca. 16,6m²
2014: Sanierung der...
Preisinformation
1 Stellplatz, Kaufpreis: 9.500,00 EUR
Weitere Informationen
Provisionshinweis
3,57%
Berechnungsgrundlage der Provisionshöhe ist der notariell beurkundete Kaufpreis des Kaufgegenstandes. Die Vergütung ist verdient und fällig mit Abschluss des notariellen Kaufvertrages. Wir versichern, dass wir einen provisionspflichtigen Maklervertrag mit dem Verkäufer/Eigentümer des...
Anbieter der Immobilie
Develo Immobilien GmbH
Schöne Aussicht 8A, 61348 Bad Homburg vor der Höhe

Herrn Paul Wagner
Dein Ansprechpartner
Kontaktiere den Anbieter schriftlich, es ist keine Telefonnummer hinterlegt.
Online-ID: 2msls5z
Referenznummer: 3063528
Finde Angebote wie dieses
Hier geht es zu unserem Impressum, den Allgemeinen Geschäftsbedingungen, den Hinweisen zum Datenschutz und nutzungsbasierter Online-Werbung.