Version: 8.24.0Navigation überspringen
IMMOBERLIN Inhaber Carsten D. Topel
449.000 €
5 Zimmer  •  130 m²  •  1.748 m² Grundstück

Einfamilienhaus zum Kauf
449000 €
3.454 €/m²
5 Zimmer  •  130 m²  •  1.748 m² Grundstück

IMMOBERLIN.DE - Fabelhaftes Haus mit Ausbaupotential, Nebengebäuden & Südgarten auf teilbarem Grundstück am Waldrand

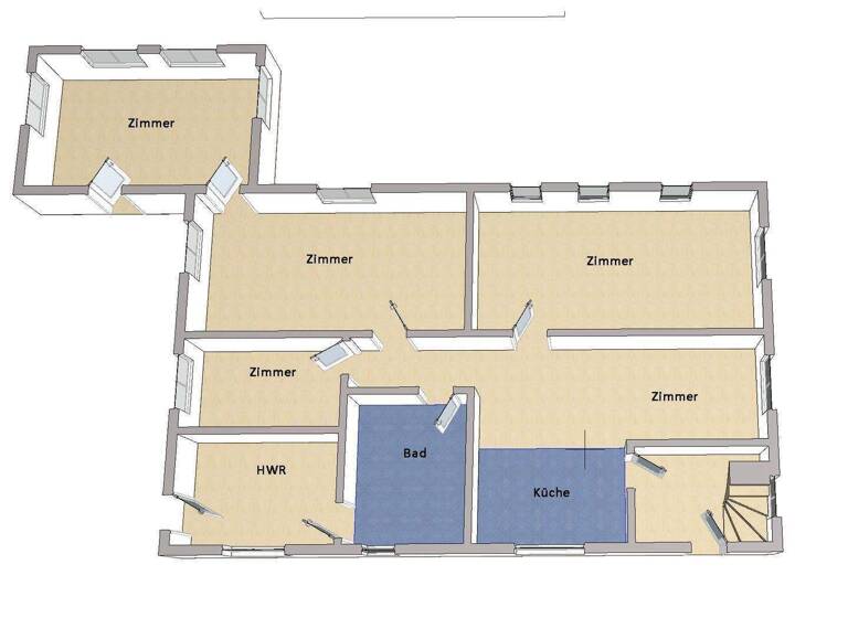
Dieses fabelhafte Einfamilienhaus bietet die reizvolle Kombination aus einer sehr soliden Bausubstanz sowie flexiblen Ausbau- und Gestaltungsmöglichkeiten. Im Erdgeschoss der massiv errichteten und im Jahr 1994 erweiterten Architektur befinden sich vier sehr angenehme Zimmer. Das Obergeschoss, welches bereits gedämmt und mit großen Fenstern sowie einer Heizung versehen ist, hält auf ca. 70 m² eine ansprechend dimensionierte Ausbaureserve bereit. Somit sind zukünftig insgesamt bis zu sieben Zimmer auf einer Gesamtwohnfläche von ca. 200 m² denkbar. Nach dem Eingangsbereich empfängt ein attraktiver Wohn-, Koch und Essbereich, der durch ein lichtdurchflutetes Zimmer ergänzt wird. Die offene und moderne Einbauküche ist mit hochwertigen Geräteinbauten und einer Kochinsel ausgestattet — ein idealer Ort für gesellige Stunden. Über den anschließenden Flur geht es u.a. zu zwei weiteren behaglichen Zimmern. Eines davon führt noch in das vierte helle Zimmer, das als Anbau zusätzlich über einen eigenen Außenzugang verfügt. Das taghelle und gepflegte Badezimmer ist mit einer Dusche und einer Wanne ausgestattet. Von hier ist auch der Hauswirtschaftsraum mit separatem Außenzugang zugänglich, der das Raumangebot im Erdgeschoss praktisch komplementiert. Die moderne Gasheizung wurde im Jahr 2023 installiert und sorgt für eine effiziente Wärmeversorgung. Ein sehr hübscher Sonnengarten in bester Südausrichtung eröffnet vielfältige Gestaltungs- und Spielmöglichkeiten. Hier lässt sich das Familienleben u.a. auf einer wunderbaren Sonnenterrasse sowie in einem erfrischenden Pool perfekt genießen. Dieses Grundstück ist nicht zuletzt wegen der möglichen Teilbarkeit eine optimale Oase für die familiäre Entfaltung, z.B. im Rahmen eines Mehrgenerationenwohnkonzepts. Das elektrisch bedienbare Einfahrtstor bietet zusätzlichen Komfort. Außerdem stehen zwei Garagen und ein weiteres Nebengebäude zur Verfügung.
Die harmonische Lage direkt am Waldrand macht dieses Domizil zu einem idealen Rückzugsort für eine große Familie. Auf der Suche nach einer wertbeständigen Basis für ein persönliches Wohnkonzept zeigt sich ein sehr interessantes Immobilienangebot, das durch seine adrette Substanz mit Potenzial zur Erweiterung auf einem großzügigen und naturverbundenen Grundstück punkten kann!

Merkmale

  • 1.748 m² Grundstück

Grundrisse

Grundrisse
1 / 2

Realisiere Dein Projekt

Bausubstanz und Energie

Der Anbieter hat keine Informationen zum Energieverbrauch bereit gestellt.
  • Baujahr1935

Preisdetails

Kaufpreis
449000 €
3.453,85 €/m²
Provision für Käufer
3,57 % inklusive der gesetzlichen Mehrwertsteuer
Geschätzte Gesamtkosten
503.194 €1
Kaufpreis
449.000 €
Notarkosten (1,5%)
6.735 €
Grunderwerbsteuer (6,5%)
29.185 €
Provision für Käufer (3,57%)
16.029 €
Grundbucheintrag (0,5%)
2.245 €
1Der angezeigte Wert ist eine automatisch berechnete Schätzung von immowelt.
2Bei den Angaben handelt es sich um ortsübliche Werte. Individuelle Kosten können abweichen.

Lage

address-icon
KlosterfeldeWandlitz (16348)
Der Anbieter hat die genaue Adresse nicht freigegeben

Weitere Informationen

Sonstiges Falls Sie IMMOBERLINER*IN werden wollen, bewerben Sie sich bitte jetzt:
https://www.immoberlin.de/immoberliner-werden/

Zahlreiche weitere Immobilienangebote finden Sie bei uns:
https://www.immoberlin.de/home

Folgen Sie uns auch auf Instagram:
https://www.instagram.com/immoberlin.de/

Weitere Services

Lust auf eine Besichtigung?
Eine Frage zur Immobilie?
Nachricht hinzufügen
Mit der Nutzung der oben angegebenen Telefonnummer oder durch Klicken auf „Kontaktieren“ akzeptierst Du die Allgemeinen Nutzungsbedingungen, denen Du jederzeit widersprechen kannst. Weitere Informationen zum Datenschutz

Über den Anbieter

Wildpfad 7, 14193 Berlin
partner badge
Partnerschaft
Das Team von IMMOBERLIN.DE
Das Team von IMMOBERLIN.DEDein Kontakt
Online-ID: 2n47u5k
Referenznummer: 260120
IMMOBERLIN Inhaber Carsten D. Topel
title
IMMOBERLIN Inhaber Carsten D. Topel
Nachricht hinzufügen
Mit der Nutzung der oben angegebenen Telefonnummer oder durch Klicken auf „Kontaktieren“ akzeptierst Du die Allgemeinen Nutzungsbedingungen, denen Du jederzeit widersprechen kannst. Weitere Informationen zum Datenschutz
Wie zufrieden bist du mit dieser Seite (nicht mit der Immobilie selbst)?