Version: 8.24.1Navigation ĂĽberspringen
1.500.000 €
5 Zimmer
Immowelt logo

Laden zum Kauf • provisionsfrei
1500000 €
5 Zimmer

Exclusive design shop near Plaza Catalunya in downtown Barcelona

A few meters from Las Ramblas and Plaza de Catalunya, in the most vibrant heart of Barcelona, is located this exclusive organic brutalist style venue, conceived as a unique architectural piece and distinguished with the FAD Architecture Award 2021.

Its privileged location, combined with a contemporary aesthetic of pure lines and expressive materials, makes it a space with its own identity, ideal for those seeking a prominent presence in one of the most emblematic areas of the city.

Completely rebuilt in 2021-2022, it offers a minimalist style in white tones that brings modernity, luminosity and a space completely adaptable to professional, creative or corporate activities.

First floor:
Two large skylights flood the space with natural light, creating an ideal environment for events, exhibitions or creative projects. The removable raised floor allows easy access and reorganization of the installations, guaranteeing total freedom of distribution with no cables in sight.

Upper floor:
Space with contemporary aesthetics that maintains the same design line, perfect for offices, coworking or art galleries.

Maximum flexibility:
Two independent accesses facilitate the division into two autonomous spaces or their joint use by means of an internal spiral staircase.

A unique opportunity for those looking for an emblematic, functional space with an outstanding presence in the center of Barcelona.

Merkmale

  • 8 m Schaufensterfront
  • voll klimatisiert

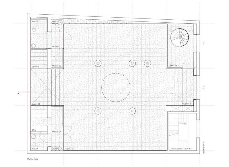
Grundrisse

Grundrisse
1 / 3

Realisiere Dein Projekt

Bausubstanz und Energie

Der Anbieter hat keine Informationen zum Energieverbrauch bereit gestellt.
  • Baujahr1900
  • Zustand der ImmobilieGepflegt
Immowelt logo

Preisdetails

Kaufpreis
1500000 €
Provision für Käufer
provisionsfrei

Lage

address-icon
Barcelona (08001)
Der Anbieter hat die genaue Adresse nicht freigegeben
1A-Lage

Weitere Informationen

Stichworte Wohnfläche: 332,95 m², Nutzfläche: 332,95 m², Grundstücksfläche: 222,00 m², Anzahl der Badezimmer: 4, Bundesland: Katalonien, 2 Etagen, modernisiert: 2022

Weitere Services

Lust auf eine Besichtigung?
Eine Frage zur Immobilie?
Nachricht hinzufĂĽgen
Mit der Nutzung der oben angegebenen Telefonnummer oder durch Klicken auf „Kontaktieren“ akzeptierst Du die Allgemeinen Nutzungsbedingungen, denen Du jederzeit widersprechen kannst. Weitere Informationen zum Datenschutz

Ăśber den Anbieter

Konstanzerstrasse 37, 8274 TÄGERWILEN
partner badge
Partnerschaft
KENSINGTON MaresmeDein Kontakt
Online-ID: 2meq45z
Referenznummer: KBMN467
KENSINGTON Finest Properties International AG
KENSINGTON Finest Properties International AG
Bewertung: 4,8 von 5 Sternen
Nachricht hinzufĂĽgen
Mit der Nutzung der oben angegebenen Telefonnummer oder durch Klicken auf „Kontaktieren“ akzeptierst Du die Allgemeinen Nutzungsbedingungen, denen Du jederzeit widersprechen kannst. Weitere Informationen zum Datenschutz
Wie zufrieden bist du mit dieser Seite (nicht mit der Immobilie selbst)?