Version: 8.24.1Navigation überspringen
42.000 €
Immowelt logo

Land-/Forstwirtschaft zum Kauf
42000 €

Baugrundstück 566m2 zum Kauf - Istria, Barban

Baugrundstück mit einer Fläche von 566 m2, gelegen in Barban, bietet eine ausgezeichnete Gelegenheit für Investitionen oder die Entwicklung eines eigenen Projekts. Das Grundstück ist als Baugrundstück klassifiziert, was die Realisierung verschiedener Bauvorhaben gemäß dem gültigen Bebauungsplan ermöglicht.

Diese Immobilie zeichnet sich durch ihre attraktive Lage in Barban aus, was ihr einen zusätzlichen Wert verleiht. Barban ist bekannt für seine ruhige Umgebung und angenehme Atmosphäre, wodurch dieses Grundstück besonders für diejenigen attraktiv ist, die einen Standort für den Bau eines Wohnhauses oder eine Investition in einem Gebiet mit Entwicklungspotenzial suchen.

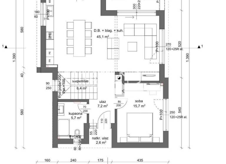
Dank seiner Bauwidmung und Lage ist das Grundstück geeignet für den Bau eines Einfamilienhauses oder anderer Gebäude gemäß den örtlichen Vorschriften. Der Zugang zur Grundinfrastruktur hängt von den lokalen Gegebenheiten ab. Ein Entwurfsprojekt für ein mehrstöckiges Gebäude mit Keller, Erdgeschoss und erstem Stock mit einer Gesamt-Nettofläche von 297 m2 sowie einem 29 m2 großen Pool wurde erstellt. Der Wasseranschluss ist bezahlt.

Die Eigentumsverhältnisse und der Status des Grundstücks sind durch die Bauklassifizierung definiert, und für jede geplante Bebauung müssen die geltenden Vorschriften eingehalten und die entsprechenden Genehmigungen eingeholt werden.

Wir laden Sie ein, dieses Grundstück als ausgezeichnete Option zur Verwirklichung Ihrer Pläne in Betracht zu ziehen, mit dem Vorteil der Lage in Barban und der Möglichkeit der Entwicklung nach Ihren eigenen Bedürfnissen.

Grundrisse

Grundrisse
1 / 3

Realisiere Dein Projekt

Bausubstanz und Energie

Der Anbieter hat keine Informationen zu Energieverbrauch oder Zustand der Immobilie bereit gestellt.
Immowelt logo

Preisdetails

Kaufpreis
42000 €
Provision für Käufer
Bitte beachte, das Angebot kann bei Vertragsabschluss die Zahlung einer Provision beinhalten. Weitere Informationen erhältst Du vom Anbieter.

Lage

address-icon
Barban
Der Anbieter hat die genaue Adresse nicht freigegeben

Weitere Informationen

Stichworte Wohnfläche: 566,00 m², 1 Etagen

Weitere Services

Lust auf eine Besichtigung?
Eine Frage zur Immobilie?
Nachricht hinzufügen
Mit der Nutzung der oben angegebenen Telefonnummer oder durch Klicken auf „Kontaktieren“ akzeptierst Du die Allgemeinen Nutzungsbedingungen, denen Du jederzeit widersprechen kannst. Weitere Informationen zum Datenschutz

Über den Anbieter

Crozilla.com
Crozilla.comMaklerbüro
Nova cesta 60, 10000 ZAGREB
Impensa d.o.o.Dein Kontakt
Online-ID: 2ne5w5k
Referenznummer: 19323265_1
Crozilla.com
Crozilla.com
Nachricht hinzufügen
Mit der Nutzung der oben angegebenen Telefonnummer oder durch Klicken auf „Kontaktieren“ akzeptierst Du die Allgemeinen Nutzungsbedingungen, denen Du jederzeit widersprechen kannst. Weitere Informationen zum Datenschutz
Wie zufrieden bist du mit dieser Seite (nicht mit der Immobilie selbst)?