Version: 8.24.0Navigation ĂĽberspringen
RICHERT & OERTEL IMMOBILIEN GMBH
8 €
88 m² Bürofläche

Büro zur Miete • provisionsfrei
8 €
/m²
88 m² Bürofläche

Attraktive Bürofläche mit Top-Anbindung an der Großenhainer Straße

Das im Jahr 1996 errichtete, viergeschossige Wohn- und Geschäftshaus befindet sich in zentraler Lage an der Großenhainer Straße in Dresden. Dank der Nähe zu Haltestellen des öffentlichen Nahverkehrs sowie zur Autobahn ist der Standort sowohl mit dem Auto als auch mit Bus und Bahn optimal erreichbar.

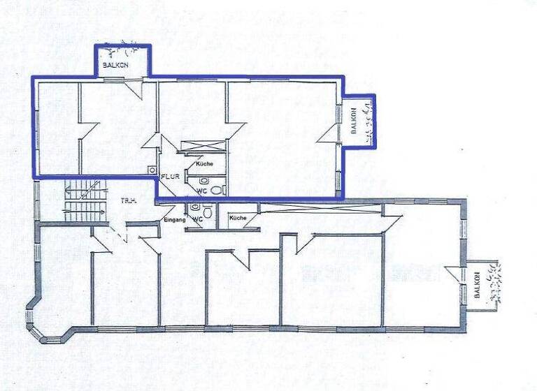
Die angebotene Bürofläche im 1. Obergeschoss überzeugt durch ihre moderne Raumaufteilung und ein helles, freundliches Ambiente. Sie umfasst vier Büroräume, eine WC-Anlage, einen Bereich für die Teeküche sowie zwei kleine Balkone, die den Arbeitsalltag angenehm ergänzen.

Zusätzlich besteht die Möglichkeit, die benachbarte Büroeinheit mit einer Fläche von ca. 138 m² mit anzumieten. Dadurch kann bei Bedarf eine größere, zusammenhängende Fläche realisiert werden - ideal für wachsende Unternehmen oder Teams mit Platzbedarf.

Merkmale

  • frei ab 01.04.2026
  • EinbaukĂĽche
  • Bodenbelag: Parkett
- helle und freundliche Büroräume im 1. Obergeschoss
- WC-Anlage
- Bereich fĂĽr TeekĂĽche
- zwei kleine Balkone mit Blick auf die Umgebung
- Fenster mit Isolierverglasung
- Laminatbodenbelag
- Beleuchtung und Elektroinstallation vorhanden

Grundrisse

Grundrisse
1 / 1

Realisiere Dein Projekt

Bausubstanz und Energie

Energieausweis

Endenergieverbrauch (Wärme)

Endenergieverbrauch (Strom)

  • Baujahr1996
  • Zustand der ImmobilieGepflegt
  • EnergieträgerGas
MediumRectangleTop

Mietkosten

Monatliche Miete
8 €/m²
Nebenkosten
1,70 €
Provision fĂĽr Mieter
provisionsfrei; honorarfrei inkl. MwSt.
Das Objekt wird honorarfrei angeboten.
Kaution
keine Angabe

Lage

address-icon
Leipziger Vorstadt, Dresden (01097)
Der Anbieter hat die genaue Adresse nicht freigegeben
Das Wohn- und Geschäftshaus befindet sich an der stark frequentierten Großenhainer Straße in Dresden-Trachenberge, welche eine der wichtigsten Verbindungen der Innenstadt mit dem Bahnhof Dresden-Neustadt, der Autobahnanschlussstelle Dresden-Wilder Mann und dem Flughafen darstellt. In nur wenigen Gehminuten ist der Neustädter Bahnhof mit dem Wagen erreichbar. Die Anbindung an den öffentlichen Personennahverkehr befindet sich in unmittelbarer Nähe.

Weitere Informationen

Sonstiges Der Mietpreis ist als Basismietpreis zu verstehen und richtet sich nach Ausstattung sowie Vertragslaufzeit. Die Angaben verstehen sich zzgl. Nebenkosten und zzgl. gesetzl. Mehrwertsteuer.

Das Objekt wird honorarfrei angeboten.

Der aktuelle Energieausweis liegt vor. Alle in diesem Angebot enthaltenen Angaben, Darstellungen und Preise stammen ausschließlich vom Eigentümer oder eines Dritten. Eine Haftung unseres Unternehmens hierfür ist ausgeschlossen. Irrtum und die zwischenzeitliche Vermietung der Gewerbeeinheit bleiben vorbehalten. Dieses Exposé ist eine Vorabinformation, als Rechtsgrundlage gilt allein der abgeschlossene Mietvertrag.

RICHERT & OERTEL IMMOBILIEN GMBH
TiergartenstraĂźe 46, 01219 Dresden
Tel.: +49 (351) 43 31 20, Fax.: +49 (351) 43 31 212, E-Mail: info@r-o.de
AG Dresden, HRB 31382, Geschäftsführer Michael Oertel, Raiko Ebert Stichworte Gesamtfläche: 88,00 m², 4 Etagen

Weitere Services

Lust auf eine Besichtigung?
Eine Frage zur Immobilie?
Nachricht hinzufĂĽgen
Mit der Nutzung der oben angegebenen Telefonnummer oder durch Klicken auf „Kontaktieren“ akzeptierst Du die Allgemeinen Nutzungsbedingungen, denen Du jederzeit widersprechen kannst. Weitere Informationen zum Datenschutz

Ăśber den Anbieter

TiergartenstraĂźe 46, 01219 Dresden
Frau Jenny VölkelDein Kontakt
Online-ID: 2ndcz59
Referenznummer: R_O 23943
RICHERT & OERTEL IMMOBILIEN GMBH
RICHERT & OERTEL IMMOBILIEN GMBH
Bewertung: 3,3 von 5 Sternen
Nachricht hinzufĂĽgen
Mit der Nutzung der oben angegebenen Telefonnummer oder durch Klicken auf „Kontaktieren“ akzeptierst Du die Allgemeinen Nutzungsbedingungen, denen Du jederzeit widersprechen kannst. Weitere Informationen zum Datenschutz
MediumRectangleTop
MediumRectangleBottom
MediumRectangleTop
Wie zufrieden bist du mit dieser Seite (nicht mit der Immobilie selbst)?