Bauliche Merkmale: * gebaut nach KFW 55 - 3 fache Verglasung (in diesem Zusammenhang besteht die Möglichkeit eines zinsgünstigen KfW Darlehen) * KS Mauerwerk mit 180 mm WDVS Außendämmung * barrierefreie Duschen * Türsturz 2,10 m
Energietechnische Merkmale: * Heizung mittels Luft Wärmepumpe * Strom zum Teil aus PV Anlage mit Speicher 10 kW - Mehrbedarf aus dem öffentlichen Netz - Wallbox * Trinkwasser öffentliches Netz * Schmutzwasser Druckentwässerung der Firma Jung (kein Baukostenzuschuss) * Herstellung der Außenanlagen mit Versickerung des Oberflächenwasser nach Vorgabe der unteren Wasserbehörde
Merkmale
Bezug: nach Absprache
vermietet
600 m² Grundstück
Carport
Balkon
Garten
Terrasse
Badezimmer: Badewanne, Bad mit Dusche
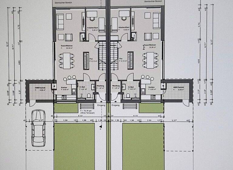
Grundrisse
Grundrisse
1 / 2
Realisiere Dein Projekt
Bausubstanz und Energie
Energieausweis
A+
Baujahr2024
Zustand der Immobilieneuwertig
HeizungsartFußbodenheizung
EnergieträgerLuft-/Wasser-Wärmepumpe
Preisdetails
Kaufpreis
445000 €445.000 €
3.178,57 €/m²
Provision für Käufer
provisionsfrei; keine Provision, courtagefrei
Weitere Preisinformationen
1 Carportplatz
Geschätzte Gesamtkosten
478.375 €1
Kaufpreis
445.000 €
Kaufnebenkosten
33.375 €
2
Notarkosten (1,5%)
6.675 €
Grunderwerbsteuer (5,5%)
24.475 €
Grundbucheintrag (0,5%)
2.225 €
1Der angezeigte Wert ist eine automatisch berechnete Schätzung von immowelt.
2Bei den Angaben handelt es sich um ortsübliche Werte. Individuelle Kosten können abweichen.
Lage
Sohl, Bad Elster (08645)
Der Anbieter hat die genaue Adresse nicht freigegeben
Bad Elster ist ein Sächsische Staatsbades.
In Bad Elster können Sie das Kur- und Kulturzentrum mit Albertbad, Soletherme, Badeplatz sowie das König-Albert-Theater und das Königliche Kurhaus erreichen.
Die Dinge des täglichen Bedarfs sind vor Ort oder im benachbarten Adorf verfügbar. Für größere Einkäufe bieten sich die nahen Städte Plauen, Hof und Zwickau an.
Bad Elster hat ebenfalls eine Kinderkrippe, einen Kindergarten und eine Grundschule.
Zahlreiche Fachkliniken und Arztpraxen liefern eine sehr gute gesundheitliche Vorsorge und medizinische Betreuung. Das Kur- und Badezentrum und die toll angelegten Kuranlagen können auch von den Einwohnern genutzt werden.
Bad Elster erreicht man mit dem Auto über die B 92 und mit dem Zug, der im Ortsteil Mühlhausen hält. Infrastruktur (im Umkreis von 5 km): Apotheke, Lebensmittel-Discount, Allgemeinmediziner, Kindergarten, Grundschule, Öffentliche Verkehrsmittel
Makleranfragen nicht erwünscht. Nach § 7 UWG sind unaufgeforderte Kontaktaufnahmen durch Makler ohne ausdrückliche Einwilligung des Empfängers verboten!
ohne-makler (OM) ist weder Anbieter noch Vermittler der Immobilie. OM betreibt eine Plattform für Immobilieneigentümer, die unter anderem die gleichzeitige Veröffentlichung einzelner Inserate auf mehreren Immobilienportalen ermöglicht. Die Inhalte dieser Inserate werden ausschließlich von Dritten verantwortet. Für die Richtigkeit, Vollständigkeit oder Rechtmäßigkeit der Angaben übernimmt OM keine Haftung. Hinweise auf mögliche Rechtsverstöße können jederzeit gemeldet werden und werden nach Prüfung umgehend bearbeitet.
Stichworte
Carport vorhanden, Anzahl der Badezimmer: 2, Anzahl der separaten WCs: 1, Anzahl Balkone: 1, Anzahl Terrassen: 1, Bundesland: Sachsen, 2 Etagen