Version: 8.25.1Navigation überspringen
12 €
188 m² Bürofläche
Immowelt logo

Bürofläche zur Miete • provisionsfrei
12 €
/m²
188 m² Bürofläche

Flexible Büroflächen mit guter Ausstattung

Das Gebäude überzeugt durch seine moderne Architektur und ein gepflegtes Erscheinungsbild. Die Flächen bieten flexible Nutzungsmöglichkeiten und lassen sich individuell gestalten. Großzügige Fensterfronten schaffen helle, freundliche Arbeitsbereiche und ein angenehmes Raumklima. Die Immobilie eignet sich ideal für Büro- und Dienstleistungsnutzungen und bietet ein professionelles Umfeld mit repräsentativem Charakter.

Merkmale

  • Bezug: kurzfristig
  • 2. Geschoss
  • Personenaufzug
  • Bodenbelag: Teppich
-Teppichboden
-abgehängte Decken
-integrierte Beleuchtung
-Teeküche
-außenliegender, elektrischer Sonnenschutz
-EDV-Verkabelung
-Personenaufzug
-PKW-Stellplätze auf dem Grundstück

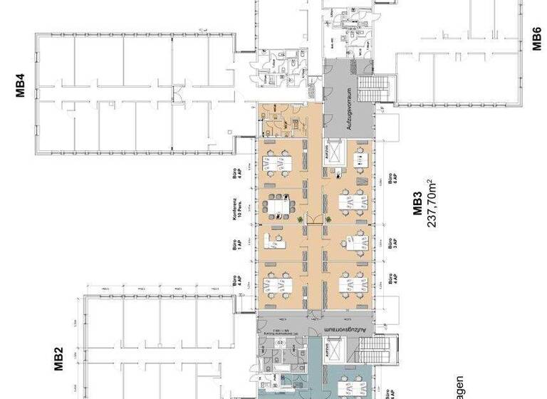
Grundrisse

Grundrisse
1 / 2

Realisiere Dein Projekt

Bausubstanz und Energie

Möchtest du Details zum Energieverbrauch?info_energy_calculation-icon
Immowelt logo

Mietkosten

Monatliche Miete
12 €/m²
Provision für Mieter
provisionsfrei
Kaution
keine Angabe

Lage

address-icon
ZentrumRatingen (40878)
Der Anbieter hat die genaue Adresse nicht freigegeben
Die Liegenschaft befindet sich in zentraler Lage von Ratingen, nur wenige Minuten von der Innenstadt entfernt. Dank der Nähe zu den Autobahnen A44 und A52 besteht eine hervorragende Anbindung an Düsseldorf, den Flughafen sowie die umliegenden Städte. Auch der öffentliche Nahverkehr ist optimal erreichbar - die S-Bahn-Station Ratingen Ost sowie verschiedene Bushaltestellen liegen in fußläufiger Entfernung. In der direkten Umgebung befinden sich gastronomische Angebote, Hotels sowie vielfältige Einkaufsmöglichkeiten.

Weitere Informationen

Sonstiges Über eine Vielzahl von Bahn- sowie Buslinien ist der Gewerbepark sehr gut an das Umland angebunden. Die nahegelegene S-Bahnhaltestelle Ratingen-Ost ermöglichst eine schnelle Anbindung an den Düsseldorfer Hauptbahnhof sowie das Ruhrgebiet (Essen). Stichworte Gesamtfläche: 146,00 m², Bundesland: Nordrhein-Westfalen

Weitere Services

Lust auf eine Besichtigung?
Eine Frage zur Immobilie?
Mit einer persönlichen Nachricht hast du bessere Chancen auf eine Antwort.
Mit der Nutzung der oben angegebenen Telefonnummer oder durch Klicken auf „Kontaktieren“ akzeptierst Du die Allgemeinen Nutzungsbedingungen, denen Du jederzeit widersprechen kannst. Weitere Informationen zum Datenschutz

Über den Anbieter

Hohe Straße 8-10, 40213 Düsseldorf
Online-ID: 26NMPRS35AX5
Referenznummer: 1878_008
corealis Commercial Real Estate GmbH
corealis Commercial Real Estate GmbH
Bewertung: 3,8 von 5 Sternen
Mit einer persönlichen Nachricht hast du bessere Chancen auf eine Antwort.
Mit der Nutzung der oben angegebenen Telefonnummer oder durch Klicken auf „Kontaktieren“ akzeptierst Du die Allgemeinen Nutzungsbedingungen, denen Du jederzeit widersprechen kannst. Weitere Informationen zum Datenschutz
Wie zufrieden bist du mit dieser Seite (nicht mit der Immobilie selbst)?