

Siller Real Estate Holding GmbH
Herr Michael Siller
+43 ···
Nr. anzeigenPreise & Kosten
Provision für Käufer
3% des Kaufpreises zzgl. 20% USt.
Lage
Draßnitzdorf liegt eingebettet im oberen Drautal, einer der landschaftlich schönsten Regionen Kärntens. Die Umgebung ist geprägt von weitläufigen Wiesen, der Drau, sanften Hügeln und der beeindruckenden Bergwelt der Gailtaler und Lienzer Dolomiten. Hier erlebt man ein Wohnumfeld, das Ruhe, Natur und Lebensqualität auf...
Das Haus
Baujahr
2023
Energie & Heizung
Warum sehe ich diese Anzeige? – Du siehst diese Anzeige basierend auf Ihrer Navigation auf unserer Website und den Suchkriterien, die du verwendet hast.
Heizwärmebedarf (HWB)
54,00 kWh/(m²·a)
Gesamtenergieeffizienz (fGEE)
0,70
Weitere Energiedaten
Haustyp
Massivhaus
Details
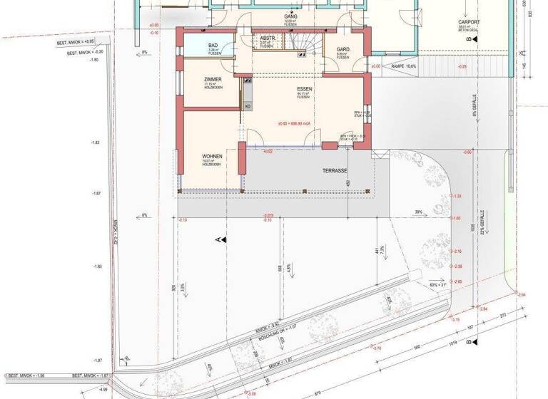
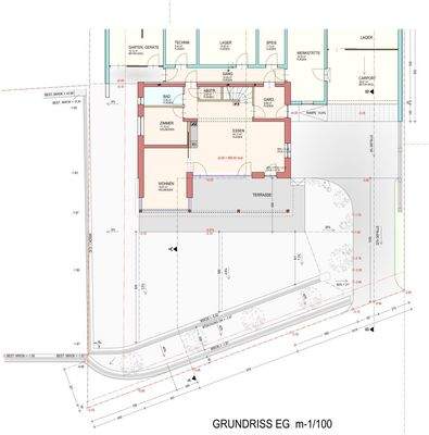
Objektbeschreibung
VIEL PLATZ, FREIE PLANUNG UND BLICK AUF DIE BERGWELT IM HERZEN DES DRAUTALS
In sonniger, erhöhter Lage von Draßnitzdorf bei Dellach im Drautal eröffnet sich mit diesem Rohbau eine seltene Gelegenheit für alle, die ihr Zuhause individuell gestalten möchten - mit Raum, Aussicht und langfristiger...
Preisinformation
1 Garagenstellplatz
Weitere Informationen
Stichworte
Carport vorhanden, Stellplatz vorhanden, Lagerfläche: 50,00 m², Nutzfläche: 280,00 m², Anzahl Terrassen: 2, Bundesland: Kärnten
Anbieter der Immobilie
Siller Real Estate Holding GmbH
Kaiser-Franz-Josef-Straße 49, 9872 Millstatt

Online-ID: 2m7du5r
Referenznummer: OBGC202512180945381328031acf35c
Finde Angebote wie dieses
Günstige Immobilienfinanzierung einfach online berechnen
Persönliches Angebot berechnenWarum sehe ich diese Werbung? – Du siehst diese Werbung basierend auf Deiner Navigation auf unserer Website und der von Dir verwendeten Suchkriterien.
Diese Werbung wird bezahlt von durchblicker
Werbung melden
Hier geht es zu unserem Impressum, den Allgemeinen Geschäftsbedingungen, den Hinweisen zum Datenschutz und nutzungsbasierter Online-Werbung.