Version: 8.24.0Navigation überspringen
3.350 €
283,2 m² Bürofläche
Immowelt logo

Büro zur Miete • provisionsfrei
3.350 €
283,2 m² Bürofläche

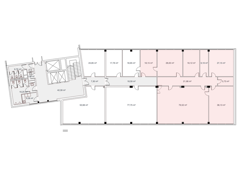
Provisionsfrei - Büroflächen mit ca. 283,24 m² im 3.OG

Zur Vermietung steht eine renovierte Büro-/Praxisfläche aus dem Baujahr 1973. Die Fläche umfasst großzügige 283,24 m² und ist ab dem 01.04.2026 verfügbar. Das Objekt ist mit einer Zentralheizung ausgestattet, die mit Fernwärme betrieben wird. Komfort bietet eine vorhandene Teeküche sowie eine moderne Datenverkabelung. Sicherheit und Funktionalität gewährleisten ein elektronisches Zugangssystem sowie Überwachungskameras. Ein Lastenaufzug, ein Personenaufzug und Außen-Stellplätze stehen zur Verfügung. Die Miete für die Stellplätze beträgt 55 EUR.

Merkmale

  • frei ab 01.04.2026
  • Teeküche
  • Personenaufzug, Lastenaufzug
  • Überwachungskamera

Grundrisse

Grundrisse
1 / 1

Realisiere Dein Projekt

Bausubstanz und Energie

Der Anbieter hat keine Informationen zum Energieverbrauch bereit gestellt.
  • Baujahr1973
  • Zustand der Immobilierenoviert / saniert
  • HeizungsartZentralheizung
  • EnergieträgerFernwärme
Immowelt logo

Mietkosten

Nettomiete
3.350 €
Nebenkosten
770 €
Provision für Mieter
provisionsfrei
Kaution
3 netto Monatsmieten

Lage

address-icon
Thalk.Obersendl.-Forsten-Fürstenr.-SollnMünchen (81379)
Der Anbieter hat die genaue Adresse nicht freigegeben
Die Büro- und Praxisimmobilie liegt in München, der Hauptstadt Bayerns und eines der wirtschaftlichen und kulturellen Zentren Deutschlands. München zeichnet sich durch seine hohe Lebensqualität, eine hervorragende Infrastruktur und starke Wirtschaft aus. Der Stadtteil Obersendling befindet sich im Süden der Stadt und ist geprägt durch eine gute Mischung aus Wohn-, Gewerbe- und Industrieflächen. Er zählt zu den aufstrebenden Lagen Münchens mit Nähe zur Innenstadt und dem Münchner Grüngürtel.

Der Stadtteil Obersendling bietet eine ideale Infrastruktur für Büro- und Praxisflächen. In unmittelbarer Nähe befinden sich mehrere Einkaufsmöglichkeiten, Restaurants sowie Dienstleistungsangebote. Ein Lidl-Supermarkt ist nur ca. 350 Meter entfernt und fußläufig in etwa 4 Minuten erreichbar. Auch die Anbindung an den öffentlichen Nahverkehr ist hervorragend: Der S-Bahnhof "München Siemenswerke" (S7) liegt lediglich 400 Meter entfernt und ist in etwa 5 Minuten bequem zu Fuß erreichbar. Weiterhin befindet sich die U-Bahnstation "Aidenbachstraße" (U3) rund 900 Meter entfernt, die einen schnellen Zugang in die Münchner Innenstadt ermöglicht.

Die Umgebung ist zudem geprägt durch eine Vielzahl an Grünflächen, darunter der Südpark, der in etwa 1,5 Kilometern Distanz zu finden ist. Über die nahe gelegene B2 und A95 sowie den Mittleren Ring sind die umliegenden Stadtteile und darüber hinaus auch das bayerische Umland sehr gut erreichbar. Verschiedene Gewerbestandorte schaffen ein lebendiges Arbeitsumfeld und stützen die Attraktivität der Immobilienlage.

Weitere Informationen

Stichworte Stellplatz vorhanden Sonstiges: EDV-Verkabelung

Weitere Services

Lust auf eine Besichtigung?
Eine Frage zur Immobilie?
Nachricht hinzufügen
Mit der Nutzung der oben angegebenen Telefonnummer oder durch Klicken auf „Kontaktieren“ akzeptierst Du die Allgemeinen Nutzungsbedingungen, denen Du jederzeit widersprechen kannst. Weitere Informationen zum Datenschutz

Über den Anbieter

Kistlerhofstraße 170, 81379 München
partner badge
Partnerschaft
Herr Bernhard RankeDein Kontakt
Online-ID: 2nu325j
Referenznummer: KH170 / 5.F R H
Ranke Immobilien Verwaltung GmbH
Ranke Immobilien Verwaltung GmbH
Bewertung: 4 von 5 Sternen
Nachricht hinzufügen
Mit der Nutzung der oben angegebenen Telefonnummer oder durch Klicken auf „Kontaktieren“ akzeptierst Du die Allgemeinen Nutzungsbedingungen, denen Du jederzeit widersprechen kannst. Weitere Informationen zum Datenschutz
Wie zufrieden bist du mit dieser Seite (nicht mit der Immobilie selbst)?