
GIB Immobilien
Herr Knut Prasse
+49 ···
Nr. anzeigenPreise & Kosten
Provision für Käufer
4,76 % inkl. MwSt.
Abschreibung/Anlage
Denkmalschutz-Afa
Das Haus
Kategorie
Mehrfamilienhaus
Baujahr
1919
Bezug
sofort
Derzeitige Nutzung
vermietet
Energie & Heizung
Warum sehe ich diese Anzeige? – Du siehst diese Anzeige basierend auf Ihrer Navigation auf unserer Website und den Suchkriterien, die du verwendet hast.
Energieausweis: für diesen Gebäudetyp nicht notwendig
Weitere Energiedaten
Heizungsart
offener Kamin
Details
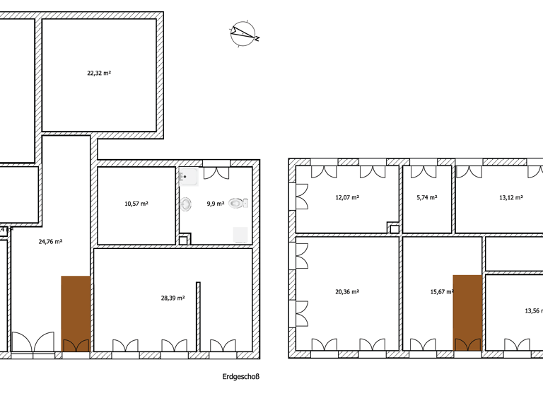
Objektbeschreibung
Dieses schöne, Fachwerkhaus mit 3 Wohnungen und einer ca. 90 qm großen Gewerbeeinheit, befindet sich Nähe Ortseingang von Weißenborn. Das Fachwerkhaus ist zentral und verkehrsgünstig gelegen und verfügt über 4 Parkplätze direkt vorm Haus. Im Erdgeschoß befindet sich eine neu sanierte 1-R-Whg. von ca. 48 qm. Im 1.OG wird...
Preisinformation
4 Stellplätze
Ist-Mieteinnahmen pro Jahr: 2.400,00 EUR
Weitere Informationen
Sonstiges
Gemäß der Datenschutzgrundverordnung (DSGVO) informieren wir Sie darüber, dass wir Ihre Kontaktdaten erheben und speichern werden, um Ihre Anfrage ordentlich bearbeiten zu können. Die Daten werden gelöscht, sobald sie für den Zweck der Verarbeitung sowie für Gewährleistungen nicht mehr erforderlich sind. Sofern...
Anbieter der Immobilie
GIB Immobilien
Meißner Str. 226, 01445 Radebeul
Online-ID: 2f6y95c
Referenznummer: 159#Z9RAC4
Finde Angebote wie dieses
Hier geht es zu unserem Impressum, den Allgemeinen Geschäftsbedingungen, den Hinweisen zum Datenschutz und nutzungsbasierter Online-Werbung.