Version: 8.22.4Navigation ĂĽberspringen
9 €
Immowelt logo

Laden zur Miete
9 Euro pro Quadratmeter

MARXIMUM

Exklusive Geschäftsfläche im MARXIMUM - Ihr neuer Business-Standort in Wien!
Sichern Sie sich Ihre Top-Geschäftsfläche im MARXIMUM, dem modernen Business-Hub in Wien mit über 40.000 m² flexibler Bürofläche. Profitieren Sie von erstklassiger Infrastruktur, innovativem Gebäudekonzept und großzügigen Grünflächen - ideal für ein produktives Arbeitsumfeld.

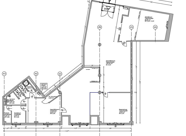
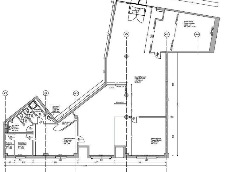
-Ca. 268 m² Geschäftsfläche mit direktem Außenzugang
-Moderne Ausstattung: Teppichboden, KĂĽchenanschluss, Glaselemente
-Sanitärbereich mit Dusche
-Optimale Anbindung und zentrale Lage
-Nutzen Sie diese einmalige Chance und verwirklichen Sie Ihre Geschäftsidee in Wiens exklusivem Business-Standort!

Merkmale

  • Bezug: Nach Vereinbarung
  • Erdgeschoss
  • Personenaufzug
  • voll klimatisiert
- KĂĽhlung vorhanden
- AuĂźenzugang
- Dusche
- Niedrige Facility-Management-Kosten
- Metall-Glas-Fassade
- flexible Grundrisse
- Park und Erholungsflächen
- Tiefgarage
- Allgemeinterrasse zum gemeinschaftlichen Nutzung
- zusätzliche Lagerflächen verfügbar

Unit 2 - HWB: 42,10
Unit 4 - HWB: 45.10

Grundrisse

Grundrisse
1 / 1

Realisiere Dein Projekt

Bausubstanz und Energie

Heizwärmebedarf (HWB)

B

Gesamtenergieeffizienz (fGEE)

Der Anbieter hat keine Daten zum Energieausweis hinterlegt.
  • Baujahr2010
  • Zustand der Immobilierenoviert / saniert
  • EnergieträgerFernwärme
Immowelt logo

Mietkosten

Gesamtmiete
4.483,75 €
Nettokaltmiete
9 €/m²
2.419,29 €
Betriebskosten
1.317,17 €
Umsatzsteuer
747,29 €
Provision fĂĽr Mieter
3 BMM zzgl. 20 % USt.
Kaution
3-6 BMM (bonitätsabhängig)
Weitere Preisinformationen
Nettokaltmiete: 2.419,29 EUR

Lage

address-icon
Wien (1110)
Der Anbieter hat die genaue Adresse nicht freigegeben
Das MARXIMUM befindet sich direkt an der Grenze zwischen dem 3. und 11. Bezirk und zeichnet sich durch seine zentrale Lage und beste Erreichbarkeit aus. Dadurch ergibt sich eine perfekte Anbindung sowohl zur Inneren Stadt als auch Richtung Flughafen.

VERKEHRSANBINDUNG:

Ă–ffentlich:
- U-Bahn: U3 Station Gasometer / ZippererstraĂźe
- Bus: 72A Station Gasometer
- S-Bahn: ab U3 Station Landstraße stehen sämtliche S-Bahn Linien sowie der CAT zur Verfügung

Individualverkehr:
- A23, A4
- Flughafen Wien Schwechat: mit dem Auto 15 Minuten

Weitere Informationen

Stichworte Nutzfläche: 268,81 m², Bürofläche: 268,81 m², Bundesland: Wien

Weitere Services

Lust auf eine Besichtigung?
Eine Frage zur Immobilie?
Nachricht hinzufĂĽgen
Mit der Nutzung der oben angegebenen Telefonnummer oder durch Klicken auf „Kontaktieren“ akzeptierst Du die Allgemeinen Nutzungsbedingungen, denen Du jederzeit widersprechen kannst. Weitere Informationen zum Datenschutz

Ăśber den Anbieter

OTTO Immobilien
OTTO ImmobilienMaklerbĂĽro
Riemergasse 8, 1010 WIEN
Frau Isabella PlesslDein Kontakt
Online-ID: 2j4ws5k
Referenznummer: IVG-O-05056/0EG-GU4
OTTO Immobilien
OTTO Immobilien
Bewertung: 4,8 von 5 Sternen
Nachricht hinzufĂĽgen
Mit der Nutzung der oben angegebenen Telefonnummer oder durch Klicken auf „Kontaktieren“ akzeptierst Du die Allgemeinen Nutzungsbedingungen, denen Du jederzeit widersprechen kannst. Weitere Informationen zum Datenschutz
Wie zufrieden bist du mit dieser Seite (nicht mit der Immobilie selbst)?