Exklusive Villa in Pego, Carvalhal
In einer der begehrtesten Lagen von Comporta, fußläufig zum Pego Beach, bietet diese außergewöhnliche Immobilie eine seltene Balance zwischen Privatsphäre, Natur und anspruchsvollem zeitgenössischem Wohnen, mit offenen Sonnenuntergangsblicken über die umliegenden landwirtschaftlichen Felder.
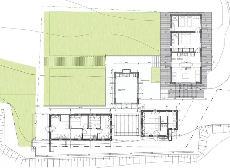
Auf einem 1462 qm großen Grundstück gelegen, bietet die Villa 192 qm private Bruttowfläche und ist als Zusammenspiel von vier unabhängigen Volumen konzipiert, inspiriert von der authentischen architektonischen Sprache der Region, neu interpretiert mit einem zeitgenössischen Ansatz.
Dieses einzigartige Layout bietet sowohl Flexibilität als auch Privatsphäre und schafft eine ideale Umgebung für das Familienleben, während es gleichzeitig Gäste mühelos beherbergt.
Zwei der Volumen verfügen über großzügige Suiten und einladende soziale Bereiche, in denen Küchen und Wohnräume nahtlos in helle, einladende Innenräume übergehen. Kamine und Fußbodenheizung sorgen für Komfort das ganze Jahr über und unterstreichen das Gefühl von zurückhaltendem Luxus.
Ein drittes Volumen umfasst eine zusätzliche Suite mit Küchenzeile und Zugang zu einer privaten Dachterrasse, die einen privilegierten Rahmen bietet, um die Ruhe der Landschaft und die ikonischen Sonnenuntergänge der Region zu genießen.
Das vierte Gebäude ist einer Support-Küche gewidmet, ergänzt durch Innen- und Außenessbereiche, die für lange, entspannte Zusammenkünfte im echten Comporta-Stil konzipiert sind.
Die Außenbereiche erweitern das Wohnerlebnis, mit mehreren Terrassen und Dachflächen, die die natürliche Umgebung vollständig umarmen. Der gestaltete Garten fügt sich harmonisch in die Umgebung ein, während der Swimmingpool ideal positioniert ist, um offene Ausblicke über die Felder, Dünen und atemberaubende Sonnenuntergänge zu bieten.
Eine außergewöhnliche Immobilie, die lokale Authentizität, diskrete Eleganz und eine nahtlose Verbindung zur Natur vereint, nur wenige Minuten von Pego- und Carvalhal-Stränden entfernt.
Über John Taylor
John Taylor ist eines der ältesten und renommiertesten internationalen Luxus-Immobilienmaklerunternehmen mit über 160 Jahren Geschichte, die der Vertretung außergewöhnlicher Immobilien gewidmet sind. In Portugal ist John Taylor in Lissabon, Cascais und Comporta mit einem erfahrenen und hochqualifizierten Team tätig, das einen maßgeschneiderten Service auf Grundlage von Präzision, Diskretion und fundierter Marktkenntnis bietet.
Für weitere Informationen zu dieser Immobilie oder um eine Besichtigung zu vereinbaren, laden wir Sie ein, John Taylor Portugal zu kontaktieren. Wir freuen uns, Ihnen einen professionellen und engagierten Service zu bieten.