Version: 8.25.1Navigation überspringen
Homeday GmbH
1.099.000 €
12 Zimmer  •  310 m²  •  4.598 m² Grundstück

Bauernhaus zum Kauf
1099000 €
3.545 €/m²
12 Zimmer  •  310 m²  •  4.598 m² Grundstück

Investitionschance: Bauernhaus mit Baugrundstück für 19 Wohneinheiten

Merkmale

  • Bezug: nach Vereinbarung
  • vermietet
  • 4.598 m² Grundstück
  • Bad mit Fenster
  • Kein Keller
  • Garten
  • 7 Stellplätze: Garage, Außen-Stellplatz
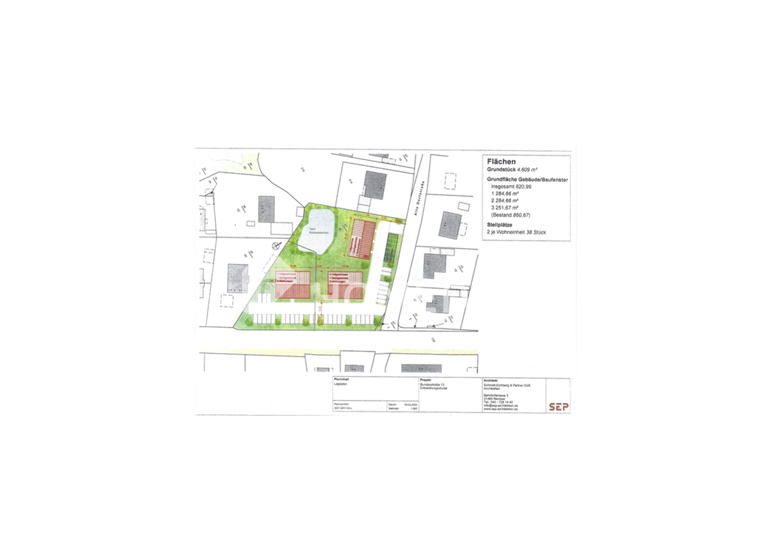
Das großzügige Grundstück mit 4.598 Quadratmetern bietet ein außergewöhnliches Entwicklungspotenzial. Die Gemeinde unterstützt ausdrücklich die Planung von bis zu 19 Wohneinheiten - denkbar sind zwei Mehrfamilienhäuser mit jeweils acht Wohnungen sowie ergänzende Reihenhäuser. Damit eröffnet sich die Chance auf eine moderne Wohnanlage, die den Bedarf nach zeitgemäßem Wohnraum perfekt aufgreift. Diese Offenheit seitens der Gemeinde schafft für Investoren eine hervorragende Basis, um ein attraktives Bauprojekt zügig umzusetzen.

Gleichzeitig überzeugt das Anwesen durch einen wertvollen Bestand: Ein großzügiges Bauernhaus aus dem Jahr 1935, das 2010 umfassend saniert wurde, bietet mit rund 310 Quadratmetern Wohnfläche auf zwei Einheiten vielfältige Nutzungsmöglichkeiten. Insgesamt zwölf Zimmer - darunter zwei Wohnzimmer, zehn Schlafzimmer und zwei Tageslichtbäder - ermöglichen sowohl Mehrgenerationenwohnen als auch die Vermietung oder Wohngemeinschaften. Ergänzt wird das Ensemble durch eine große Scheune, die aktuell als Lagerfläche eines Garten- und Landschaftsbaubetriebs dient.

Der Außenbereich bietet mit sieben Stellplätzen, davon drei in Garagen, und einem weitläufigen Garten ideale Rahmenbedingungen für Wohnen und Arbeiten auf einem Grundstück.

Das Wichtigste auf einen Blick
- Grundstück mit 4.598 Quadratmetern
- Positives Signal der Gemeinde für 19 Wohneinheiten
- Denkbar: zwei Mehrfamilienhäuser und ergänzende Reihenhäuser
- Bauernhaus von 1935, Sanierung 2010
- Zwei Wohneinheiten mit ca. 310 Quadratmetern Wohnfläche und 12 Zimmern
- Scheune als vielseitig nutzbare Lagerfläche
- 7 Stellplätze (4 Außen, 3 Garage)
- 2 Badezimmer mit Fenster, 2 Wohnzimmer, 10 Schlafzimmer

Dieses Ensemble vereint Bestand und Zukunft: eine nutzbare Bestandsimmobilie, eine funktionale Scheune und eine realistische Perspektive für eine baldige Neubebauung. Eine seltene Gelegenheit für Investoren, die langfristig denken und auf nachhaltige Renditechancen setzen.

Grundrisse

Grundrisse
1 / 4

Realisiere Dein Projekt

Bausubstanz und Energie

Energieausweis

F
  • Baujahr1935
  • Zustand der ImmobilieGepflegt
  • HeizungsartZentralheizung
  • EnergieträgerÖl
MediumRectangleTop

Preisdetails

Kaufpreis
1099000 €
3.545,16 €/m²
Provision für Käufer
3,57% inkl. MwSt. Sofern der Kaufpreis unter 89636,13€ liegt, fällt eine Mindestprovision an von 3200,01€ inkl. MwSt.
Weitere Preisinformationen
1 Stellplatz
1 Garagenstellplatz
Geschätzte Gesamtkosten
1.231.649 €1
Kaufpreis
1.099.000 €
Notarkosten (1,5%)
16.485 €
Grunderwerbsteuer (6,5%)
71.435 €
Provision für Käufer (3,57%)
39.234 €
Grundbucheintrag (0,5%)
5.495 €
1Der angezeigte Wert ist eine automatisch berechnete Schätzung von immowelt.
2Bei den Angaben handelt es sich um ortsübliche Werte. Individuelle Kosten können abweichen.

Lage

address-icon
Elmenhorst (21493)
Der Anbieter hat die genaue Adresse nicht freigegeben
Elmenhorst im Kreis Herzogtum Lauenburg präsentiert sich als idyllischer Wohnort inmitten einer landschaftlich reizvollen Umgebung, die geprägt ist von Wiesen, Feldern und kleinen Waldgebieten. Der Ort bewahrt sich eine ruhige, dörfliche Atmosphäre und bietet gleichzeitig eine gute Anbindung an größere Städte. Über die nahegelegene Bundesstraße besteht eine direkte Verbindung nach Schwarzenbek sowie weiterführend nach Hamburg, was sowohl Pendlern als auch Familien attraktive Möglichkeiten eröffnet.

Die Nähe zu Hamburg, Lübeck und Lüneburg macht die Lage besonders interessant, da diese Städte in unter einer Stunde erreichbar sind und ein vielfältiges Angebot an Kultur, Arbeitsplätzen und Einkaufsmöglichkeiten bieten. Gleichzeitig profitieren Bewohner von der naturnahen Umgebung, die Raum für Erholung, Spaziergänge und sportliche Aktivitäten schafft.

Elmenhorst selbst verfügt über die für den Alltag wichtigen Einrichtungen und zeichnet sich durch eine gewachsene Dorfgemeinschaft aus. So vereint die Lage die Ruhe des ländlichen Wohnens mit der Flexibilität, schnell in die pulsierenden Zentren Norddeutschlands zu gelangen.

Mit ÖPNV besteht folgende Anbindung:
Bus | Elmenhorst (RZ), Alte Dorfstraße (circa 50 Meter)

Weitere Informationen

Sonstiges Unsere Makler beraten Sie gerne persönlich per Telefon oder Videokonferenz. Schicken Sie uns einfach eine Anfrage über Immowelt und registrieren Sie sich auf unserer Kundenplattform myHomeday. Einen Link zu myHomeday erhalten Sie automatisch nach Ihrer Anfrage per E-Mail. Dort können Sie die Adresse und Dokumente der Immobilie freischalten sowie direkt einen Beratungstermin buchen. Stichworte Garage vorhanden, Stellplatz vorhanden, Anzahl der Schlafzimmer: 10, Anzahl der Badezimmer: 2, Anzahl der Wohneinheiten: 2, 2 Etagen, modernisiert: 2010

Weitere Services

Lust auf eine Besichtigung?
Eine Frage zur Immobilie?
Nachricht hinzufügen
Mit der Nutzung der oben angegebenen Telefonnummer oder durch Klicken auf „Kontaktieren“ akzeptierst Du die Allgemeinen Nutzungsbedingungen, denen Du jederzeit widersprechen kannst. Weitere Informationen zum Datenschutz

Über den Anbieter

Homeday GmbH
Keine Telefonnummer hinterlegt
Axel-Springer-Straße 65, 10969 Berlin
partner badge
Partnerschaft
Keine Telefonnummer hinterlegt
Online-ID: 25BQ6BHAKRP1
Referenznummer: 0CCB322V
Homeday GmbH
Homeday GmbH
Nachricht hinzufügen
Mit der Nutzung der oben angegebenen Telefonnummer oder durch Klicken auf „Kontaktieren“ akzeptierst Du die Allgemeinen Nutzungsbedingungen, denen Du jederzeit widersprechen kannst. Weitere Informationen zum Datenschutz
MediumRectangleTop
MediumRectangleBottom
MediumRectangleTop
Wie zufrieden bist du mit dieser Seite (nicht mit der Immobilie selbst)?