




Mehrfamilienhaus zum Kauf • als Kapitalanlage geeignet270000 €1.414 €/m²8 Zimmer • 195 m² • 510 m² Grundstück
270000 €
1.414 €/m²
8 Zimmer • 195 m² • 510 m² Grundstück
Kapitalanlage: Vollvermietetes MFH mit 4 Einheiten und Top-Potenzial in Vorstadtlage
Merkmale
- Bezug: ab sofort
- 510 m² Grundstück
- Einbauküche
- Keller
- 3 Stellplätze
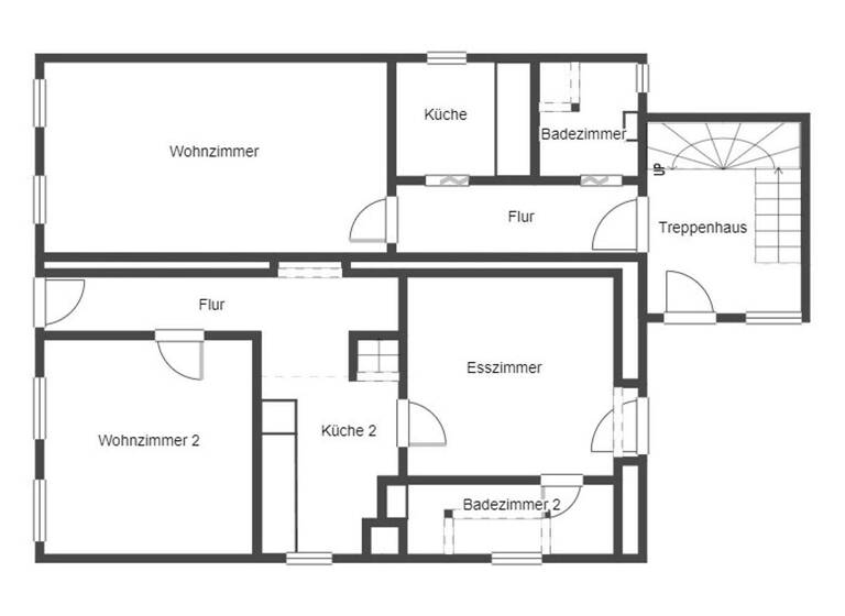
Grundrisse
Grundrisse
1 / 3
Realisiere Dein Projekt
Bausubstanz und Energie
Energieausweis
G
- Baujahr1892
- Zustand der ImmobilieGepflegt
- EnergieträgerElektro
Preisdetails
Kaufpreis
270000 €
1.413,61 €/m²
Provision für Käufer
Die Provision i.H.v. 3,57 % inkl. MwSt. ist mit Kaufvertragsbeurkundung fällig, sofern der Verkaufspreis über 83.000,00 € liegt.
Liegt der Verkaufspreis dagegen bei/unter 83. Weitere Informationen siehe Provisionshinweis.
Liegt der Verkaufspreis dagegen bei/unter 83. Weitere Informationen siehe Provisionshinweis.
Weitere Preisinformationen
Ist-Mieteinnahmen pro Jahr: 23.820,00 EUR
Geschätzte Gesamtkosten
288.981 €1
Kaufpreis
270.000 €
Kaufnebenkosten
18.981 €
2Notarkosten (1,5%)
4.050 €
Grunderwerbsteuer (5%)
13.500 €
Provision für Käufer (0,03%)
81 €
Grundbucheintrag (0,5%)
1.350 €
1Der angezeigte Wert ist eine automatisch berechnete Schätzung von immowelt.
2Bei den Angaben handelt es sich um ortsübliche Werte. Individuelle Kosten können abweichen.
Lage

Ruwer, Trier (54292)
Der Anbieter hat die genaue Adresse nicht freigegeben
Weitere Informationen
Weitere Services
Lust auf eine Besichtigung?
Eine Frage zur Immobilie?
Über den Anbieter
Online-ID: 26VZ5IG7LQDU
Referenznummer: ab3867aa68
Wie zufrieden bist du mit dieser Seite (nicht mit der Immobilie selbst)?




