Version: 8.24.0Navigation überspringen
429.000 €
4 Zimmer  •  106 m²  •  frei ab sofort
Immowelt logo

Wohnung zum Kauf
429000 €
4.047 €/m²
4 Zimmer  •  106 m²  •  frei ab sofort

Erding-City-Stadt-3-4Zi.ETW-EBK-Bezugsfrei-ca.106m²-TG auf Wunsch

Erding - Stadt - City moderne Eigentumswohnung in zentraler Lage Nähe Seniorenwohnheim und Bahnhof.

Die 3 Zi. bis (4 Zi. nach Umbau) Wohnung erstreckt sich über zwei Ebenen mit 2 Zugängen vom Treppenhaus aus und ist leicht erreichbar.

TOP: Zentrale Lage, auch gut vermietbar.
TOP: Wohnbereich mit Loggia, extra Küche, mit EBK
TOP: Badezimmer m. Wanne-Dusche, extra WC
TOP: Wohnanlage in zentraler Lage
TOP: mit Kaminanschluss für einen Holzofen
TOP: gemauerter Kellerraum
TOP: Zum Selbstbezug oder Kapitalanlage
TOP: Schöne Raumaufteilung und einen gemauerten Keller.
TOP: 2022 wurde ein neuer Fernwärmeanschluss verlegt, leider wurde der Energieausweis noch nicht angepasst.

Der Kaufpreis der Wohnung beträgt 429.000,-EUR.

Auf Wunsch kann noch zusätzlich ein TG Stellplatz (kein Duplex) erworben werden.

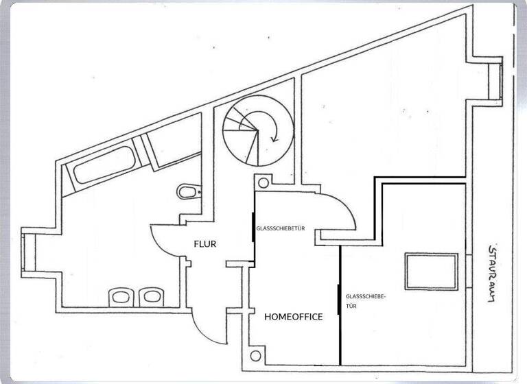
erste Ebene der Wohnung:

Eingangsbereich mit Flur, mit Zugang zum schönen Wohnbereich mit Wintergarten nach Westen. Eine Wohnküche mit EBK. Im Flurbereich ist ein separates WC. und eine Treppe in die zweite Ebene.

Die Zweite Ebene hat auch einen zusätzlich Zugang über das Treppenhaus (Möbeltransport). mit 2 Zimmer, (durch Umbau eventuell auf 3 Z. + Bad erweiterbar). ein gefliestes Badezimmer mit exklusiver Wanne, Glas Dusche, Fenster und WC. u. Waschmaschinenanschluss.

Über das Treppenhaus geht es zum Keller und zur Tiefgarage. ( ein Tiefgaragenplatz auf Wunsch zusätzlich erwerbbar)

Energiepass Art - Verbrauchsausweis
Energiebedarf - 120,90 kWh-(m²a)
Energieeffizienzklasse - D
Ausweis gültig bis - 05.09.2026
Baujahr Gebäude - 1985
Wesentliche Energieträger - Erdgas
Neue Heizung ab 2022.

Merkmale

  • Einbauküche
  • Kelleranteil
  • Tiefgarage
  • Waschraum
  • Bodenbelag: Laminat
  • offener Kamin
  • Veranda
Die Firma KREIPL-KELLNBERGER-IMMOBILIEN-GMBH sucht laufend Miet- und Verkaufsobjekte in jeder Größe. Auch für vorgemerkte Kunden. Schnelle diskrete Bearbeitung u. GÜNSTIGE PREISE.

Wir bieten kompetente Beratung u.Verkauf, gepaart mit 38 - jähriger Erfahrung und kostengünstige Konditionen.

Bei Interesse am Objekt oder wenn Sie eine Beratung zu Ihrer Immobilie wünschen, schreiben Sie uns eine kurze E-Mail an info@Kreipl-Kellnberger-Immobilien-GmbH.de (leider wegen Datenschutz notwendig) wir melden uns sofort bei Ihnen.

Grundrisse

Grundrisse
1 / 3

Realisiere Dein Projekt

Bausubstanz und Energie

Energieausweis

D
  • Baujahr1985
  • HeizungsartZentralheizung
  • EnergieträgerGas
Immowelt logo

Preisdetails

Kaufpreis
429000 €
4.047,17 €/m²
Provision für Käufer
2,38% Käuferprovision inkl. MwSt. vom Kaufpreis
Geschätzte Gesamtkosten
462.805 €1
Kaufpreis
429.000 €
Notarkosten (1,5%)
6.435 €
Grunderwerbsteuer (3,5%)
15.015 €
Provision für Käufer (2,38%)
10.210 €
Grundbucheintrag (0,5%)
2.145 €
1Der angezeigte Wert ist eine automatisch berechnete Schätzung von immowelt.
2Bei den Angaben handelt es sich um ortsübliche Werte. Individuelle Kosten können abweichen.

Lage

address-icon
AltenerdingErding (85435)
Der Anbieter hat die genaue Adresse nicht freigegeben
Kurze Wege in die Innenstadt oder zu Einkaufsmöglichkeiten und zur Erholung ist die Erdinger Therme zum Greifen nah.

Verkehrsgünstige Lage:
Ärztehaus, Schule, Kindergarten, S-Bahnhof, Einkaufszentrum in zentraler Lage

Freizeitangebot: Der Krontalerweiher in Erding ist ein sehr beliebtes Freizeitdomizil. Er bietet allen Sonnenanbetern, Wasserratten und Grillfreunden allerbeste Freizeitmöglichkeiten, unter anderem Minigolf.

Weitere Informationen

Stichworte Serviceleistungen: Hausmeister

Weitere Services

Lust auf eine Besichtigung?
Eine Frage zur Immobilie?
Nachricht hinzufügen
Mit der Nutzung der oben angegebenen Telefonnummer oder durch Klicken auf „Kontaktieren“ akzeptierst Du die Allgemeinen Nutzungsbedingungen, denen Du jederzeit widersprechen kannst. Weitere Informationen zum Datenschutz

Über den Anbieter

Lange Zeile 26, 85435 Erding
partner badge
Partnerschaft
Bruno Kreipl
Bruno KreiplDein Kontakt
Online-ID: 2n37a5h
Referenznummer: A1085
Kreipl-Kellnberger-Immobilien GmbH
title
Kreipl-Kellnberger-Immobilien GmbH
Nachricht hinzufügen
Mit der Nutzung der oben angegebenen Telefonnummer oder durch Klicken auf „Kontaktieren“ akzeptierst Du die Allgemeinen Nutzungsbedingungen, denen Du jederzeit widersprechen kannst. Weitere Informationen zum Datenschutz
Wie zufrieden bist du mit dieser Seite (nicht mit der Immobilie selbst)?