Version: 8.25.1Navigation überspringen
team19 Immobilien GmbH
1.319 €
2 Zimmer  •  92 m²

Wohnung zur Miete
1.319 €
2 Zimmer  •  92 m²

Geräumige 2-Zimmer Wohnung inkl. Einbauküche in zentraler Lage des 20. Bezirks!

Urban wohnen zwischen Donau, Augarten und Prater

In attraktiver Lage des 20. Wiener Gemeindebezirks gelangen mehrere gepflegte Mietwohnungen mit 1 bis 4 Zimmern zur Vermietung. Die Wohnflächen bewegen sich zwischen ca. 40 m² und 100 m² und bieten vielseitige Wohnlösungen für Singles, Paare und Familien.

Die Wohnungen überzeugen durch durchdachte Grundrisse, angenehme Helligkeit sowie eine praktische Ausstattung, die zeitgemäßes Wohnen mit hohem Komfort verbindet. Ein behagliches Wohngefühl steht dabei stets im Mittelpunkt.

 

Das bietet Ihnen die Liegenschaft:

 

Die Liegenschaft bietet eine Auswahl an gut geschnittenen Wohnungen mit funktionalen Raumkonzepten und zeitloser Ausstattung:

* Wohnungsgrößen von ca. 40 m² bis 100 m²
* 1 bis 4 Zimmer
* Einbauküche
* Gute Raumaufteilung und helle Wohnräume

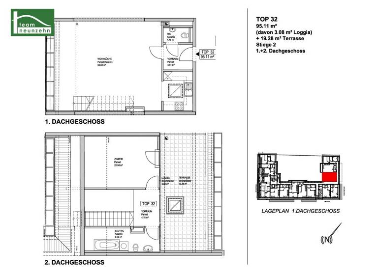
Wohnung Top 2.32:

Die Wohnung mit ca. 92,03 m² Wohnfläche liegt im 1. + 2. Dachgeschoss und gliedert sich in folgende tolle Raumaufteilung:

1. Dachgeschoss

* Vorraum ca. 3,51 m²
* separates WC ca. 1,78 m²
* Wohn-/Essbereich mit separater Kochnische ca. 52,68 m²

2. Dachgeschoss

* Vorraum/Flur ca. 4,18 m²
* Badezimmer mit WC, Badewanne, Waschbecken und Waschmaschinenanschluss ca. 9,04 m²
* 1. Zimmer ca. 20,84 m²
* Loggia ca. 3,08 m²
* Terrasse ca. 19,28 m²

 

Wir weisen höflichst darauf hin, dass es sich bei den Fotos anbei um Musterfotos handelt. Die Wohnung wird gleich oder gleichwertig übergeben.

 

Mietkosten:

monatliche Mietkosten: € 1.749,07 (inkl. Betriebskosten und USt.)

Bei dem angeführten Mietpreis handelt es sich um eine Kaltmiete, somit sind sämtliche Energiekosten wie Warmwasser-, Heiz- und Stromkosten nicht inkludiert.

 

Nebenkosten:

Kaution: 3 Bruttomonatsmieten

 

Infrastruktur

Die Umgebung zeichnet sich durch eine ausgezeichnete Infrastruktur und ein hohes Maß an Lebensqualität aus. Die Nähe zur Donau, zum Augarten sowie zum Prater bietet ideale Möglichkeiten für Erholung, Sport und Freizeit im Grünen.

Gleichzeitig profitieren Bewohner von einer sehr guten Nahversorgung sowie kurzen Wegen zu Geschäften, Gastronomie und Dienstleistern des täglichen Bedarfs.

Öffentliche Verkehrsanbindung:

* Buslinien: 11A, 11B, 5A, 37A
* Straßenbahnlinien: O, 2
* Bahnhöfe: Wien Traisengasse, Wien Handelskai

Sowohl die Wiener Innenstadt als auch die Donauinsel sind in wenigen Minuten erreichbar.

 

Energieausweis

Der Heizwärmebedarf beträgt 42,30 kWh/m²a, welcher der Klasse B entspricht.

 

Diese Wohnungen vereinen eine zentrale Lage mit hoher Wohnqualität und bieten durch die Nähe zur Donau, zum Augarten und zum Prater ein Wohnumfeld, das urbanes Leben und Erholung auf angenehme Weise miteinander verbindet.

Gerne steht Ihnen für Fragen und Besichtigungen Herr Darius Muntean unter Muntean@teamneunzehn.at sowie unter +43 676 5644 314 zur Verfügung.

Wir weisen darauf hin, dass zwischen dem Vermittler und dem zu vermittelnden Dritten ein familiäres oder wirtschaftliches Naheverhältnis besteht.

Der Immobilienmakler erklärt, dass er - entgegen dem in der Immobilienwirtschaft üblichen Geschäftsgebrauch des Doppelmaklers - einseitig nur für den Vermieter tätig ist.

"Leben braucht Raum" * T19-RE Real Estate GmbH & Co KG * www.teamneunzehn.at [https://www.teamneunzehn.at]

Doppelmakler

Wir werden als Immobilienmakler kraft bestehenden Geschäftsgebrauchs als Doppelmakler tätig und haben sohin beide Seiten des Vertrages (Verkäufer-Käufer, Vermieter-Mieter) zu unterstützen.

Wirtschaftliches Naheverhältnis

Es wird bekannt gegeben, dass folgendes wirtschaftliches Naheverhältnis zwischen der teamneunzehn-Gruppe und dem Verkäufer/der vermietenden Partei besteht: ständige und dauerhafte Beauftragung mit der Vermittlung des bestehenden Immobilienportfolios

Haftungserklärung zum Inserat

Irrtum und Änderungen vorbehalten! Sofern es sich bei Bildern um Visualisierungen handelt, können Abänderungen zur tatsächlichen Ausführung resultieren. Wir weisen ausdrücklich darauf hin, dass das auf Fotos oder Visualisierungen ersichtliche Mobiliar bzw. Inventar nicht Bestandteil des inserierten Preises ist.

Merkmale

  • Bezug: ab sofort
  • Einbauküche, offene Küche
  • Personenaufzug
  • Gäste-WC
  • Terrasse
  • Badewanne
  • voll klimatisiert

Grundrisse

Grundrisse
1 / 1

Realisiere Dein Projekt

Bausubstanz und Energie

Heizwärmebedarf (HWB)

B

Gesamtenergieeffizienz (fGEE)

C
  • Baujahr2009
  • Zustand der ImmobilieNeubau, neuwertig
  • HeizungsartZentralheizung
  • EnergieträgerFernwärme
MediumRectangleTop

Mietkosten

Gesamtmiete
1.749,08 €
Nettokaltmiete
17,28 €/m²
1.319 €
Betriebskosten
271,07 €
Kaution
3 Bruttomonatsmieten
Weitere Preisinformationen
Nettokaltmiete: 1.319,00 EUR

Lage

address-icon
Innstraße 23Wien (1200)
Vorgartenstraße, Handelskai, Donau, Dresdner Straße, Augarten, Prater, Millennium City

Weitere Informationen

Stichworte Nord-Ost-Balkon/Terrasse, Fahrradraum, Nutzfläche: 114,39 m², Gesamtfläche: 114,39 m², Freifläche: 22,36 m², Anzahl der Badezimmer: 1, Anzahl der separaten WCs: 2, Anzahl Terrassen: 1, Anzahl Loggias: 1, Balkon-Terrassen-Fläche: 22,36 m², Bundesland: Wien, Wohnungsnr.: 32

Weitere Services

Lust auf eine Besichtigung?
Eine Frage zur Immobilie?
Mit einer persönlichen Nachricht hast du bessere Chancen auf eine Antwort.
Mit der Nutzung der oben angegebenen Telefonnummer oder durch Klicken auf „Kontaktieren“ akzeptierst Du die Allgemeinen Nutzungsbedingungen, denen Du jederzeit widersprechen kannst. Weitere Informationen zum Datenschutz

Über den Anbieter

Handelskai 94-96/21. Stock, 1200 BRIGITTENAU
partner badge
Partnerschaft
Herr Darius MunteanDein Kontakt
Online-ID: 26T3GK5XS4FQ
Referenznummer: OBGC20260327132351633e498b56133
team19 Immobilien GmbH
team19 Immobilien GmbH
Mit einer persönlichen Nachricht hast du bessere Chancen auf eine Antwort.
Mit der Nutzung der oben angegebenen Telefonnummer oder durch Klicken auf „Kontaktieren“ akzeptierst Du die Allgemeinen Nutzungsbedingungen, denen Du jederzeit widersprechen kannst. Weitere Informationen zum Datenschutz
MediumRectangleTop
MediumRectangleBottom
MediumRectangleTop
Wie zufrieden bist du mit dieser Seite (nicht mit der Immobilie selbst)?