Wohlfühlwohnen nahe der Donau - 3-Zimmer-Wohnung mit durchdachtem Grundriss & Einbauküche - ab 01.08. beziehbar!
Gepflegte Mietwohnungen nahe Donau, Augarten und Prater
In zentraler Lage des 20. Bezirks gelangen mehrere 1- bis 4-Zimmer-Wohnungen mit Wohnflächen zwischen 40 m² und 100 m² zur unbefristeten Vermietung.
Die Wohnungen punkten mit einem durchdachtem Grundriss, hellen Räumen und einer praktischen Ausstattung, die ein angenehmes Wohngefühl vermittelt.
Das bietet Ihnen die Liegenschaft:
* Wohnungsgrößen: 40 m² bis 100 m²
* Zimmeranzahl: 1 bis 4 Zimmer
* Einbauküche
* 5 Jahre Befristung
* Gute Raumaufteilung & angenehme Helligkeit
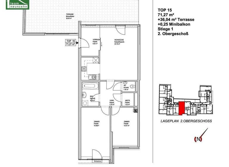
Wohnung Top 1.15:
Die Wohnung mit ca. 71,27 m² Wohnfläche und ca. 36,04 m² Terrasse liegt im 2. Obergeschoss und gliedert sich in folgende tolle Raumaufteilung:
* Vorraum ca. 6,30 m²
* Wohn-/Essbereich mit separater Kochnische ca. 24,78 m²
* 2. Vorraum ca. 5,76 m²
* 1. Zimmer ca. 16,48 m²
* 2. Zimmer ca. 10,67 m²
* Badezimmer mit Badewanne, Waschbecken und Waschmaschinenanschluss ca. 4,28 m²
* separates WC ca. 1,48 m²
* Abstellraum ca. 1,52 m²
* Terrasse ca. 36,04 m²
* Minibalkon ca. 0,25 m²
Wir weisen höflichst darauf hin, dass es sich bei den Fotos anbei um Musterfotos handelt. Die Wohnung wird gleich oder gleichwertig übergeben.
Einige Bilder des Inserats wurden zum Zweck der besseren Visualisierung digital mit KI möbliert. Die Wohnung wird unmöbliert übergeben.
Mietkosten:
monatliche Mietkosten: € 1.345,42 (inkl. Betriebskosten und USt.)
Bei dem angeführten Mietpreis handelt es sich um eine Kaltmiete, somit sind sämtliche Energiekosten wie Warmwasser-, Heiz- und Stromkosten nicht inkludiert.
Nebenkosten:
Kaution: 3 Bruttomonatsmieten
Infrastruktur:
Die Wohnungen befinden sich in einer gut erschlossenen Wohngegend in der Nähe der Donau, des Augartens und des Praters - ideale Voraussetzungen für Erholung, Sport und Freizeit im Grünen. Gleichzeitig profitieren Sie von einer ausgezeichneten Nahversorgung sowie kurzen Wegen zu öffentlichen Verkehrsmitteln.
Sehr gute öffentliche Anbindung:
* Buslinien: 11A, 11B, 5A, 37A
* Straßenbahnlinien: O, 2
* Bahnhöfe: Wien Traisengasse, Wien Handelskai
Sowohl die Wiener Innenstadt als auch die Donauinsel sind in wenigen Minuten erreichbar.
Energieausweis:
Der Heizwärmebedarf beträgt 42,30 kWh/m²a, welcher der Klasse B entspricht.
Für Fragen bzw. Besichtigungen steht Ihnen Frau Marija Ivanov sehr gerne unter ivanov@teamneunzehn.at sowie unter +43 676 852 243 531 zur Verfügung.
Wir weisen darauf hin, dass zwischen dem Vermittler und dem zu vermittelnden Dritten ein familiäres oder wirtschaftliches Naheverhältnis besteht.
Der Immobilienmakler erklärt, dass er - entgegen dem in der Immobilienwirtschaft üblichen Geschäftsgebrauch des Doppelmaklers - einseitig nur für den Vermieter tätig ist.
"Leben braucht Raum" * T19-RE Real Estate GmbH & Co KG * www.teamneunzehn.at [https://www.teamneunzehn.at]
Doppelmakler
Wir werden als Immobilienmakler kraft bestehenden Geschäftsgebrauchs als Doppelmakler tätig und haben sohin beide Seiten des Vertrages (Verkäufer-Käufer, Vermieter-Mieter) zu unterstützen.
Wirtschaftliches Naheverhältnis
Es wird bekannt gegeben, dass folgendes wirtschaftliches Naheverhältnis zwischen der teamneunzehn-Gruppe und dem Verkäufer/der vermietenden Partei besteht: ständige und dauerhafte Beauftragung mit der Vermittlung des bestehenden Immobilienportfolios
Haftungserklärung zum Inserat
Irrtum und Änderungen vorbehalten! Sofern es sich bei Bildern um Visualisierungen handelt, können Abänderungen zur tatsächlichen Ausführung resultieren. Wir weisen ausdrücklich darauf hin, dass das auf Fotos oder Visualisierungen ersichtliche Mobiliar bzw. Inventar nicht Bestandteil des inserierten Preises ist.