Version: 8.24.0Navigation ĂĽberspringen
Passauer Immobilien Resch & Söhne GmbH seit 1968
1.950.000 €
19 Zimmer  â€˘  630 m²  â€˘  1.334 m² GrundstĂĽck

Mehrfamilienhaus zum Kauf
1950000 €
3.095 €/m²
19 Zimmer  â€˘  630 m²  â€˘  1.334 m² GrundstĂĽck

Top-Anlageobjekt Nähe Neukirchen v.W.: Haus mit 10 Wohnungen, voll vermietet, PV-Anlage

Setzen Sie sich ins gemachte Nest und profitieren Sie von diesem Top-Anlageobjekt. Der 1965 errichtete Bestandsbau wurde in den Jahren 2023 bis 2025 umfangreich renoviert und saniert. Zusätzlich wurde ein Neubau erstellt, welcher 2024 erstmals bezugsfertig war und zwei Wohnungen beherbergt. Ferner gibt es eine 13,35 KW kWp-PV-Anlage, welche 7 Wohneinheiten mit Strom versorgt. Der produzierte Strom wird an die Mieter verkauft, dazu steht auch ein 11,5 KW großer Stromspeicher zur Verfügung.
Alle Wohnungen sind an sehr gute Mieter vermietet. In zwei Wohnungen wohnen Altmieter, hier gibt es die Möglichkeit der Erhöhung bei Neuvermietung. Auch die KFZ-Stellplätze im Freien sind aktuell frei zugänglich für die Mieter - auch hier Erhöhungspotenzial.

ECKDATEN IM ĂśBERBLICK:

Objektart: Haus mit 10 Wohnungen

Baujahr: Bestandbau: 1965, Neubau: 2023/2024

Sanierung:2023 - 2025 umfangreiche Sanierung

Wohnfläche: ca. 630 m²

Mieteinnahme p.a.:ca. 70.000,- € (incl. Einnahmen aus PV-Anlage)

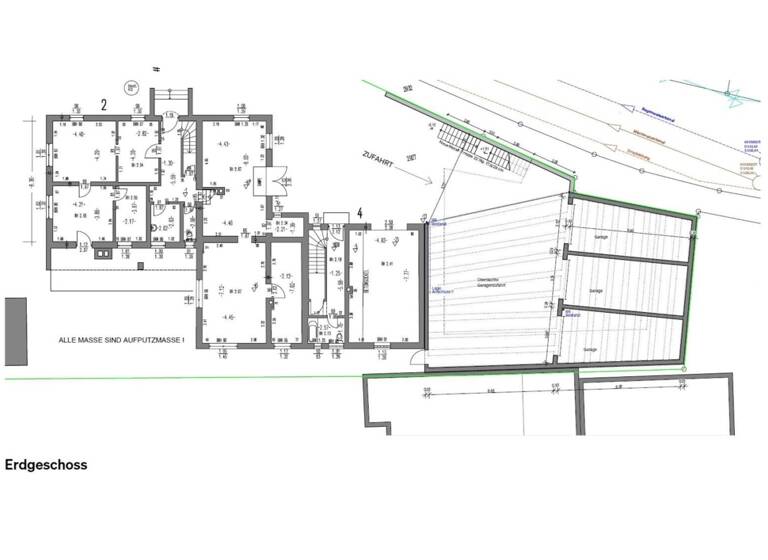
Wohnungen: 10

Heizungsart: Pellets

Endenergiebedarf: 163,20 kWh(m²a)

Effizienzklasse: F

Balkone/Terrassen: 2 Wohnungen mit Terrasse, 4 Wohnungen mit Balkon

Grundstück: 1.334 m²

Kaufpreis: 1.950.000, - €

Merkmale

  • Bezug: vermietet!
  • vermietet
  • 1.334 m² GrundstĂĽck
  • EinbaukĂĽche
  • Keller
  • 13 Stellplätze: 7 Garagen, 6 AuĂźen-Stellplätze
  • Balkon
  • Terrasse

Grundrisse

Grundrisse
1 / 4

Realisiere Dein Projekt

Bausubstanz und Energie

Energieausweis

F
  • Baujahr1965
  • Zustand der ImmobilieMassivhaus, Gepflegt
  • EnergieträgerPellets
MediumRectangleTop

Preisdetails

Kaufpreis
1950000 €
3.095,24 €/m²
Provision für Käufer
3,57 % € incl. MwSt. Käufermaklercourtage. inkl. MwSt.
Weitere Preisinformationen
6 Stellplätze
7 Garagenstellplätze
Geschätzte Gesamtkosten
2.126.865 €1
Kaufpreis
1.950.000 €
Notarkosten (1,5%)
29.250 €
Grunderwerbsteuer (3,5%)
68.250 €
Provision für Käufer (3,57%)
69.615 €
Grundbucheintrag (0,5%)
9.750 €
1Der angezeigte Wert ist eine automatisch berechnete Schätzung von immowelt.
2Bei den Angaben handelt es sich um ortsübliche Werte. Individuelle Kosten können abweichen.

Lage

address-icon
Weiding, Neukirchen vorm Wald (94154)
Der Anbieter hat die genaue Adresse nicht freigegeben
Zentrale Lage im Ort, fußläufig alles gut erreichbar, beste Infrastruktur. Hervorragende Verkehrsanbindung.

Weitere Informationen

Sonstiges Mieteinnahmen:

Aus Garagen: 410,- €
Gesamtmiete aus Wohnungen und Garagen monatlich 5.510,- €.

Zusätzlich werden Einnahmen aus dem Verkauf des durch die PV-Anlage produzierten Stroms an 7 Wohneinheiten im Haus generiert. Die monatliche Gesamteinnahme beträgt somit ca. 6.000,- € (incl. den Einnahmen aus Wohnungen und Garagen).

Die jährliche Gesamtmieteinnahme beträgt ca. 72.000,- € netto p.a.

Energiekennwerte:

Art des vorliegenden Energieausweises: Bedarfsausweis
Endenergiebedarf:163,20 kWh/(m²a)
Energieträger: Holzpellets
Baujahr Wohngebäude: 1965
Baujahr Anlagentechnik: 2023
Energieeffizienzklasse: F

Maklercourtage: 3,57 % € incl. MwSt. Käufermaklercourtage.

Verkaufspreis: 1.950.000,00 €

Alle Angaben sind ohne Gewähr und basieren ausschließlich auf Informationen, die uns von unserem Auftraggeber übermittelt wurden. Wir übernehmen keine Gewähr für die Vollständigkeit, Richtigkeit und Aktualität dieser Angaben. Stichworte Anzahl der Schlafzimmer: 10, Anzahl der Badezimmer: 10, Anzahl Balkone: 6, Anzahl Terrassen: 2, 3 Etagen, Distanz zum Kindergarten: 3.22, Distanz zur Grundschule: 4.22, Distanz zur Realschule: 3.57, Distanz zur nächsten Einkaufsmöglichkeit: 9.82, Distanz zum Flughafen: 15.28, Distanz zur Autobahn: 8.86, Distanz zum Bus: 0.34, Distanz zur nächsten Gaststätte: 0.99, Distanz zur Hauptschule: 11.58

Weitere Services

Lust auf eine Besichtigung?
Eine Frage zur Immobilie?
Nachricht hinzufĂĽgen
Mit der Nutzung der oben angegebenen Telefonnummer oder durch Klicken auf „Kontaktieren“ akzeptierst Du die Allgemeinen Nutzungsbedingungen, denen Du jederzeit widersprechen kannst. Weitere Informationen zum Datenschutz

Ăśber den Anbieter

Dr.-Hans-Kapfinger-Str. 32, 94032 Passau
partner badge
3 Jahre Partnerschaft
Herr GĂĽnter Resch
Herr GĂĽnter ReschDein Kontakt
Online-ID: 2k25j5u
Referenznummer: H10359
Passauer Immobilien Resch & Söhne GmbH seit 1968
title
Passauer Immobilien Resch & Söhne GmbH seit 1968
Bewertung: 4,5 von 5 Sternen
Nachricht hinzufĂĽgen
Mit der Nutzung der oben angegebenen Telefonnummer oder durch Klicken auf „Kontaktieren“ akzeptierst Du die Allgemeinen Nutzungsbedingungen, denen Du jederzeit widersprechen kannst. Weitere Informationen zum Datenschutz
MediumRectangleTop
MediumRectangleBottom
MediumRectangleTop
Wie zufrieden bist du mit dieser Seite (nicht mit der Immobilie selbst)?