Diese 3-Zimmer-Wohnung befindet sich im Hochparterre eines gepflegten, 5-geschossigen Mehrfamilienhauses im Stadtteil Neu Schmellwitz. Sie eignet sich ideal für Singles oder Paare, die eine gut geschnittene Wohnung in angenehmer Wohnlage suchen.
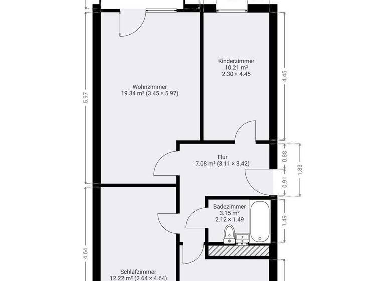
Der praktische Grundriss umfasst eine separate Küche, ein großzügiges Wohnzimmer mit Zugang zum Balkon sowie zwei gut nutzbare Schlafzimmer. Ein eigenes Kellerabteil sowie ein gemeinschaftlicher Fahrradraum stehen zur Verfügung. Die Fernwärmeversorgung sorgt für eine verlässliche und wirtschaftliche Beheizung.
Merkmale
Bezug: Sofort
Erdgeschoss
Kelleranteil
Bodenbelag: Fliesen, Laminat
Balkon
Die Wohnung befindet sich in einem gepflegten, dem Baujahr entsprechenden Zustand und bietet eine solide Basis für komfortables Wohnen. Die funktional geschnittenen Räume sind gut nutzbar und schaffen ein angenehmes Wohnumfeld.
3-Zimmer-Wohnung in der Hochparterre + Laminatboden im Wohnzimmer + Vinylboden im Schlafzimmer und Kinderzimmer (neu 2026) + Fliesenboden im Flur, Badezimmer und in der Küche + Helles Wohnzimmer mit Zugang zum Balkon + Küche mit Fenster + Badezimmer mit Badewanne und Waschmaschinenanschluss + Zwei Schlafzimmer mit praktikabler Raumaufteilung + Wechselsprechanlage + Eigenes Kellerabteil sowie gemeinschaftlicher Fahrradraum + Öffentliche Stellplätze direkt vor dem Haus + Fernwärmeversorgung, Energieklasse C (93 kWh/(m²a)) + Gepflegtes Mehrfamilienhaus, Baujahr 1989
Grundrisse
Grundrisse
1 / 1
Realisiere Dein Projekt
Bausubstanz und Energie
Energieausweis
C
Baujahr1989
Zustand der ImmobilieGepflegt
EnergieträgerFernwärme
Mietkosten
Warmmiete
646 €
Kaltmiete
7,42 €/m²
460 €
Nebenkosten
186 €
Heizkosten
in Warmmiete enthalten
Kaution
920 €920 €
Lage
Schmellwitz, Cottbus / Schmellwitz (03044)
Der Anbieter hat die genaue Adresse nicht freigegeben
Die Wohnung liegt im grünen Stadtteil Neu Schmellwitz - einem ruhigen Wohngebiet im Norden von Cottbus. Die Umgebung bietet eine gut ausgebaute Infrastruktur mit kurzen Wegen zu Nahversorgern, Apotheken, Ärzten und Bushaltestellen. Schulen und Kindergärten befinden sich ebenfalls in unmittelbarer Nähe.
Dank der schnellen Anbindung an Tram und Bus ist das Stadtzentrum zügig erreichbar. Parks und umliegende Grünflächen sorgen für Erholung direkt vor der Haustür und machen die Lage besonders attraktiv für naturnahe Stadtbewohner.
Weitere Informationen
Sonstiges
Nach Ihrer Anfrage erhalten Sie automatisch eine E-Mail mit einer digitalen Erstinformation für Ihren Besichtigungstermin.
Entdecken Sie weitere Immobilien auf unserer Homepage:
https://cottbus-immobilienmakler.immo
Sie möchten Ihre Immobilie verkaufen oder vermieten? Kontaktieren Sie mich! Als erfahrener Immobilienmakler biete ich Ihnen professionelle Beratung und finde die beste Lösung für Ihre Bedürfnisse.
Jetzt anfragen & Immobilienwunsch realisieren!
Stichworte
Fahrradraum, Anzahl der Schlafzimmer: 2, Anzahl der Badezimmer: 1, Anzahl Balkone: 1, Bundesland: Brandenburg, 1 Etagen, Distanz zum Kindergarten: 1.10, Distanz zur Grundschule: 0.25, Distanz zur nächsten Einkaufsmöglichkeit: 0.30, Distanz zum Gymnasium: 1.70, Distanz zur Autobahn: 10.50, Distanz zum Bus: 0.27, Distanz vom Zentrum: 3.20, Distanz zur Hauptschule: 0.50