Version: 8.22.4Navigation überspringen
682.900 €
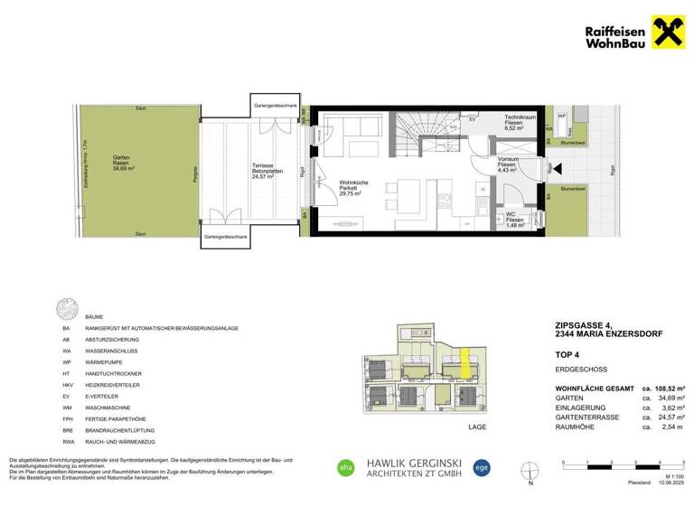
4 Zimmer  •  108,5 m²
Immowelt logo

Reihenmittelhaus zum Kauf - Erstbezug • provisionsfrei
682900 €
6.293 €/m²
4 Zimmer  •  108,5 m²

REIHENHAUS MIT GARTEN | PROVISIONSFREI

Zentral gelegen und doch im Grünen, gute Verkehrsanbindung, top ausgestattet.

In einer beliebten Wohngegend südlich von Wien, in zentraler Lage in Maria Enzersdorf entsteht ein erstklassiges Wohnprojekt. Auf einer Fläche von über 3.000 m² werden 15 Doppel- und Reihenhäuser mit modernster Ausstattung und ökologischer Luftwärmepumpe errichtet. Die angeführten Preise beziehen sich auf die belagsfertige Ausführung. Die Häuser können auch in der schlüsselfertigen Variante mit modernster Ausstattung gegen Aufpreis erworben werden. Besonderes Highlight sind die durchdachte Raumplanung und die hochwertigen Materialen!

. Wohnfläche: ca. 108,52 m²
. Garten: ca. 34,69 m²
. Gartenterrasse: ca. 24,57 m²

In der Tiefgarage stehen gesamt 30 komfortable Einzelstellplätze zur Verfügung. Jedem Haus sind 2 Stellplätze zugeordnet, der Kaufpreis eines Stellplatzes beträgt zusätzlich EUR 25.000,- (Eigennutzer).

Die Neubauten sind optimal an den öffentlichen Verkehr angebunden. Mit der Schnellbahn ist die Wiener U-Bahnlinie U6 in nur 14 Minuten zu erreichen. Knapp 20 Minuten sind es bis zur U-Bahnlinie U1 mit weiteren Anschlussmöglichkeiten an die innerstädtischen Verkehrsmittel. Die Autobahnanschlussstelle A21 - A2 ist in 9 Minuten mit dem Auto zu erreichen.
Die Wohnruhelage zeichnet sich durch einen idyllischen Parkblick und drei großflächige Parks in unmittelbarer Nähe aus. Ebenso ist ein Schulzentrum fußläufig, sowie diverse Schulen für alle Altersklassen mit Bussen erreichbar.

 

 

Wir weisen darauf hin, dass zwischen dem Vermittler und dem zu vermittelnden Dritten ein familiäres oder wirtschaftliches Naheverhältnis besteht.

Der Vermittler ist als Doppelmakler tätig.

Infrastruktur / Entfernungen

Gesundheit
Arzt <500m
Apotheke <500m
Klinik <2.000m
Krankenhaus <1.500m

Kinder & Schulen
Kindergarten <250m
Schule <250m
Höhere Schule <2.750m
Universität <10.000m

Nahversorgung
Supermarkt <250m
Bäckerei <1.250m
Einkaufszentrum <1.750m

Sonstige
Bank <250m
Geldautomat <250m
Post <1.250m
Polizei <500m

Verkehr
Bus <250m
U-Bahn <4.250m
Straßenbahn <4.250m
Bahnhof <1.250m
Autobahnanschluss <2.250m

Angaben Entfernung Luftlinie / Quelle: OpenStreetMap

Merkmale

  • Außen-Stellplatz
  • Terrasse

Grundrisse

Grundrisse
1 / 4

Realisiere Dein Projekt

Bausubstanz und Energie

Heizwärmebedarf (HWB)

B

Gesamtenergieeffizienz (fGEE)

A++
  • Baujahr2025
  • Zustand der ImmobilieNeubau, Erstbezug
  • HeizungsartFußbodenheizung
  • EnergieträgerLuft-/Wasser-Wärmepumpe
Immowelt logo

Preisdetails

Kaufpreis
682900 €
6.292,85 €/m²
Provision für Käufer
provisionsfrei; Provision bezahlt der Abgeber.
Weitere Preisinformationen
1 Stellplatz

Lage

address-icon
ZipsgasseMaria Enzersdorf (2344)

Weitere Informationen

Stichworte Anzahl der Badezimmer: 2, Anzahl der separaten WCs: 3, Anzahl Terrassen: 1, Balkon-Terrassen-Fläche: 33,50 m², Kellerfläche: 3,62 m², Bundesland: Niederösterreich, 3 Etagen

Weitere Services

Lust auf eine Besichtigung?
Eine Frage zur Immobilie?
Nachricht hinzufügen
Mit der Nutzung der oben angegebenen Telefonnummer oder durch Klicken auf „Kontaktieren“ akzeptierst Du die Allgemeinen Nutzungsbedingungen, denen Du jederzeit widersprechen kannst. Weitere Informationen zum Datenschutz

Über den Anbieter

Hietzinger Hauptstrasse 22/D/9, 1130 WIEN
partner badge
Partnerschaft
Frau Karin Prosenik-ReschDein Kontakt

Weitere Unterlagen

Online-ID: 2mp8c5c
Referenznummer: OBGC20251027230228329d9c602fe9b
RE/MAX First REM Immobilienmakler GmbH & Co KG
RE/MAX First REM Immobilienmakler GmbH & Co KG
Bewertung: 5 von 5 Sternen
Nachricht hinzufügen
Mit der Nutzung der oben angegebenen Telefonnummer oder durch Klicken auf „Kontaktieren“ akzeptierst Du die Allgemeinen Nutzungsbedingungen, denen Du jederzeit widersprechen kannst. Weitere Informationen zum Datenschutz
Wie zufrieden bist du mit dieser Seite (nicht mit der Immobilie selbst)?