Die hier angebotene Arztpraxis im Bereich der Allgemeinmedizin, wird seit 2001 erfolgreich geführt und deckt in Hoffnungsthal einen großen Teil der medizinischen Nahversorgung ab. Mit 118 m² ist die Fläche auskömmlich und wirtschaftlich für eine derartige Nutzung. Vor dem Haus steht der erforderliche PKW-Stellplatz für die Patienten zur Verfügung. Das sechs Parteien Wohn- und Ärztehaus wurde 2001 hochwertig errichtet und hat bis heute eine repräsentative Erscheinung.
Merkmale
vermietet
Erdgeschoss
Außen-Stellplatz
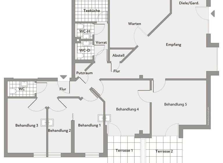
Grundrisse
Grundrisse
1 / 1
Realisiere Dein Projekt
Bausubstanz und Energie
Energieausweis
Endenergieverbrauch (Wärme)
Endenergieverbrauch (Strom)
Baujahr2001
Zustand der ImmobilieMassivhaus
EnergieträgerGas
Preisdetails
Kaufpreis
248000 €248.000 €
2.101,69 €/m²
Provision für Käufer
3,57 % inkl. MwSt.
Weitere Preisinformationen
1 Stellplatz Ist-Mieteinnahmen pro Jahr: 15.000,00 EUR
Geschätzte Gesamtkosten
256.854 €1
Kaufpreis
248.000 €
Kaufnebenkosten
8.854 €
2
Provision für Käufer (3,57%)
8.854 €
1Der angezeigte Wert ist eine automatisch berechnete Schätzung von immowelt.
2Bei den Angaben handelt es sich um ortsübliche Werte. Individuelle Kosten können abweichen.
Lage
Hoffnungsthal, Rösrath / Hoffnungsthal (51503)
Der Anbieter hat die genaue Adresse nicht freigegeben
19 Kilometer südöstlich von Köln, im Osten des Rheinisch-Bergischen Kreises, liegt Rösrath. Die idyllische Stadt ist von den Grünflächen der Wahner Heide und des Königsforstes umgeben, rund die Hälfte des Stadtgebiets besteht aus Wald. Die vier Stadtteile der mit ca. 28.500 Einwohnern überschaubaren Stadt gehen, bis auf Forsbach, ineinander über. Hoffnungsthal liegt im Nordosten des Rösrather Stadtgebiets und wird von der Sülz durchflossen, was dem Stadtteil zu zahlreichen idyllischen Uferwegen und -wiesen verhilft. Zwar sind diverse Altbauten eindrucksvolle Zeugen der Vergangenheit Rösraths, gelichzeitig belegen aber die zahlreichen Rösrather Neubauten der 90er-Jahre die nicht grundlos große Beliebtheit der Region. Entsprechend gut ist auch die Infrastruktur. Ärzte, Kindergärten und Schulen aller Art sowie Einrichtungen zur Deckung des täglichen Bedarfs sind zu Genüge vorhanden. Es besteht eine ideale Anbindung an die Autobahnen A 3 und A 4 und der Bahnhof Hoffnungsthal bindet den Ortsteil auch per Regionalbahn an den Großraum Köln an. Die Kölner Innenstadt ist sowohl mit dem Auto als auch mit öffentlichen Verkehrsmitteln in rund einer halben Stunde zu erreichen.