Version: 8.24.0Navigation überspringen
1.100.000 €
9,5 Zimmer  •  265 m²  •  1.257 m² Grundstück
Immowelt logo

Mehrfamilienhaus zum Kauf
1100000 €
4.151 €/m²
9,5 Zimmer  •  265 m²  •  1.257 m² Grundstück

Attraktive Kapitalanlage - gepflegtes Mehrfamilienhaus mit 4x Wohneinheiten & Photovoltaik-Anlage

Das im Jahr 1978 in massiver Bauweise errichtete Mehrfamilienhaus präsentiert sich als solide und renditestarke Kapitalanlage mit vier vermieteten Wohneinheiten. Auf einem 1.257 m² großen Grundstück in ruhiger Wohnlage bietet die gepflegte Immobilie eine Gesamtwohn- und Nutzfläche von rund 265 m² zuzüglich der weiteren Nutzflächen im Keller- und Dachbodenbereich.

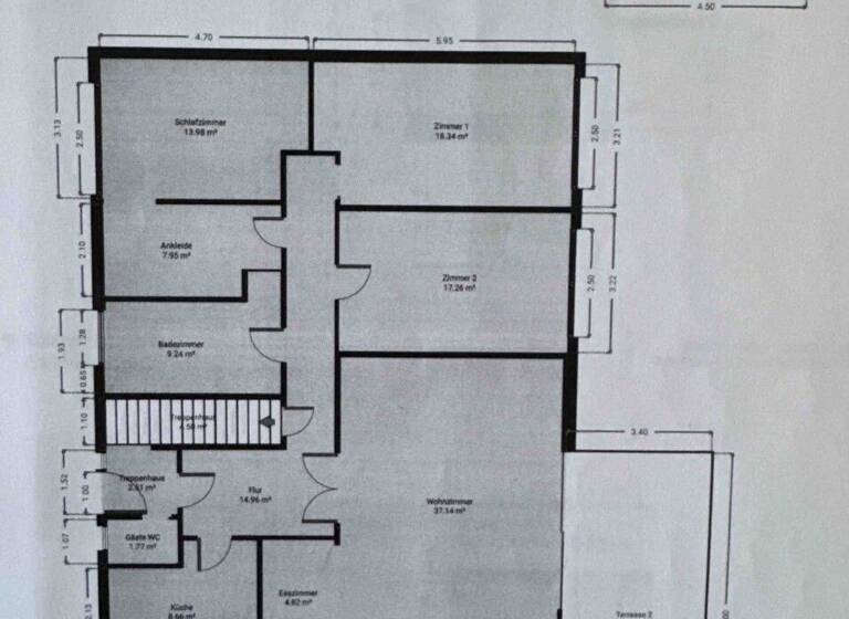
Die großzügige Erdgeschosswohnung mit etwa 152 m² besticht durch einen Wohn-Essbereich mit 43m², drei Schlafzimmern, ein Arbeitszimmer, eine moderne Einbauküche (2015), Vollbad und Gäste-WC. Eine große Terrasse, Gartenhaus und Stellplatz runden das komfortable Wohnen ab.

Im Obergeschoss liegen zwei weitere Einheiten:
Die Wohnung links mit rund 72?m² überzeugt durch einen hellen Wohn-Essbereich mit 32m², neue Einbauküche und ein barrierearmes Duschbad - beides 2024 modernisiert. Ergänzt wird sie durch eine kleine Hobby-Staufläche im Dachgeschoss, eine Terrasse mit Gartenhaus sowie einen Doppelstellplatz in der Tiefgarage.

Rechts daneben befindet sich eine kompakte 1-Zimmer-Wohnung mit rund 37?m², offener Küche, Duschbad (2005) und zusätzlicher Staumöglichkeit im Dachgeschoss.

Im Souterrain liegt eine weitere 2-Zimmer-Wohnung mit ca. 67?m². Sie bietet eine offene Wohnküche, barrierefreies Bad, Fußbodenheizung sowie eine kleine Terrasse.

Der weitere Kellerbereich mit rund 47?m² bietet reichlich Abstellfläche und beherbergt neben vier separaten Kellerräumen auch die Tiefgarage. In allen Wohnungen sowie im Keller sorgt eine Fußbodenheizung für angenehme Wärme.

Die technische Ausstattung wurde laufend gepflegt und modernisiert: eine effiziente Gasheizung aus 2020 mit neuem Warmwasserspeicher (2024), Kunststofffenster mit Isolierverglasung (ausgetauscht zwischen 2020 und 2024) und teilweise neuen Rollläden. Die Elektrik wurde 2022 in Teilbereichen erneuert und um neue Sicherungskästen ergänzt. Das gedämmte Dach (15?cm) befindet sich in gutem Zustand.

Neben einem elektrischen Garagentor, Treppenlift (2023) und Glasfaseranschluss bietet das Haus auch eine Photovoltaikanlage mit 107 Modulen und 18?kWp aus dem Jahr 2011 (monatliche Erstattung von ca 300€).

Die Immobilie erzielt aktuell eine Jahresnettokaltmiete von rund 48.000?€ und bietet damit ein stabiles Fundament für eine nachhaltige Kapitalanlage mit attraktiver Rendite. Die Mieterstruktur ist sehr zuverlässig, das Zusammenleben harmonisch und geprägt von einem respektvollen Umgang miteinander. Das Haus wird fortlaufend instand gehalten und präsentiert sich in einem gepflegten Gesamtzustand - ideal für Anleger, die Wert auf Werterhalt und regelmäßige Erträge legen.

In ruhiger und grüner Wohnlage von Norderstedt gelegen, überzeugt das Umfeld durch eine angenehme Nachbarschaft und gute Infrastruktur. Einkaufsmöglichkeiten, Ärzte, Schulen und Kindergärten befinden sich in der Nähe. Bus- und Bahnanbindungen sorgen für eine schnelle Erreichbarkeit des Zentrums von Norderstedt und Hamburg. Die Anbindung zur A7 und dem Hamburger Flughafen ist ebenfalls sehr günstig. Das Wohnumfeld gilt als ausgesprochen beliebt und bietet sowohl Mietern als auch Eigentümern langfristige Sicherheit und Lebensqualität.

Merkmale

  • Bezug: nach Absprache
  • vermietet
  • 1.257 m² Grundstück
  • Einbauküche
  • Keller
  • 4 Stellplätze: 4 Außen-Stellplätze

Grundrisse

Grundrisse
1 / 3

Realisiere Dein Projekt

Bausubstanz und Energie

Energieausweis

F
  • Baujahr1978
  • Zustand der ImmobilieGepflegt
  • EnergieträgerGas
Immowelt logo

Preisdetails

Kaufpreis
1100000 €
4.150,94 €/m²
Provision für Käufer
7,14% inkl. MwSt.
Weitere Preisinformationen
4 Stellplätze
Nettokaltmiete: 48.000,00 EUR
Geschätzte Gesamtkosten
1.232.770 €1
Kaufpreis
1.100.000 €
Notarkosten (1,5%)
16.500 €
Grunderwerbsteuer (6,5%)
71.500 €
Provision für Käufer (3,57%)
39.270 €
Grundbucheintrag (0,5%)
5.500 €
1Der angezeigte Wert ist eine automatisch berechnete Schätzung von immowelt.
2Bei den Angaben handelt es sich um ortsübliche Werte. Individuelle Kosten können abweichen.

Lage

address-icon
GlashütteNorderstedt / Glashütte (22851)
Der Anbieter hat die genaue Adresse nicht freigegeben

Weitere Informationen

Stichworte Anzahl der Schlafzimmer: 5, Anzahl der Badezimmer: 4, Anzahl Terrassen: 3, 3 Etagen, Distanz zum Kindergarten: 1.20, Distanz zur Grundschule: 1.50, Distanz zur Realschule: 5.00, Distanz zur nächsten Einkaufsmöglichkeit: 2.00, Distanz zum Gymnasium: 5.00, Distanz zum Hauptbahnhof: 2.50, Distanz zur Autobahn: 6.00, Distanz zum Bus: 0.30 Sonstiges/Wohnen: Einliegerwohnung

Weitere Services

Lust auf eine Besichtigung?
Eine Frage zur Immobilie?
Nachricht hinzufügen
Mit der Nutzung der oben angegebenen Telefonnummer oder durch Klicken auf „Kontaktieren“ akzeptierst Du die Allgemeinen Nutzungsbedingungen, denen Du jederzeit widersprechen kannst. Weitere Informationen zum Datenschutz

Über den Anbieter

Podbielskistraße 333, 30659 Hannover
partner badge
Partnerschaft
Frau Alexa Schulz
Frau Alexa SchulzDein Kontakt
Online-ID: 2my4w5d
Referenznummer: IM25093254
Ihre Makler Immobilien GmbH
title
Ihre Makler Immobilien GmbH
Bewertung: 4,6 von 5 Sternen
Nachricht hinzufügen
Mit der Nutzung der oben angegebenen Telefonnummer oder durch Klicken auf „Kontaktieren“ akzeptierst Du die Allgemeinen Nutzungsbedingungen, denen Du jederzeit widersprechen kannst. Weitere Informationen zum Datenschutz
Wie zufrieden bist du mit dieser Seite (nicht mit der Immobilie selbst)?