Version: 8.22.4Navigation ĂĽberspringen
3.060 €
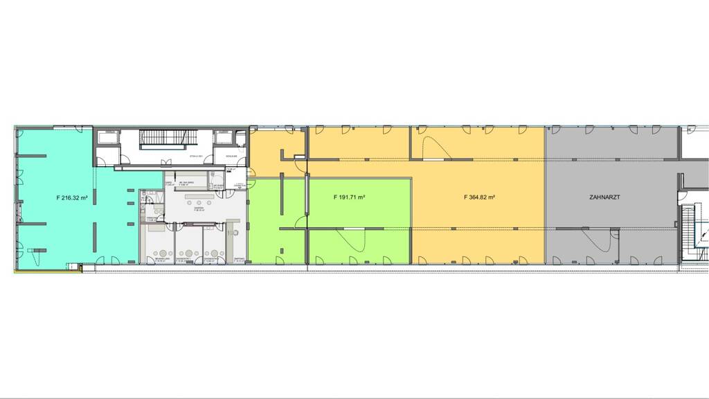
191,7 m² Bürofläche
Immowelt logo

BĂĽro zur Miete - Erstbezug
3060 €
Nettomiete zzgl. NK
191,7 m² Bürofläche

BĂĽro- und Gewerbeeinheiten Schwaz Urban

Arbeit, Wohnen und Gewerbe, Kinderbetreuung und Gastgewerbe - alles unter einem Dach! Auf dem ehemaligen Park+Ride Areal am Bahnhof Schwaz, entsteht hier ein multifunktionales, modernes Gebäude mit:

- ca. 312 Stellplätzen inkl.
- Carsharing-Angebot
- Büro-/Gewerbeflächen
- Gastronomie mit Skybar
- ca. 92 Wohnungen
- Kinderbetreuungseinrichtung
- Urban Gardening
- ca. 1.200 m² - Gartenfläche
- u. v. m.

GEWERBE:

Hier gelangen ab sofort die noch verbleibenden freien Gewerbeeinheiten in der Größe zwischen 150 m² bis 2000 m² zum Verkauf/Vermietung. Diese liegen sowohl im EG, 1. OG sowie im 2. OG des großen Komplexes. Zum derzeitigen Zeitpunkt besteht noch die Möglichkeit, Ihre Büroflächen an Ihren Bedarf anzupassen.

Die Miete wurde vom Vermieter zwischen 14 und 16 € netto pro m² angesetzt. Die tatsächliche Miete ist abhängig von der tatsächlichen Bürogestaltung.

WICHTIGER HINWEIS:

Bei den hier gezeigten Plänen handelt es sich um die geplanten Vorlagen, individuelle Abweichungen sind möglich. Es sind derzeit folgende Einteilungen der Wohnungen/Gewerbe geplant:

* Gewerbe: Einheiten ab ca. 150 m² aufwärts - ca. 2000 m².
* Individuelle Ausstattung nach RĂĽcksprache.

Für die Gewerbeeinheiten sind ca. 90 Tiefgaragenplätze vorgesehen, welche vom Errichter dauerhaft an den Erwerber vermietet werden. Die Anlage wird mittels Grundwasserwärmepumpen beheizt, im Sinne der Nachhaltigkeit wird zudem vom Bauträger eine Photovoltaikanlage installiert.

AUSSTATTUNGSMERKMALE - AUSZUG:

Gewerbeeinheiten werden mit Doppelboden ausgestattet. Die Heizung erfolgt ĂĽber Konvektoren im Doppelbodenbereich - weites wird eine DeckenkĂĽhlung vorgesehen.

Wir weisen darauf hin, dass zwischen dem Vermittler und dem zu vermittelnden Dritten ein familiäres oder wirtschaftliches Naheverhältnis besteht.

Der Vermittler ist als Doppelmakler tätig.

Infrastruktur / Entfernungen

Gesundheit
Arzt <175m
Apotheke <325m
Klinik <650m
Krankenhaus <575m

Kinder & Schulen
Schule <550m
Kindergarten <225m

Nahversorgung
Supermarkt <200m
Bäckerei <175m
Einkaufszentrum <425m

Sonstige
Bank <425m
Geldautomat <425m
Post <575m
Polizei <450m

Verkehr
Bus <50m
Bahnhof <150m
Autobahnanschluss <775m

Angaben Entfernung Luftlinie / Quelle: OpenStreetMap

Merkmale

  • Bezug: nach RĂĽcksprache
  • 1. Geschoss
  • Personenaufzug
  • Barrierefrei
  • Bodenbelag: Fliesen, Parkett, Kunststoff, Doppelboden

Realisiere Dein Projekt

Bausubstanz und Energie

Heizwärmebedarf (HWB)

B

Gesamtenergieeffizienz (fGEE)

A+
  • Baujahr2021
  • Zustand der ImmobilieNeubau, Massivhaus, Erstbezug
  • HeizungsartZentralheizung: FuĂźbodenheizung
Immowelt logo

Mietkosten

Nettokaltmiete
3.060 €
Betriebskosten
670 €
Provision fĂĽr Mieter
3 Bruttomonatsmieten zzgl. 20% USt.
Kaution
keine Angabe
Weitere Preisinformationen
Nettokaltmiete: 3.060,00 EUR

Lage

address-icon
Spornbergerstraße 1, Schwaz (6130)
Bahnhof Schwaz, Spornbergerstraße 1-5. Schwaz ist als Bezirkshauptstadt das wirtschaftliche Zentrum der Region. einige von Tirols wichtigsten wirtschaftlichen Playern haben Ihren Hauptsitz rund um die Silberstadt. Die Wirtschaftsszene in Schwaz ist genauso vielfältig wie deren Menschen. Als lebendige Stadt hat sich Schwaz einen Namen gemacht und ist alljährlich Gastgeber diverser Musikfestivals.

Erreichbarkeit:
- 20 Sec. zu FuĂź zum Bahnhof
- 20 Min. mit dem Rad zu den umliegenden Naherholungsgebieten
- 20 Min. mit dem Zug nach Kufstein/Innsbruck

Weitere Informationen

Stichworte Tiefgarage vorhanden, Bundesland: Tirol, 13 Etagen, Wohnungsnr.: Office A3 Sonstiges: EDV-Verkabelung

Weitere Services

Lust auf eine Besichtigung?
Eine Frage zur Immobilie?
Nachricht hinzufĂĽgen
Mit der Nutzung der oben angegebenen Telefonnummer oder durch Klicken auf „Kontaktieren“ akzeptierst Du die Allgemeinen Nutzungsbedingungen, denen Du jederzeit widersprechen kannst. Weitere Informationen zum Datenschutz

Ăśber den Anbieter

Immosence GmbH
Immosence GmbHMaklerbĂĽro
SpornbergerstraĂźe 1/11, 6130 Schwaz
partner badge
6 Jahre Partnerschaft
Herr Ronald AbfalterDein Kontakt
Online-ID: 28m9x5q
Referenznummer: OBGC202301280955318235c9d828d79
Immosence GmbH
Immosence GmbH
Bewertung: 4,8 von 5 Sternen
Nachricht hinzufĂĽgen
Mit der Nutzung der oben angegebenen Telefonnummer oder durch Klicken auf „Kontaktieren“ akzeptierst Du die Allgemeinen Nutzungsbedingungen, denen Du jederzeit widersprechen kannst. Weitere Informationen zum Datenschutz
Wie zufrieden bist du mit dieser Seite (nicht mit der Immobilie selbst)?