




Sonstiges zum Kauf • als Kapitalanlage geeignet899000 €3.354 €/m²7 Zimmer • 268 m² • 629,1 m² Grundstück
899000 €
3.354 €/m²
7 Zimmer • 268 m² • 629,1 m² Grundstück
Leben in Zingst auf dem Darß: Lichtverwöhntes, geräumiges Einfamilienhaus inkl. 2 WE
Merkmale
- Bezug: nach Absprache
- 629,1 m² Grundstück
- Einbauküche
- Kein Keller
- Stellplatz
- Gäste-WC
- Balkon
- Garten
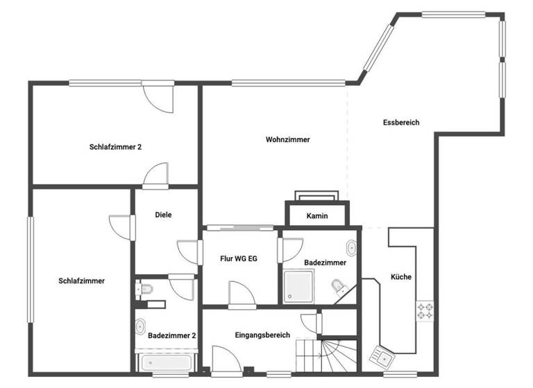
Grundrisse
Grundrisse
1 / 3
Virtueller Rundgang
3D tour

Realisiere Dein Projekt
Bausubstanz und Energie
Energieausweis
D
- Baujahr2000
- Zustand der ImmobilieGepflegt
- HeizungsartFußbodenheizung
- EnergieträgerGas
Preisdetails
Kaufpreis
899000 €
3.354,47 €/m²
Provision für Käufer
Die Provision i.H.v. 3,57 % des Kaufpreises inkl. MwSt. ist mit Kaufvertragsbeurkundung fällig, sofern der Verkaufspreis über 83.000,00 € liegt.
Liegt der Verkaufspreis dagegen bei/unter 83. Weitere Informationen siehe Provisionshinweis.
Liegt der Verkaufspreis dagegen bei/unter 83. Weitere Informationen siehe Provisionshinweis.
Geschätzte Gesamtkosten
931.094 €1
Kaufpreis
899.000 €
Kaufnebenkosten
32.094 €
2Provision für Käufer (3,57%)
32.094 €
1Der angezeigte Wert ist eine automatisch berechnete Schätzung von immowelt.
2Bei den Angaben handelt es sich um ortsübliche Werte. Individuelle Kosten können abweichen.
Lage

Zingst (18374)
Der Anbieter hat die genaue Adresse nicht freigegeben
Weitere Informationen
Weitere Services
Lust auf eine Besichtigung?
Eine Frage zur Immobilie?
Über den Anbieter
Online-ID: 26LL2UG1MWSW
Referenznummer: 71aeea726b
Wie zufrieden bist du mit dieser Seite (nicht mit der Immobilie selbst)?




