Version: 8.24.0Navigation überspringen
1.766 €
5 Zimmer  •  148 m²  •  479 m² Grundstück
Immowelt logo

Einfamilienhaus zur Leibrente - Erstbezug
1.766 €
5 Zimmer  •  148 m²  •  479 m² Grundstück

Wohnen & kaufen - Ihr Einfamilienhaus per Mietkauf!

Warum weiter Miete zahlen, wenn Sie in Ihr eigenes Zuhause investieren können? Mietkauf ohne Eigenkapital möglich! Sie wohnen, während Sie Schritt für Schritt Eigentümer werden. Altschulden? Kein Problem! Lassen Sie Ihren Traum vom Eigenheim wahr werden - informieren Sie sich jetzt!

Merkmale

  • 479 m² Grundstück
  • Gäste-WC
Schlüsselfertig mit Qualität - Ihr individuelles Danhaus zum Einziehen!
Jedes Danhaus wird individuell für Sie geplant - exakt abgestimmt auf Grundstück, Bebauungsplan und Ihre gewünschten Eigenleistungen. Unser schlüsselfertiges Konzept vereint höchste Bauqualität mit nordischem Stil - bezugsfertig und durchdacht bis ins Detail.

Im Standard enthalten:

-Massive Klinkerfassade (alternativ Putz- oder Holzfassade möglich)
-Heizungstechnik frei wählbar, auch mit Fußbodenheizung und Kühlfunktion im Sommer
-Kontrollierte Be- und Entlüftung
-Elektroinstallation komplett fertiggestellt
-Sanitärinstallation inkl. Objekten von Markenherstellern
-Hochwertige Ausstattung mit Markenfabrikaten
-3-fach-Wärmeschutzverglasung
-Rollläden im Standard, auf Wunsch mit Elektroantrieb
-Estrich mit Wärmedämmung
-Innentüren, Wohnungstüren und Fensterbänke montiert
-Fliesen und Fußleisten bereits verlegt

Das Angebot basiert auf der beliebten Danhaus-Ausbaustufe Schlüsselfertig - optional anpassbar, wenn Sie bestimmte Leistungen selbst übernehmen möchten.

?? Einziehen statt endlos planen - willkommen im Danhaus!

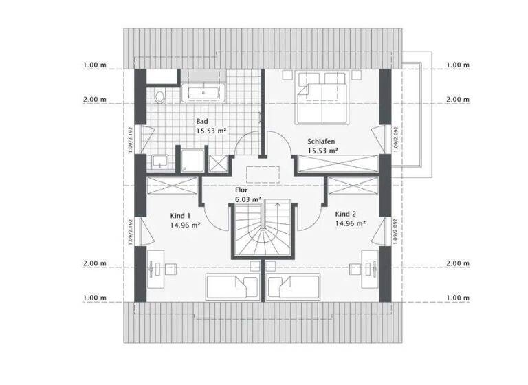
Grundrisse

Grundrisse
1 / 2

Realisiere Dein Projekt

Bausubstanz und Energie

Der Anbieter hat keine Informationen zum Energieverbrauch bereit gestellt.
  • Zustand der ImmobilieNeubau, Erstbezug
  • HeizungsartFußbodenheizung
Immowelt logo

Mietkosten

Kaltmiete
11,93 €/m²
1.766 €
Kaution
keine Angabe
Weitere Preisinformationen
Nettokaltmiete: 1.766,00 EUR

Lage

address-icon
Derschen (57520)
Der Anbieter hat die genaue Adresse nicht freigegeben
Sonniges Bauareal mit einzigartigem Charme
Hier haben Sie die Möglichkeit, Ihre Wohnträume in einer gefragten Lage zu verwirklichen. Das Grundstück ist gut geschnitten, bietet eine optimale Ausrichtung und eine angenehme Nachbarschaft für ein harmonisches Wohngefühl.

Weitere Informationen

Sonstiges Die Finanzierung Ihres Traumhauses ist ohne Eigenkapital möglich, bestehende Schulden sind kein Hindernis - Bonität vorausgesetzt.
Rufen Sie noch heute an und fragen Sie nach unserem Miet-Kauf-Modell.
Die dargestellten Bilder und Grundrisse sind Beispiele und können Sonderausstattungen enthalten, die nicht im Preis enthalten sind. Die Kaufnebenkosten sind nicht im Preis enthalten. Alle Angaben ohne Gewähr.

Bitte haben Sie Verständnis, dass nur vollständig ausgefüllte Anfragen bearbeitet werden können.

Anbauteile, Carport, Garage und Keller können Extras sein, die als Sonderausstattung angeboten werden. Abbildungen, Grundrisse und Flächenangaben sind beispielhaft und können Extras zeigen. Flächenangaben nach DIN 277. Stichworte Anzahl der Schlafzimmer: 4, Anzahl der Badezimmer: 1, Anzahl der separaten WCs: 1

Weitere Services

Lust auf eine Besichtigung?
Eine Frage zur Immobilie?
Nachricht hinzufügen
Mit der Nutzung der oben angegebenen Telefonnummer oder durch Klicken auf „Kontaktieren“ akzeptierst Du die Allgemeinen Nutzungsbedingungen, denen Du jederzeit widersprechen kannst. Weitere Informationen zum Datenschutz

Über den Anbieter

Porschestraße 10, 41564 Kaarst
partner badge
Partnerschaft
Paulo GranjaDein Kontakt
Online-ID: 2m3cd5x
Referenznummer: DH-49182
Danhaus - Paulo Granja Handelsvertretung für die Danhaus Deutschland GmbH
Danhaus - Paulo Granja Handelsvertretung für die Danhaus Deutschland GmbH
Nachricht hinzufügen
Mit der Nutzung der oben angegebenen Telefonnummer oder durch Klicken auf „Kontaktieren“ akzeptierst Du die Allgemeinen Nutzungsbedingungen, denen Du jederzeit widersprechen kannst. Weitere Informationen zum Datenschutz
Wie zufrieden bist du mit dieser Seite (nicht mit der Immobilie selbst)?