

RE/MAX A.E.B Immobilien NH GmbH & Co. KG
Herr Arndt Bömelburg
+49 ···
Nr. anzeigenPreise & Kosten
Provision für Käufer
provisionsfrei
Lage
Buchholz ist wegen der kurzen Entfernung fast wie ein Stadtteil von Hamburg und bietet vor den Toren der Großstadt eine hohe Wohnqualität inmitten eines gepflegten, intakten Wohnumfeldes. Vom Kindergarten bis zum Abitur ist für die Kinder bestens gesorgt. Mehrere Kindergärten, 2 Schulzentren, 4 Grundschulen.... alles in...
Die Wohnung
Kategorie
Terrassenwohnung
Wohnanlage
Energie & Heizung
Warum sehe ich diese Anzeige? – Du siehst diese Anzeige basierend auf Ihrer Navigation auf unserer Website und den Suchkriterien, die du verwendet hast.
Energieausweistyp
Verbrauchsausweis
Gebäudetyp
Wohngebäude
Baujahr laut Energieausweis
1997
Wesentliche Energieträger
GAS
Gültigkeit
bis 02.06.2032
Effizienzklasse
D
Endenergieverbrauch
124,00 kWh/(m²·a)
Weitere Energiedaten
Energieträger
Gas
Details
Objektbeschreibung
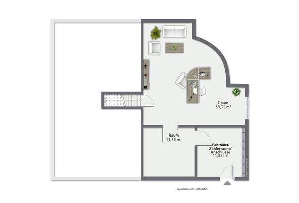
Willkommen in dieser charmanten 3-Zimmer-Wohnung, mit einer schönen großen Terrasse . Die Wohnung ist Teil eines 3 Parteienhauses das in den Hang gebaut wurde. Das Objekt ist die mittlere Wohnung. Die kleine Wohnanlage wurde 1997 gebaut und ca. 2000 fertig gestellt. Die Wohnung bietet auf ca. 124 m² Wohnfläche ein Zuhause in...
Weitere Informationen
Sonstiges
Bitte haben Sie Verständnis dafür, dass wir im Interesse unserer Verkäufer, die uns Ihre Vermögenswerte anvertraut haben, Ihnen nur dann ein Exposè zur Verfügung stellen können, wenn wir über Ihre vollständigen Kontaktdaten, Ihre Einwilligung zur Beauftragung und Ihre Zustimmung zur Datenspeicherung nach der...
Anbieter der Immobilie
RE/MAX A.E.B Immobilien NH GmbH & Co. KG
Lindenstraße 19, 21244 Buchholz i.d.N.

Online-ID: 2nzcw56
Referenznummer: NH-993
Finde Angebote wie dieses
Hier geht es zu unserem Impressum, den Allgemeinen Geschäftsbedingungen, den Hinweisen zum Datenschutz und nutzungsbasierter Online-Werbung.